EasyManua.ls Logo

Carrier P - Page 34

Carrier P
40 pages
Print Icon
To Next Page IconTo Next Page
To Next Page IconTo Next Page
To Previous Page IconTo Previous Page
To Previous Page IconTo Previous Page
Loading...
52C,P
SERIES
34
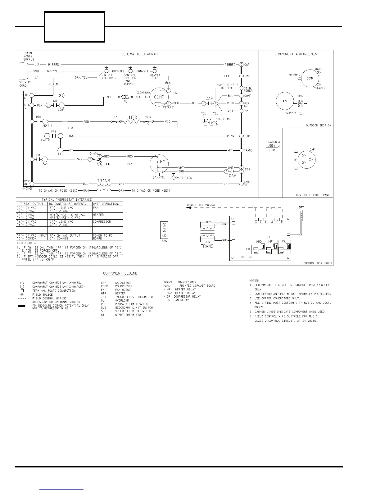
FIGURE 60 — 52CE — TYPICAL WIRING SCHEMATIC FOR
WALL THERMOSTAT CONTROL HEAT/COOL UNITS

Related product manuals