EasyManua.ls Logo

Carrier PC 111 - Page 8

Carrier PC 111
64 pages
To Next Page IconTo Next Page
To Next Page IconTo Next Page
To Previous Page IconTo Previous Page
To Previous Page IconTo Previous Page
Loading...
8
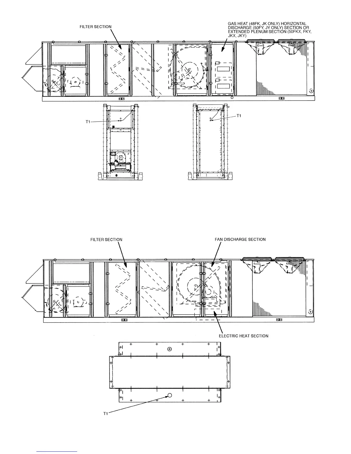
GAS SECTION
(48FK,JK ONLY)
HORIZONTAL SUPPLY SECTION
(50FY,JY ONLY) AND EXTENDED
PLENUM SECTION (50FKX,FKY,JKX,JKY)
Fig. 7 — Thermistor T1 Location, 48FK,JK, 50FY,JY and 50FKX,FKY,JKX,JKY 034-048 Units
FAN DISCHARGE/ELECTRIC HEAT SECTION
Fig. 8 — Thermistor T1 Location, 50FK,JK034-048 Units

Table of Contents

Related product manuals