EasyManua.ls Logo

Carrier PIC 5+ - Page 20

Carrier PIC 5+
116 pages
Print Icon
To Next Page IconTo Next Page
To Next Page IconTo Next Page
To Previous Page IconTo Previous Page
To Previous Page IconTo Previous Page
Loading...
20
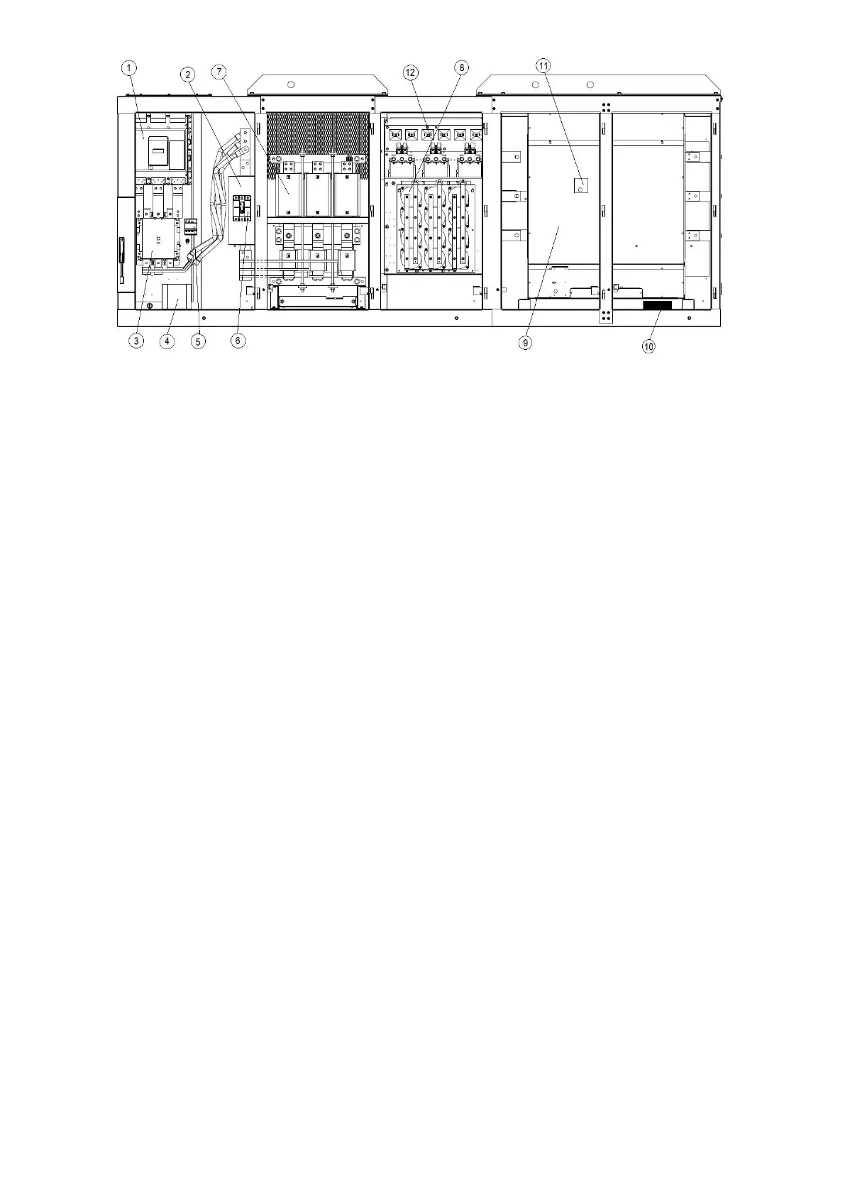
Fig 8 VFD cabinet view (example of LF2 4AA)
1. Circuit breaker/main disconnect switch (QF101) for the following functions:
- Short-circuit protection of the main circuit
- Single connection point of the installation power cables
- Isolation and shut-down of the machine, using the handle accessible on the outside of the control box
- Emergency stop, initiated by the PIC control
2. Filter CEM RFI (ZGS) to limit high-frequency conductor interferences (>150 kHz).
3. Power safety contactor (K101)
4. Power transformer (T1) and fuse (FU10) for the internal control circuit of the variable-frequency drive.
5. Surge limiter (F).
6. Power supply circuit protection disconnect switch for the PIC control box (QF).
7. Load resistor shunt capacitors (K1-). They short-circuit the load resistors when the capacitors are loaded.
8. Capacitor resistors (R1-3C) and coils for inlet filtering of the main circuit
9. Power module and associated control interface board (GS) for the following functions:
- Compressor start-up and shutdown by voltage/frequency ramping to permit limiting of the couple and inrush current at start-up
- Control of the voltage/frequency applied to the compressor
- All electrical compressor protection devices
- All devices to protect against internal faults of the variable-frequency drive as well as pressure safety switch cut-out and re-starting the oil pump
- Report of variable-frequency drive status parameters and internal faults to the PIC control.
10- Terminal connections (XP), I/O with chiller (Gatekill chain from pressure switches terminals, run feedback, com… )
11. Communication gateway board. Provides the communication interface between the variable-frequency drive and the PIC control.
12. Load resistors of the main power circuit (R4-6C) and protection fuses of the load circuit (FU**). To limit the inrush current while power is
supplied to the variable-frequency drive.

Table of Contents

Other manuals for Carrier PIC 5+

Related product manuals