EasyManua.ls Logo

Carrier WeatherMaster 48HC07 Series - Step 13 - Adjust Factory-Installed Options; Smoke Detectors; Economi$Er; Step 14 - Install Accessories

Carrier WeatherMaster 48HC07 Series
56 pages
To Next Page IconTo Next Page
To Next Page IconTo Next Page
To Previous Page IconTo Previous Page
To Previous Page IconTo Previous Page
Loading...
51
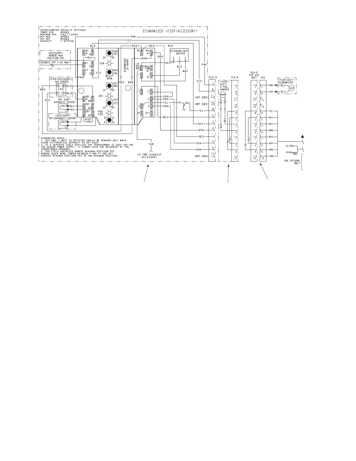
Fig. 59 — EconoMi$er
®
IV Wiring
Step 13 — Adjust Factory-Installed Options
SMOKE DETECTORS
Smoke detector(s) will be connected at the Controls Connec-
tions Board, at terminals marked “Smoke Shutdown.” Cut
jumper JMP 3 when ready to energize unit.
ECONOMI$ER IV OCCUPANCY SWITCH
Refer to Fig. 59 for general EconoMi$er IV wiring. External
occupancy control is managed through a connection on the
Controls Connections Board.
If external occupancy control is desired, connect a time clock
or remotely controlled switch (closed for Occupied, open for
Unoccupied sequence) at terminals marked OCCUPANCY.
Cut jumper JMP 2 to complete the installation.
Step 14 — Install Accessories
Available accessories include:
Roof Curb
Thru-base connection kit (must be installed before unit is
set on curb)
LP conversion kit
Flue discharge deflector
Manual outside air damper
Two-Position motorized outside air damper
EconoMi$er IV (with control)
EconoMi$er2 (without control/for external signal)
Power Exhaust
Differential dry-bulb sensor (EconoMi$er IV)
Outdoor enthalpy sensor
Differential enthalpy sensor
•CO
2
sensor
DDC interface (PremierLink™ controller)
Louvered hail guard
Motormaster
®
head pressure controls
Phase monitor control
Energy Recovery Ventilator (ERV)
Refer to separate installation instructions for information on in-
stalling these accessories.
Step 15 — Check Belt Tension
Measure the belt span length as shown in Fig. 60. Calculate the
required deflection by multiplying the belt span length by
1
/
64
.
For example, if the belt span length is 32 inches: 32 x
1
/
64
=
1
/
2
inch deflection.
BELT FORCE — DEFLECTION METHOD
Check the belt tension with a spring-force belt force deflection
gauge (available from drive belt manufacturer).
1. Place a straightedge along the belt between the two pul-
leys. Measure the distance between the motor shaft and the
blower shaft.
2. Set the tension gauge to the desired tension (see Table 1 in
Fig. 60). Place the large O-ring at that point.
3. Press the tension checker downward on the belt until the
large O-ring is at the bottom of the straightedge.
4. Adjust the belt tension as needed.
Adjust belt tension by loosing the motor mounting plate front
bolts and rear bolt (see Fig. 61) and slide the plate towards the
fan (to reduce tension) or away from the fan (to increase ten-
sion). Ensure the blower shaft and motor shaft are parallel to
each other (pulleys aligned). Tighten all bolts securely when
finished.
Economizer 2 Position Damper
Unit Without Economizer or
2 Position Damper

Table of Contents

Related product manuals