EasyManua.ls Logo

Case CX130 - Page 174

Case CX130
262 pages
Print Icon
To Next Page IconTo Next Page
To Next Page IconTo Next Page
To Previous Page IconTo Previous Page
To Previous Page IconTo Previous Page
Loading...
5 - 31
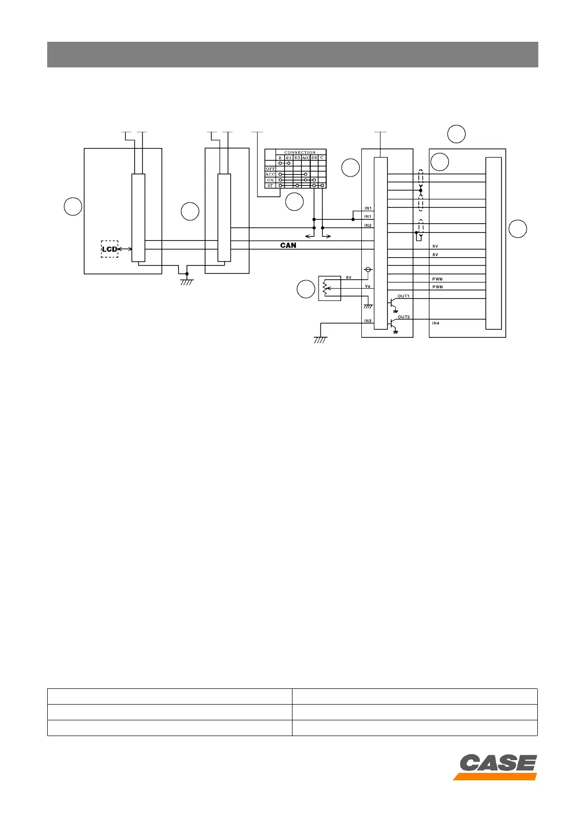
ELECTRIC CIRCUIT
CASE TRAINING CENTER
AUGUST 2000
Emergency mode
1) Circuit configuration
CS00F518
1. Instrument panel
2. Main electronic control box
3. Starter motor switch
4. Engine throttle control
5. Engine electronic control box
6. Engine
7. Electronic acceleration
8. Engine speed detector
2) Electronic acceleration regulator assistance control
The electronic acceleration regulator checks the engine speed by checking the position of the electronic
acceleration rack.
- The engine electronic control box sends the target position of the rack to the electronic acceleration regulator,
by means of a PWM signal. The regulator compares the value of the real position to the target position
informed by the rack position detector incorporated in the regulator. Using the result of the calculation, the
electric motor incorporated in the electronic acceleration is actuated to check the position of the rack. The real
value of the rack position is then transmitted to the engine electronic control box.
- The engine electronic control box checks if the electronic acceleration regulator is operating correctly by
comparing the target position sent with the real value of the rack.
- If there is a difference of 2 mm or more between the real position and the target value of the rack, variations in
engine speed will occur (see table below). The engine electronic control box considers that this is an electronic
acceleration regulator assistance error.
- If the regulator assistance error is confirmed, the electronic control box stops the engine to prevent it running
out of control.
The engine electronic control box transmits the problem codes to the main electronic control box when a
regulator assistance error occurs and the error code "ELEC. PROBLEM" is displayed on the control screen
(LCD).
When starting the engine Machine operation
Variation in engine speed ³ 500 rpm for 1 second Variation in engine speed ³ 1000 rpm for 1 second
Variation in engine speed < 500 rpm for 10 seconds Variation in engine speed < 1000 rpm for 10 seconds
1
2
3
4
5
6
8
7

Related product manuals