EasyManua.ls Logo

Case CX130 - Page 214

Case CX130
262 pages
Print Icon
To Next Page IconTo Next Page
To Next Page IconTo Next Page
To Previous Page IconTo Previous Page
To Previous Page IconTo Previous Page
Loading...
6 - 21
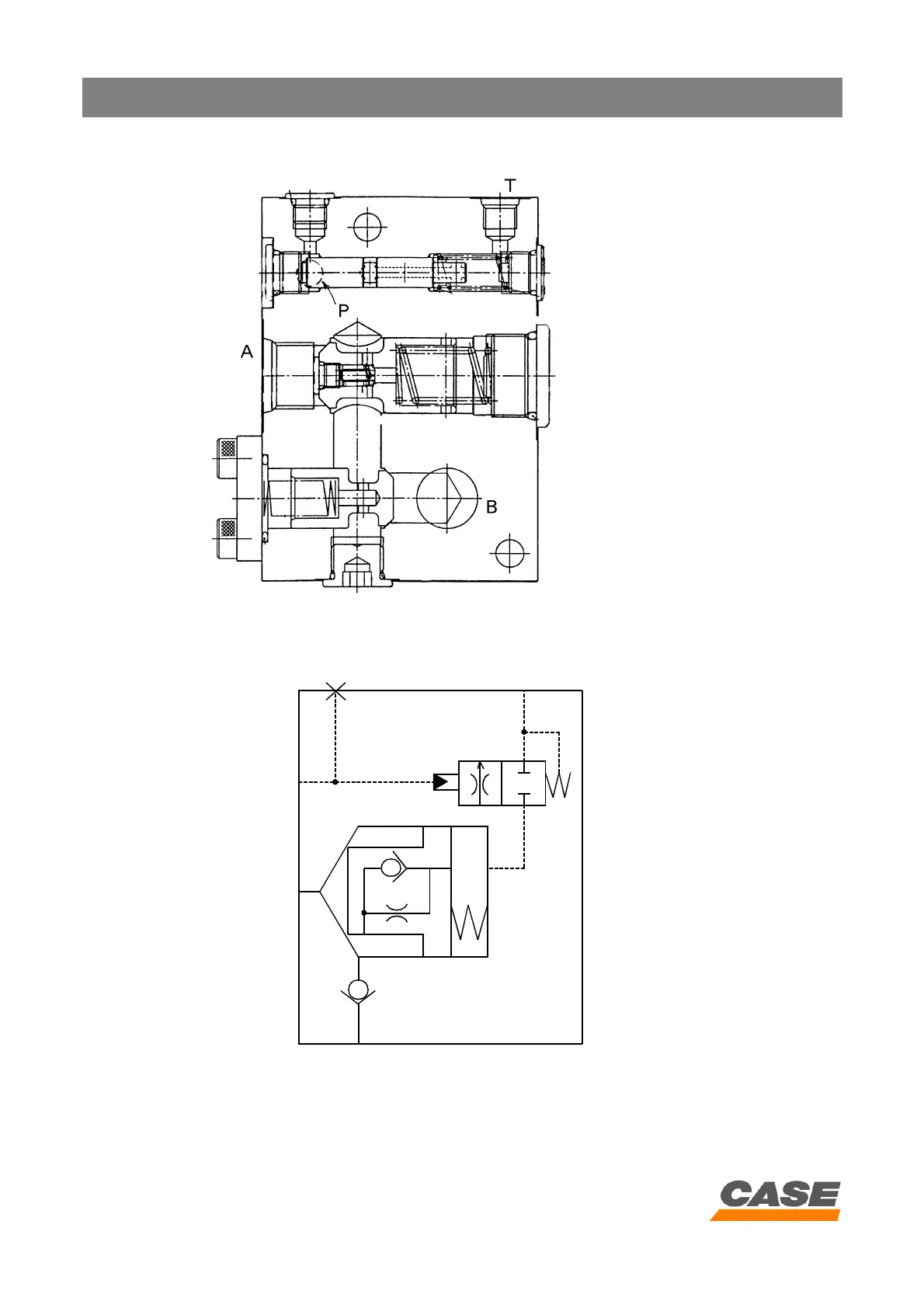
HYDRAULIC CIRCUIT
CASE TRAINING CENTER
AUGUST 2000
Circuit for Breaker & Crusher (Auxiliary Line Holding Valve)
HOLDING VALVE
RELEASE SPOOL
HOLDING VALVE
P
A
B
T
T
B
P
A
CIRCUIT DIAGRAM

Related product manuals