EasyManua.ls Logo

Celexon CLR UST - PrzegląD Produktu

Celexon CLR UST
Print Icon
To Next Page IconTo Next Page
To Next Page IconTo Next Page
To Previous Page IconTo Previous Page
To Previous Page IconTo Previous Page
Loading...
4

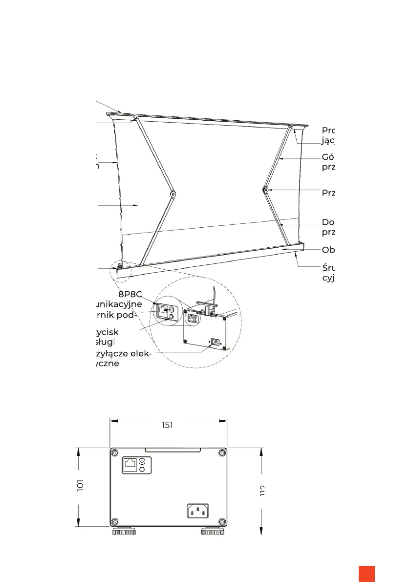
Mocowanie
przegubowe
System linek
napinających
Pokrywa
rne ramię
przegubowe
Przegub
Dolne ramię
przegubowe
Tkanina projek-
cyjna
Osłona bocz-
na
Obudowa
Profi l mocu-
jący
Zewnętrzny odbiornik pod-
czerwieni
Śruba niwela-
cyjna
8P8C
Przyłącze komunikacyjne
Przyłącze elek-
tryczne
Przycisk
obsługi
Widok z boku
151
112
101
System linek
napinających
Górne ramię
przegubowe
Przegub
Dolne ramię
przegubowe
Osłona bocz-
Obudowa
Profi l mocu-
jący
Zewnętrzny odbiornik pod-
Śruba niwela-
cyjna
8P8C
Przyłącze komunikacyjne
Przyłącze elek-
tryczne
Przycisk
Przycisk
obsługi
151
112
101

Related product manuals