EasyManua.ls Logo

CEM Systems emerald TS100 - Emerald Terminal Key Components

Default Icon
46 pages
Print Icon
To Next Page IconTo Next Page
To Next Page IconTo Next Page
To Previous Page IconTo Previous Page
To Previous Page IconTo Previous Page
Loading...
emerald Quick Installation Guide
5
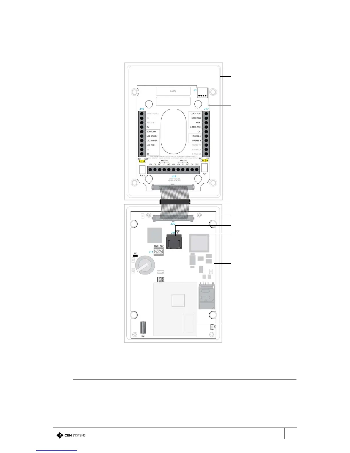
1.1.5 emerald terminal key components
Back casing
I/O board
Ribbon cable with ferrite
Front casing
Front board
Back
assembly
Front
assembly
RJ-45 10/100 jack
Front board
CPU board
Chassis grounding post
Figure 3 Illustration of the key component parts
Note
All emerald models use the same component parts.

Related product manuals