EasyManua.ls Logo

Challenger 9500M - Wiring Diagram and Troubleshooting; Wiring Diagram Overview; Troubleshooting Guide

Default Icon
20 pages
Print Icon
To Next Page IconTo Next Page
To Next Page IconTo Next Page
To Previous Page IconTo Previous Page
To Previous Page IconTo Previous Page
Loading...
E: OPERATION AND ADJUSTMENT INSTRUCTIONS
TROUBLESHOOTING GUIDE
USE EXTREME CAUTION AT ALL TIMES WHEN ATTEMPTING TO DIAGNOSE AND RECTIFY PROBLEMS WITH
YOUR GARAGE DOOR OPENER. BEFORE ATTEMPTING ANY SERVICE ON UNIT, DISCONNECT OPENER FROM
POWER SUPPLY. YOUR GARAGE DOOR IS THE LARGEST MOVING OBJECT IN YOUR HOUSE, AND THE
SPRINGS, PULLEYS, CABLES AND MOUNTING HARDWARE UTILIZED TO BALANCE ITS OPERATION ARE UNDER
EXTREME TENSION AT ALL TIMES AND CAN CAUSE SERIOUS PERSONAL INJURY, EVEN DEATH, IF DISTURBED.
CALL AN EXPERIENCED SERVICE PERSON TO MOVE, LOOSEN OR ADJUST DOOR SPRINGS OR HARDWARE.
With the appropriate cau-
tions in place, use the fast
find LED diagnostic chart
at right to diagnose the
problem. The LEDs are
located on the power head
unit rear panel, see page 12
for illustration. Contact the
factory if your problem
persists or is not listed.
DIAGNOSTIC CONDITION RED LED GREEN LED
Normal Operation OFF OFF
Learn Mode ON OFF
Memory Full ON FOR 25 SEC,
AUTO OFF
OFF
Decode RF Signal SHORT FAST BLINK OFF
Shorted Push Button or Wire to Button OFF ON
Photobeam Obstruction OFF FAST BLINK
Contact Reverse FAST BLINK OFF
Stuck Relay SLOW BLINK OFF
Stuck Open Limit OFF SLOW BLINK
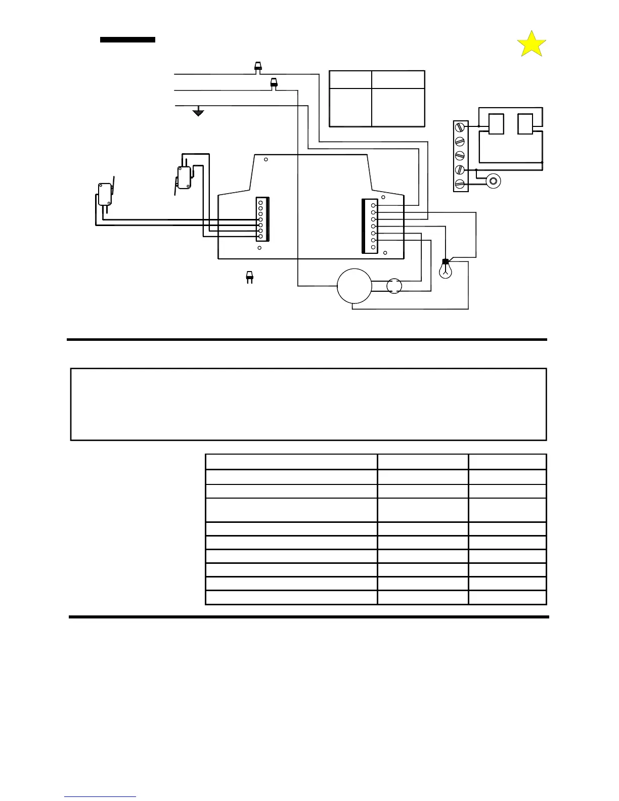
WHITE
RED
WHITE
BLUE
BLUE
BLUE
RED
RED
WHITE
BROWN
CAPACITOR
MOTOR
LAMP
WHITE
BLACK
L1
L2
GROUND
MOTOR
CONTROL
BOARD
WIRE NUT
CONNECTIONS
POWER
1
2
3
4
5
6
7
TERMINALS
SAFE FINISH
FIELD WIRING
PUSHBUTTON/
FIELD WIRING
TERMINAL
4
3
2
1
0
FUNCTION
PHOTOELECTRIC
24 VDC
RADIO
COMMON
PUSH BUTTON
P2
P1
BLACK
IN
GREEN
WHITE
- CLOSE - - OPEN -
BLACK
BROWN
BROWN
BLACK
WHITE
LIMIT/SENSING
SWITCH
LIMIT/SENSING
SWITCH
WHITE
RED
BLUE
WHITE
PHOTOELECTRIC
3
BROWN
5
7
11
9
RED
BLUE
BLACK
13
1
GREEN
BLACK
4
2
1
0
3
SUPER STATION
WIRING DIAGRAM
112074
NOTES
19

Related product manuals