EasyManua.ls Logo

CIAT EREBA 15HT - Page 4

CIAT EREBA 15HT
84 pages
Print Icon
To Next Page IconTo Next Page
To Next Page IconTo Next Page
To Previous Page IconTo Previous Page
To Previous Page IconTo Previous Page
Loading...
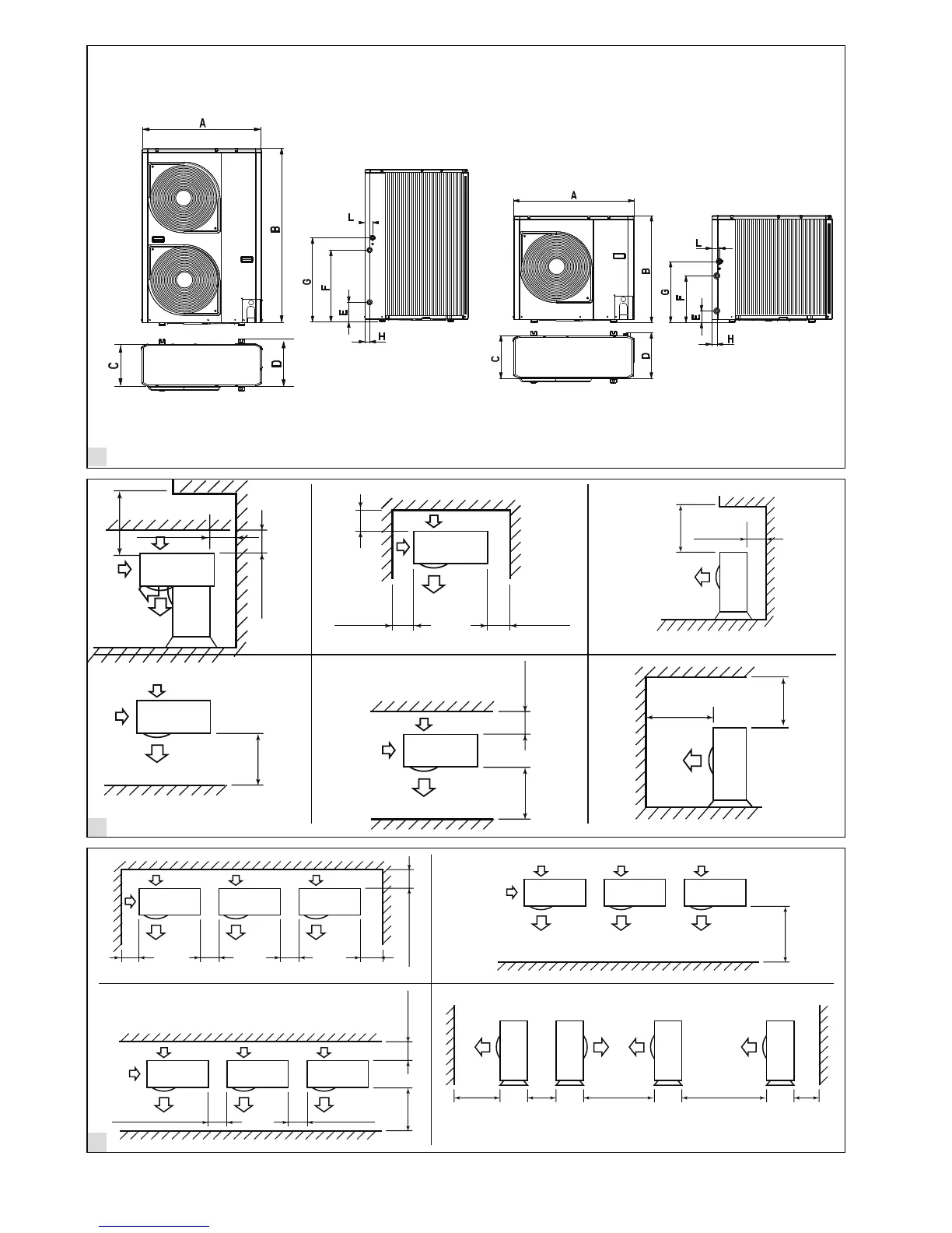
4
2
3
1
150
500
1000
1000
150150
300300
300
200
1000
300
200
300
1000
1000 1500 2000
200
300
150
200
150 300
500
1000
150

Table of Contents

Related product manuals