EasyManua.ls Logo

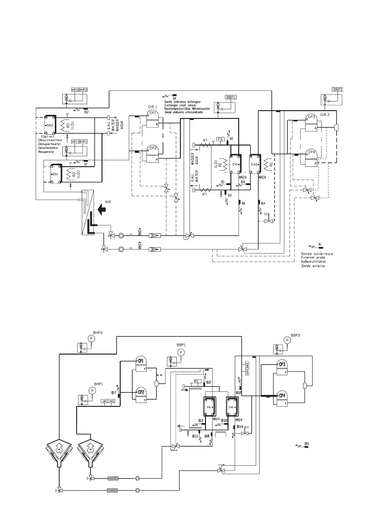
CIAT LD 250 - Location of Thermistors and Safety Devices

CIAT LD 250
48 pages
Print Icon
To Next Page IconTo Next Page
To Next Page IconTo Next Page
To Previous Page IconTo Previous Page
To Previous Page IconTo Previous Page
Loading...
24
Circuit 2
Cirtuit 2
Kreislauf 2
Circuito 2
Sonde extérieure
External probe
AuBenluftfühler
Sonda exterior
Circuit 2
Cirtuit 2
Kreislauf 2
Circuito 2
Eau
Water
Wasser
Agua
Eau
Wate
r
Wasser
Agua
Modele
Model
Modell
Modelo
753
Modele
Model
Modell
Modelo
900
1000
Emplacement des
thermistances et
sécurités
LD - LDC - LDH
100 à 750
Location of
thermistors and
safety devices
LD - LDC - LDH
100 to 750
Lage der Thermistoren
und Sicherungen
LD - LDC - LDH
100 bis 750
Ubicación de las
resistencias y los
dispositivos de seguridad
LD - LDC - LDH
100 a 750
LD - LDC - LDH
753 à 1000
LD - LDC - LDH
753 to 1000
LD - LDC - LDH
753 bis 1000
LD - LDC - LDH
753 a 1000

Related product manuals