EasyManua.ls Logo

Clint MultiPower CHA/K 21012-P - Water Circuit Overview; Water Circuit Diagram

Clint MultiPower CHA/K 21012-P
36 pages
Print Icon
To Next Page IconTo Next Page
To Next Page IconTo Next Page
To Previous Page IconTo Previous Page
To Previous Page IconTo Previous Page
Loading...
22
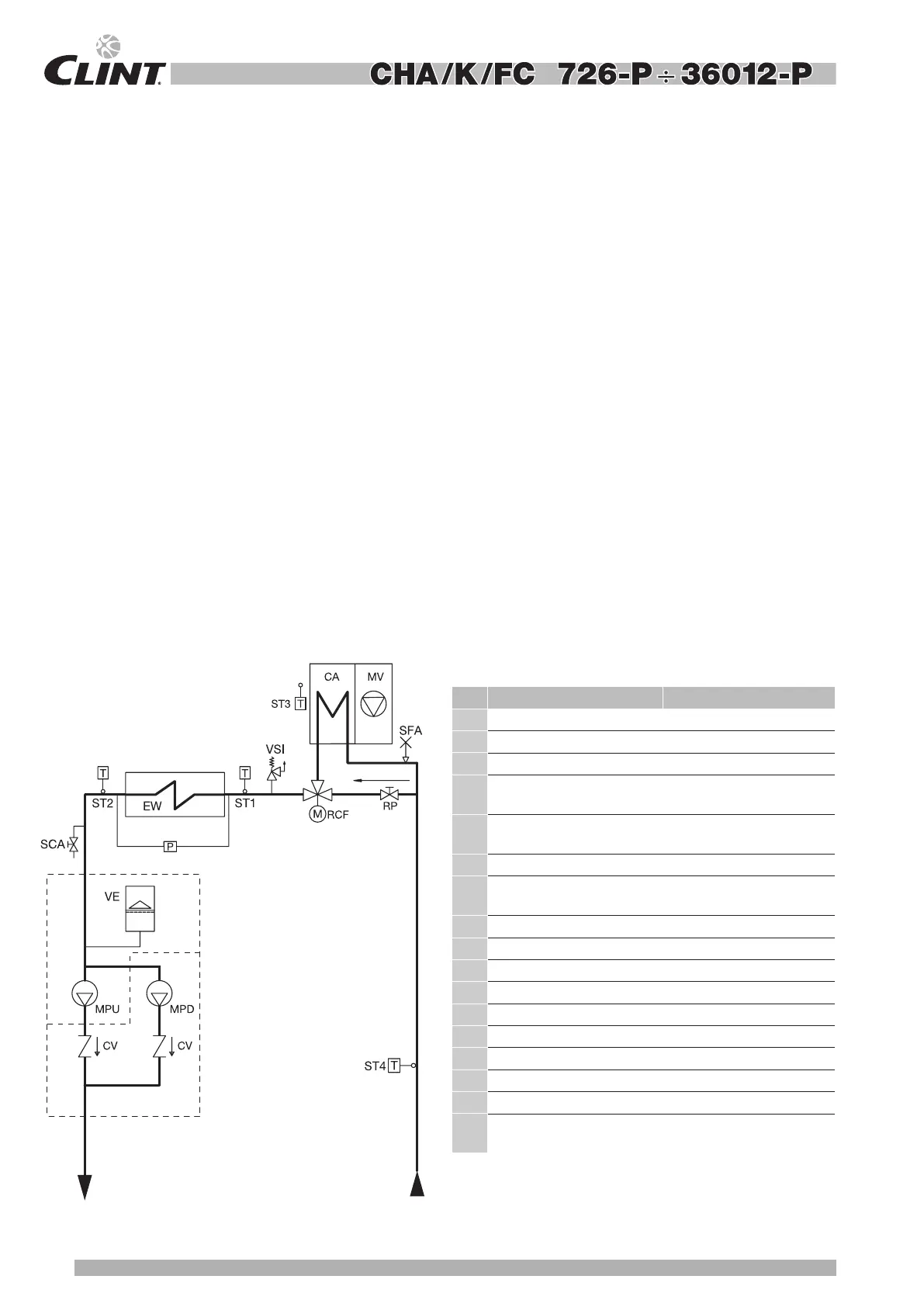
CIRCUITO IDRAULICO
Caratteristiche generali
Circuito idraulico. Include: batterie di scambio termico, valvola a
tre vie, evaporatore, sonda di lavoro, sonda antigelo, sonda aria
esterna, sonda ingresso acqua, pressostato differenziale acqua,
valvole di sfiato aria manuale e scarico acqua.
PS - Circuito idraulico con accessorio pompa di circolazione.
Include: batterie di scambio termico, valvola a tre vie, evaporatore,
sonda di lavoro, sonda antigelo, sonda aria esterna, sonda ingresso
acqua, pompa di circolazione, pressostato differenziale acqua,
vaso d’espansione, valvola di sicurezza e relè termico.
PD - Circuito idraulico con accessorio doppia pompa di
circolazione. Include: batterie di scambio termico, valvola a tre
vie, evaporatore, sonda di lavoro, sonda antigelo, sonda aria
esterna, sonda ingresso acqua, doppia pompa di circolazione,
pressostato differenziale acqua, vaso d’espansione, valvola di
sicurezza, valvole di ritegno e relè termici.
SCHEMA CIRCUITO IDRAULICO
DENOMINAZIONE DESIGNATION
CA
Batteria Free-Cooling
Free-cooling heat
CV
Valvola di ritegno
Gate valve
EW
Evaporatore
Evaporator
MPD
Doppia pompa
di circolazione
Double
circulating pump
MPU
Singola pompa
di circolazione
Single
circulating pump
MV
Ventilatori assiali
Axial fans
P
Pressostato differenziale
acqua
Differential water pressure
switch
RCF
Valvola a 3 vie
3-way valve
RP
Rubinetto
Intercepting valve
SCA
Scarico acqua
Water drain
SFA
Sfiato aria
Air vent
ST1
Sonda di lavoro
Sensor for unit operation
ST2
Sonda antigelo
Antifreeze sensor
ST3
Sonda aria esterna
Outside air probe
ST4
Sonda ingresso acqua
Water inlet probe
VE
Vaso d'espansione
Expansion vessel
VSI
Valvola di sicurezza
(600 kPa)
Safety valve
(600 kPa)
WATER CIRCUIT
General characteristics
Water circuit. Includes: heats exchanger, 3-way valve, evapor-
ator, temperature sensor, antifreeze sensor, outside air probe,
water inlet probe, differential water pressure, manual air release
valves and water drain.
PS - Water circuit with additional circulation pump. Includes:
heats exchanger, 3-way valve, evaporator, temperature sensor,
antifreeze sensor, water inlet probe, outside air probe, circula-
tion pump, differential water pressure switch, expansion vessel,
safety valve and thermal relè.
PD - Water circuit with additional double circulation pump.
Includes: heats exchanger, 3-way valve, evaporator, temperature
sensor, antifreeze sensor, water inlet probe, outside air probe,
double circulation pump, differential water pressure switch, ex-
pansion vessel, safety valve, check valve and thermal relè.
WATER CIRCUIT DIAGRAM
PD
PS
OUT IN

Table of Contents

Related product manuals