EasyManua.ls Logo

Clint MultiPower CHA/K 21012-P - Allgemeine Merkmale; Circuit Hydraulique

Clint MultiPower CHA/K 21012-P
36 pages
Print Icon
To Next Page IconTo Next Page
To Next Page IconTo Next Page
To Previous Page IconTo Previous Page
To Previous Page IconTo Previous Page
Loading...
23
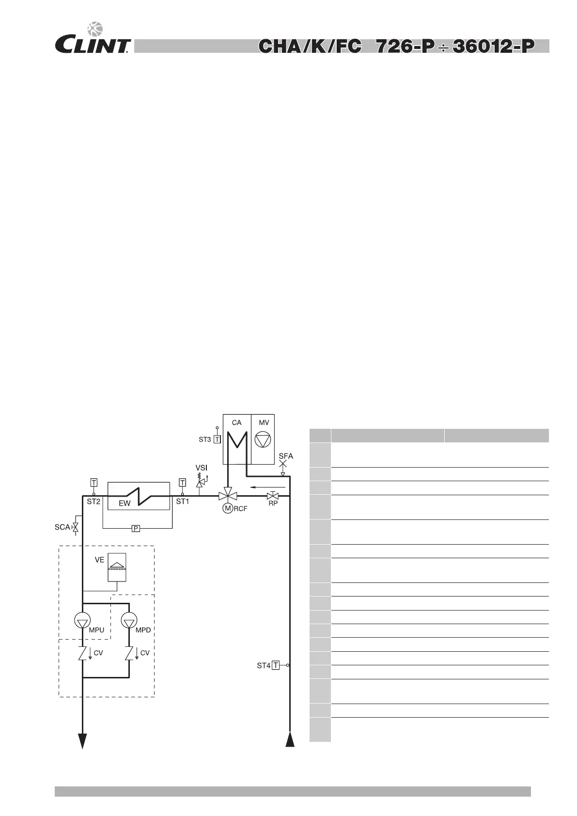
WASSERKREISLAUF
Allgemeine Merkmale
Wasserkreislauf. Bestehend aus: Glycol-Wasser-Wärmetau-
scher mit 3-Wege Ventil, Verdampfer, Temperaturfühler, Frost-
schutzfühler, Temperaturfühler Außenluft, Temperaturfühler
Wassereintritt, differentialem Druckschlater und und manuellem
Entlüftungseventil.
PS - Wasserkreislauf mit zusätzlicher Umlaufpumpe. Beste-
hend aus: Wärmetauscher , 3-Wege Ventil, Verdampfer, Tem-
peraturfühler, Temperaturfühler wassereintritt, Temperaturfühler
Außenluft, Wasser-Differenzdruckwächter, Umlaufpumpe, Aus-
dehnungsgefäß, Sicherheitsventil und thermischem Relais.
PD - Wasserkreislauf mit zusätzlicher Doppelpumpe. Be-
stehend aus: 3-Wege Ventil, Verdampfer, Temperaturfühler,
Temperaturfühler wassereintritt, Temperaturfühler Außenluft,
Frostschutzfühler, Wasser-Differenzdruckwächter, Doppelumlauf-
pumpe, Ausdehnungsgefäß, Sicherheitsventil, Rückschlagventil
und thermischem Relais.
HYDRAULISCHER SCHEMA
CIRCUIT HYDRAULIQUE
Caractéristiques générales
Circuit hydraulique. Le circuit inclut: échangeur air/eau, vanne
à 3-voies, évaporateur, sonde de travail, sonde anti-gel, sonde
de l'air extérieur, sonde de l'eau en entrée, pressostat différentiel
côte eau, purge d’air manuel et vidange d'eau.
PS - Circuit hydraulique avec pompe de circulation comprend:
échangeur air/eau, vanne à 3-voies, évaporateur, sonde travail,
sonde anti-gel, sonde de l'eau en entrée, sonde de l'air extérieur,
pressostat différentiel côte eau, pompe, vase d’expansion, sou-
pape de securité et relay thermique.
PD - Circuit hydraulique avec double pompe de circulation,
comprend: échangeur air/eau, vanne à 3-voies, évaporateur,
sonde travail, sonde anti-gel, sonde de l'eau en entrée, sonde
de l'air extérieur, pressotat différentiel, côte eau, double pompe
de circulation, vase d’expansion, soupape de securité et relay
thermique.
SCHEMA DU CIRCUIT HYDRAULIQUE
BEZEICHNUNG DESCRIPTION
CA
Freie Huhlung
Varmetauscher
Batterie free-cooling
CV
Rückschlagventil
Vanne de retention
EW
Verdampfer
Evaporateur
MPD
Doppelumlaufpumpe
Double pompe de
circulation
MPU
Umlaufpumpe
Pompe
de circulation
MV
Axiallüfter
Ventilateurs axiaux
P
Wasser diff.
Druckschalter
Pressostat
differentiel
RCF
3-Wege Ventil
Vanne à 3-voies
RP
Absperrventil
Robinet
SCA
Wasser Entladen
Vidange eau
SFA
Entlüftungsventil
Purge d’air manuel
ST1
Temperaturfühler
Sonde de travail
ST2
Frostschutzfühler
Sonde anti-gel
ST3
Temperaturfühler Außenluft
Sonde de l'air extérieur
ST4
Temperaturfühler
wassereintritt
Sonde de l'eau
en entrée
VE
Ausdehnungsgefäß
Vanne d’expansion
VSI
Sicherheitsventil
(600 kPa)
Soupape de securité
(600 kPa)
PD
PS
OUT IN

Table of Contents

Related product manuals