EasyManua.ls Logo

Cofem COMPACT LYON - Page 22

Cofem COMPACT LYON
60 pages
Print Icon
To Next Page IconTo Next Page
To Next Page IconTo Next Page
To Previous Page IconTo Previous Page
To Previous Page IconTo Previous Page
Loading...
Digital fire detection control panel
COMPACT LYON
22
FIRE PRETECTION MANUFACTURER
Ctra. de Molins de Rei a Rubí, Km. 8,4 - 08191 RUBÍ (Barcelona) ESPAÑA.
Tlf.: +34 935 862 690 - Fax:+34 936 999 261 - cofem@cofem.com - www.cofem.com
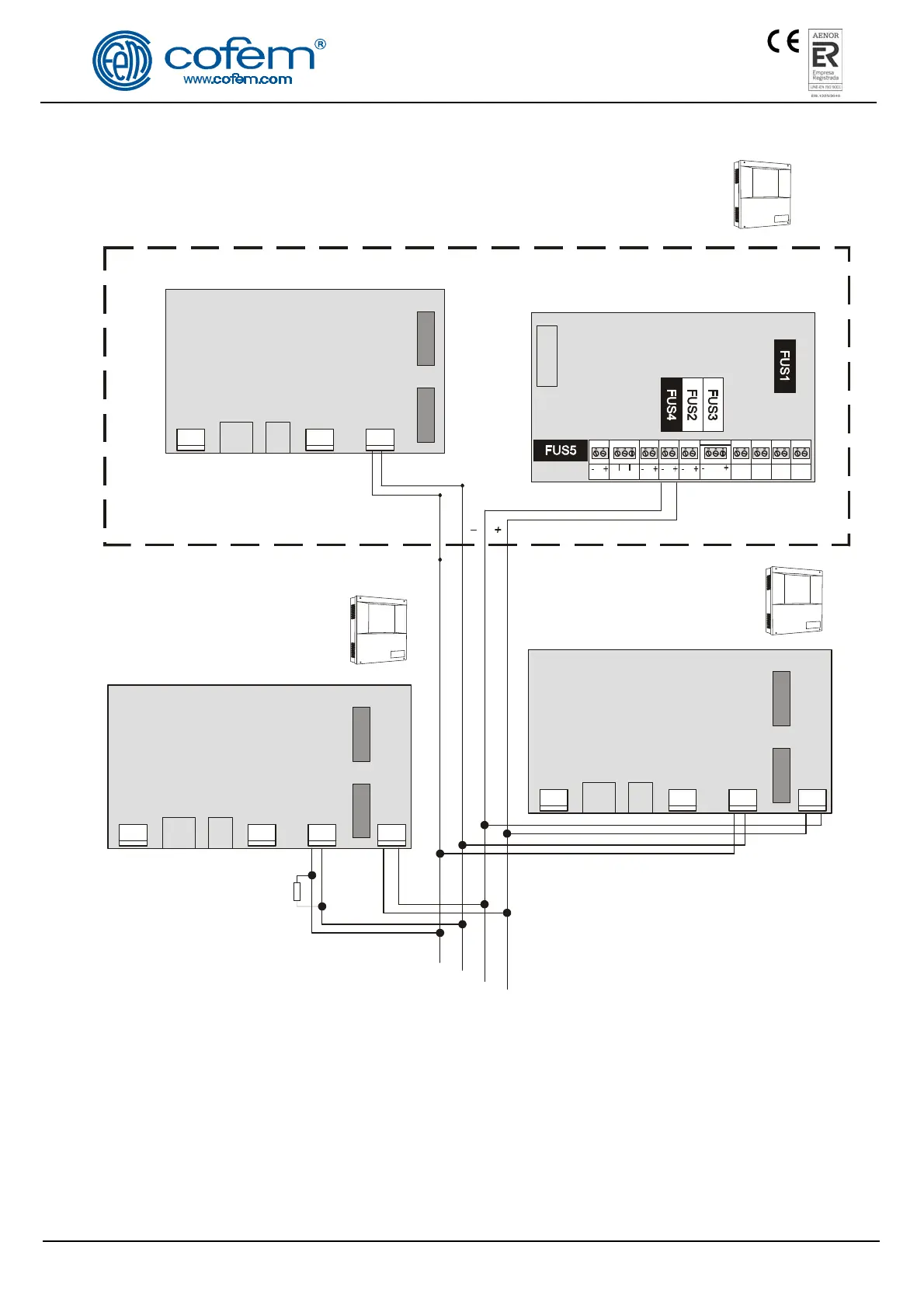
Figure 11. Repeater connection
BATERÍA
24V
30V
AVE RÍA
C NC NA
ALARMA
SIRENA
30V
A B -
PC
A B -
C.P.
NETWORK
A B -
REPETIDOR
CONEXTENSION
CONCPU
CPU
AB
Central / Control Panel / Centrale
C- LYON / ZAFIR
FUENTE DE ALIMENTACIÓN
POWER SUPPLY
SOURCE COMMUTEÉ
A
B -
PC
A
B -
C.P.
NETWORK
B -
REPETIDOR
CONEXTENSION
CONCPU
CPU
30 VDC
A B -
PC
A B -
C.P.
NETWORK
A B -
REPETIDOR
CONEXTENSION
CONCPU
CPU
+
-
30 VDC
REPETIDORA / REPEATER / RÉPÉTETRICE
Nº2
+
-
REPETIDORA / REPEATER / R
É
P
É
TETRICE
Nº1
120 solo en el
repetidor más alejado
120W solo en el repetidor más alejado
120W only in the last repeater
120W dans le dernieur répétiteur

Related product manuals