EasyManua.ls Logo

Commodore 1701 - CONTROL

Commodore 1701
53 pages
Print Icon
To Next Page IconTo Next Page
To Next Page IconTo Next Page
To Previous Page IconTo Previous Page
To Previous Page IconTo Previous Page
Loading...
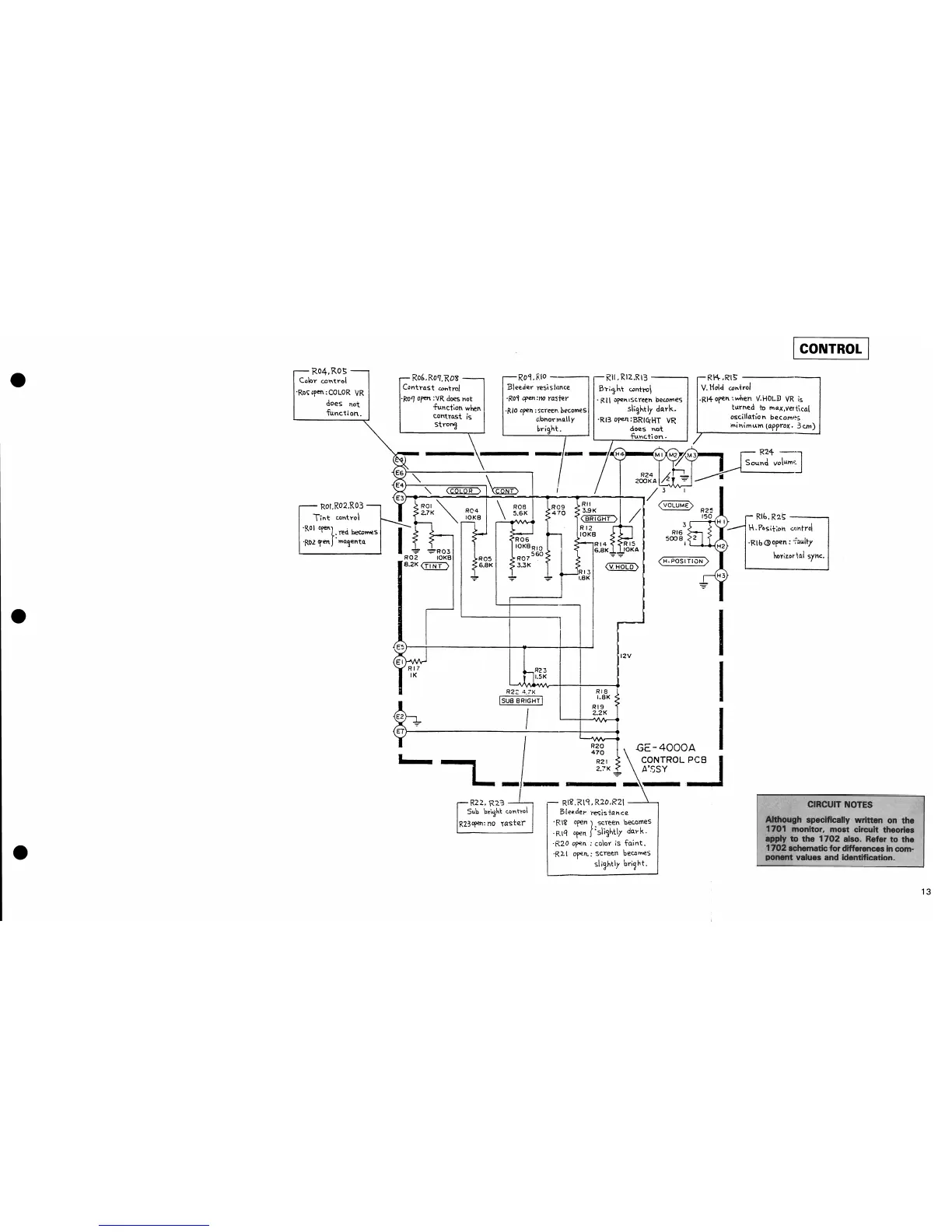
R04tRO~
Colo.,.
contT'ol
'Ro~
'fen:
COLOR
VR
does not
functlon.
Rot.R02
.
R03
Tint
c.chhol
'ROI
open}
.
L.~_
I
red
IJ<;YJIY\4t s
'ROl!fen .
,,"Q~entct
ROb.
RO'7.KD&
Cmb-a.st
CDhtrcl
'Ro'!
open
;VR
does
hot
functiol\
when
c.ontrast
is
stT'O~
RO'i.RIO
_.----,
BI'!eaer
'rl!~istlln(e
'RO~
'fen:
no
raster
·RIO
epe"
: scree", becomes
abnOT"lhllily
bT'i~ht.
-RII.RIZ.RI3
----,
B"r
i':}ht
c..Jntto\
RII
opel\:screen
beCDmes
s\;~htly
do;rk.
'R13
open
:BRICX:HT
VR
does
not
func.tion.
;~:~~~~=i<C~O~L~O~R~):~~~C~O~N~T~)
~~~~.~r-~--~--
__
~
3
~~~
~
RC4
\ ROa
R09
~~K
/
('-V-CL-U-M-E)
IOK8
5.6K
470
(8RIGHT)
3
RI6
CONTROL
RK-
,RIS"
----------.
V.
Hol<l
control
. Rlf
ore"
: when
1/.
HOLD
VR
is
turned to ""'(lX, vert\cal
oscillatio n
beco/lll$
minimlAIn (approl(.
3cm)
Rib.
R2~
-----,
H.
Posit;Oh cllrltrol
I
~
"'-R03
R02
IOK8
RI2
IOK8
Rt4
6.8K
5008
l'-~H
·Rlb
Q)open:
f~L4ltl
hoYizDr
10.1
sy'f\c.
B2K
(TI
N r )
(V
.
HOLD)
R23
1.51<
1l
I ,
R2:
4.7K
Ria
~
ISU88R
I
GHTI
1.8K
RI9
::~
____________________
~/~
________
-+
__
2_._2_K~
RZO
470
12V
.GE-4000A
I
I
I
,
R21
2.:"1(
CONTROL:J
CB
'.
A'SSY .
~
:
L
__
R22.
'K23
-
.....
1-.....
Su.b
byi<j.hl:
c:.onhol
R23~:no
raster
-
R\~.Rlq,
R20.R2\
---'-....,
Bleeder
're<>istarlce
F:
\~
ope;,}
screen
bec.omes
.
P.l'1
open
;sli~htll
da.rk.
'R20
o~n
: coloy is
faint.
·R2.1
0Fn.:
screen becomeS
sli~.htl)'
bri~ht.
CIRCUIT NOTES
Although specifically written
on
the
1701
monitor. most circuit theories
apply
to
the
1702
also. Refer to the
1702
achematic
for
differences
in
com-
ponent values
and
identification.
13

Related product manuals