EasyManua.ls Logo

Community XLT - Mounting Point Details and Suspension Kit; Mounting Point Pull Direction Detail

Community XLT
52 pages
Print Icon
To Next Page IconTo Next Page
To Next Page IconTo Next Page
To Previous Page IconTo Previous Page
To Previous Page IconTo Previous Page
Loading...
PAGE
26
Community XLT / XLTE Series Owner’s Manual
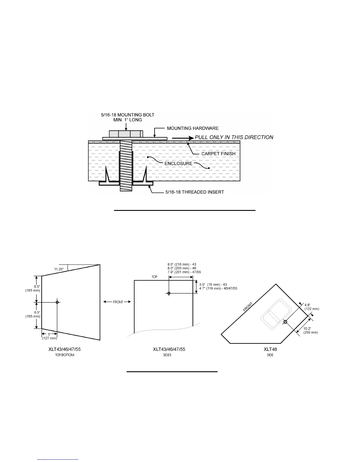
quite strong, these points do NOT have a WLL (Working Load Limit) rating. For this reason always take the following
precautions:
ALWAYS use at least two mounting points on opposite sides of the enclosure.
ALWAYS pull in a direction parallel to the surface of the enclosure in which the mounting point is located.
ALWAYS use hardware that is attached so that it is flush to the surface of the enclosure.
ALWAYS use hardware that is long enough to screw all the way into the mounting point.
ALWAYS use steel hardware rated for the intended load.
DANGER:
The pull direction on the T-nut mounting points must always be at 90 degrees to the hole (i.e. pull is parallel to
the surface of the enclosure in which the mounting point is located) as shown in the FIGURE 7. If a load is
applied in any other direction, the strength of the mounting point is significantly compromised and therefore
creates a dangerous mounting condition that could cause serious damage, injury, or death.
FIGURE 8: XLT Mounting Points
7.4.2 Using the Community CSSUPKIT Suspension Kit
The CSSUPKIT consists of two 12 in. / 305 mm long steel straps with a series of 3/8 in. / 9.5 mm diameter holes
spaced on 1-3/8 in. / 51 mm centers. Using machine screws supplied with the kit, the straps can be attached to the
mounting points. The straps then provide convenient points with which to attach rigging or other mounting
attachments for suspending or mounting the loudspeaker. Refer to the instructions packed with the CSSUPKIT for
proper application and use.
FIGURE 7: Mounting Point Detail - Pull Direction

Related product manuals