EasyManua.ls Logo

Consul 2.25 EMC - Foundation for Lifts Til 4 to

Consul 2.25 EMC
80 pages
Print Icon
To Next Page IconTo Next Page
To Next Page IconTo Next Page
To Previous Page IconTo Previous Page
To Previous Page IconTo Previous Page
Loading...
OPERATING & INSTALLATION INSTRUCTION 2-POST-LIFT
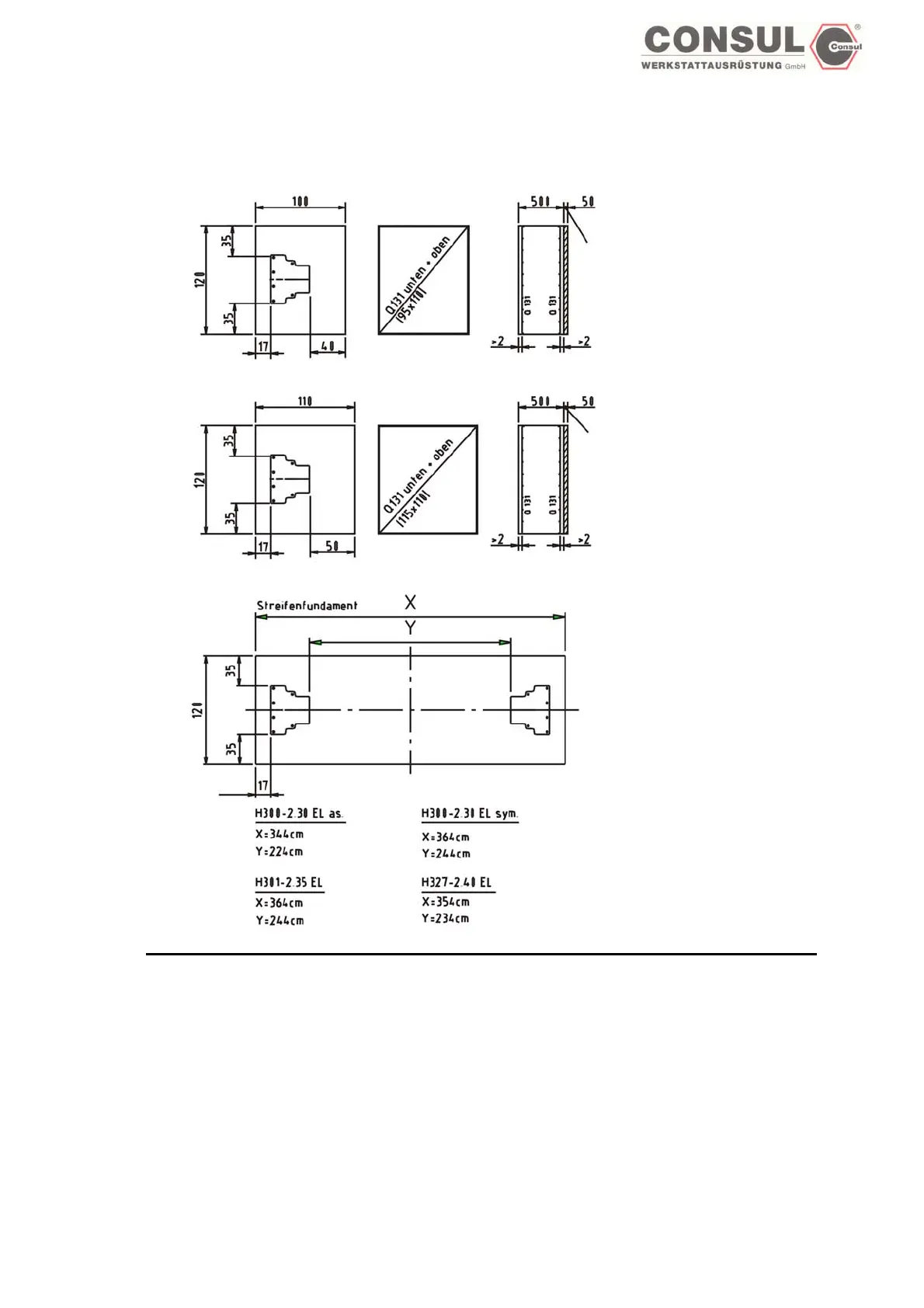
Foundation for lifts til 4 to
Single foundation Reinforcement
Blinding concrete
Underground
Permissible
sigma
b
=200KN/m²
B25, BST 500 M
Concrete floor > 2,0 cm
Blinding concrete
Permissible
sigma
B
> = 150 kN/m²
B 25, BST 500 M
Concrete floor > 2,0 cm
Concrete plate B25
thickness s = > 21 cm
permissible a
sx
= 2,57 cm²/m - under reinforcement BST 500 M
permissible a
Sx,y
= 3,77 cm²/m - above reinforcementBST 500M
Column fitting: H300/H301: for ex. Liebig adhesive anchors Type 12
for Hilti HVA/HAS-M12x110
H327: for ex. Liebig adhesive anchors Type 16
or Hilti HVA/HAS-M16x125
Important: Always follow the assembly instructions and keep to the min. anchoring depths
specified by the dowel manufacturers. Individual certificats must be provided for anchroing on an
exixting reinforced concrete ceiling.
Tests on existing concrete floor are necessary for anchoring!
Page 28

Table of Contents

Related product manuals