EasyManua.ls Logo

Cuenod C24 H101 - Page 15

Cuenod C24 H101
20 pages
Print Icon
To Next Page IconTo Next Page
To Next Page IconTo Next Page
To Previous Page IconTo Previous Page
To Previous Page IconTo Previous Page
Loading...
10/2007 - Art. Nr. 13 019 858A 15
E
D
C
B
F
A
876543
2
1
Am :
Page :
/ de schéma :Art. N° :
Visa :
Date :
2210080
L03.1.0360
13014838.Acod15.01.04
M
101
103113
Oel
Fuel
Oil
Gasolio
Olie
Gasoleo
102
106
M1
Y1
104
105
Luft
Air
Air
Aire
Aria
Lucht
B3
A1
A5
101
102
105
106
103
104
118
T1
Y1
M1
Y16
113
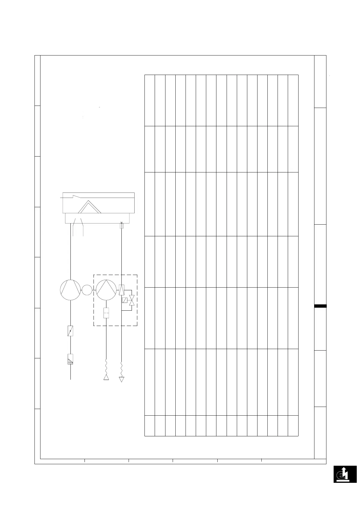
Cellule
Cassette de raccordement
Coffret de contrôle
Ventilateur
Pompe
Volet d'air
Régulateur de
pression
Flexible
Filtre
Gicleur
Moteur du
brûleur
Vanne fuel
Transformateur
d'allumage
Vanne de protection
Grille d'aspiration
Rivelatore di fiamma
Cassetta di collegamento
comando
Programmatore di
Filtro
Ventilatore
Pompa
Serranda aria
Regolatore della
pressione
Tubi flessibili
Ugello
Motore del bruciatore
Trasformatore
d'accensione
Valvola gasolio
Valvola di sicurezza
Detector de llama
Casete de conexion
seguridad
Caja de mando y
Filtro
Ventilador
Bomba
Trampilla de aire
Regulador de
pression
Manguera
Pulverizador
Motor del quemador
Transformador de
encendido
Vàlvula de gasoleo
Vàlvula de seguridad
Cell
Connection cartridge
unit
Control and safety
Blower
Pump
Air flap
Hose
Nozzle
Pressure regulator
Ignition
transformer
Burner motor
Fuel-oil valve
Protection valve
Protection
Filter
Fotocel
Verbindingsdoos
Bedienings en
veiligheidskoffer
Filter
Ventilator
Pomp
Luchtklep
Drukregelaar
Soepele leiding
Sproier
Motor
Ontstekings-
transformator
Oliemagneetventiel
Veiligheidsventiel
Flammenwächter
AnschluBkasten
Feuerungsautomat
Ventilator
Pumpe
Luftklappe
Druckregler
Schlauch
Filter
Düse
Brennermotor
ndtrafo.
Ölventil
Schutzventil
Ansauggitter BeschermingProteccionProtezione
T1
118
Farben/Couleurs/Colors/Colori/Kleur/Colores
BK: Schwarz/Noir/Black/Nero/Zwart/Negra
BN: Braun/Marron/Brown/Bruno/Bruin/Marron
BU: Blau/Bleu/Blue/Blu/Blauw/Azul
GNYE: Grün-Gelb/Vert-Jaune/Green-Yellow
GNYE: Verde-Giallo/Groen-Geel/Verde-Amarillo
Воздух
Прибор управления
Фотоэлемент
Жидкотопливный
клапан
Воздуходувка
Воздушна заслонка
Регулятор давления
Фильтр
Всасывающая
решетка
Двигатель горелки
Шланг
Клеммная коробка
Трансформатор
розжига
Защитный
Насос
Сопло
Цвета
черный
коричневый / Marron
синий
салатный
Топливо

Related product manuals