EasyManua.ls Logo

Cuenod C24 H101 - Page 17

Cuenod C24 H101
20 pages
Print Icon
To Next Page IconTo Next Page
To Next Page IconTo Next Page
To Previous Page IconTo Previous Page
To Previous Page IconTo Previous Page
Loading...
10/2007 - Art. Nr. 13 019 858A 17
E
D
C
B
F
A
876543
2
1
Am :
Page :
/ de schéma :Art. N° :
Visa :
Date :
2210215
L03.1.0361
13014840.BMtz10.09.04
M
M
B3
A1
A5
Y1
106
118
105
104
104
Y5
Oel
Fuel
Oil
Gasolio
Olie
Gasoleo
Farben/Couleurs/Colors/Colori/Kleur/Colores
BK: Schwarz/Noir/Black/Nero/Zwart/Negra
BN: Braun/Marron/Brown/Bruno/Bruin/Marron
BU: Blau/Bleu/Blue/Blu/Blauw/Azul
GNYE: Grün-Gelb/Vert-Jaune/Green-Yellow
GNYE: Verde-Giallo/Groen-Geel/Verde-Amarillo
Luft
Air
Air
Aria
Lucht
Aire
T2
M1
101
Y10
103
102
101
102
105
106
103
104
118
T2
Y1/Y5
M1
Y10
113
113
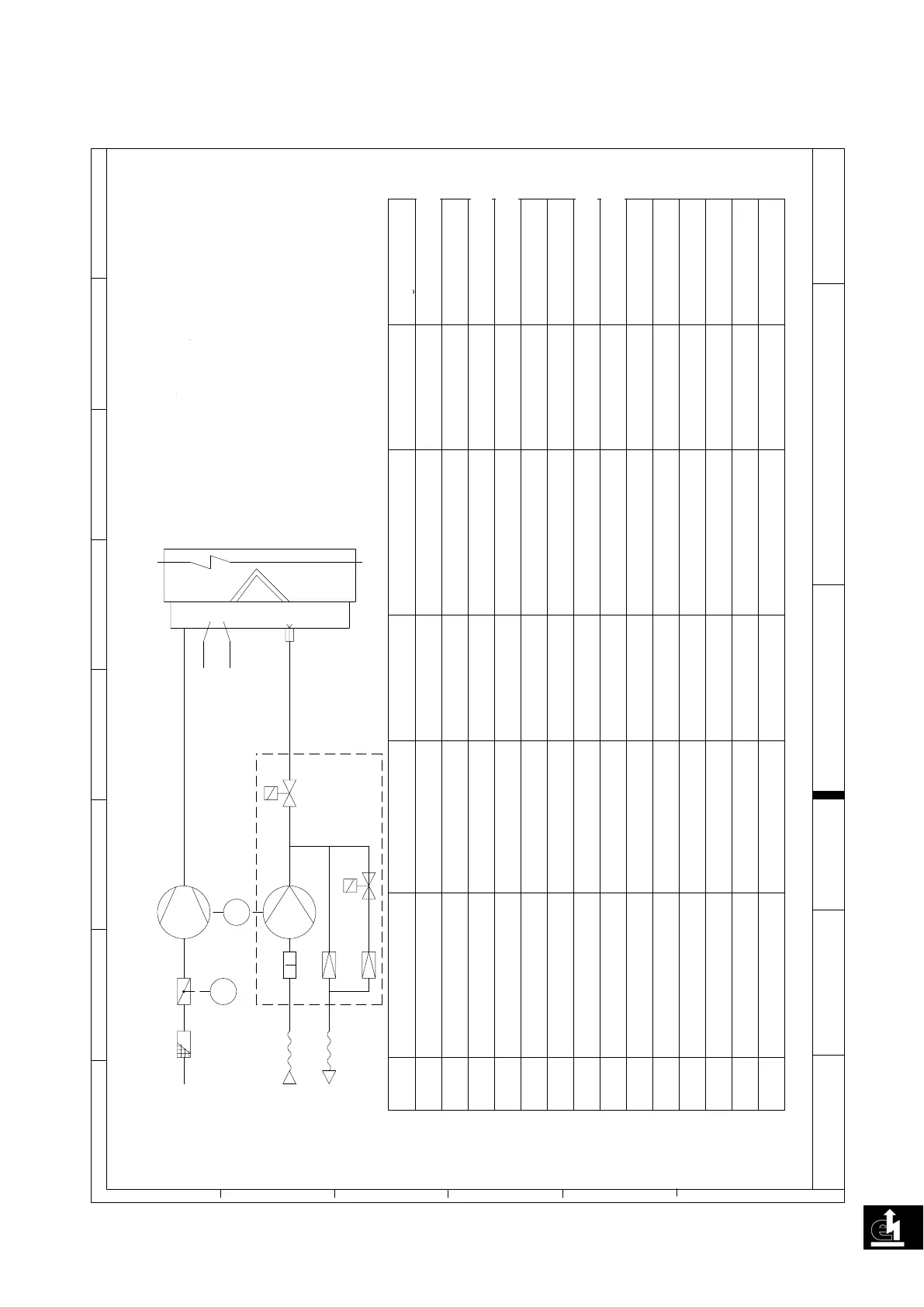
Grille d'aspiration
Cellule
Cassette de raccordement
Coffret de contrôle
Ventilateur
Pompe
Volet d'air
Régulateur de
pression
Flexible
Filtre
Moteur du
brûleur
Vanne fuel
Transformateur
d'allumage
Servomoteur
Gicleur
Rivelatore di fiamma
Cassetta di collegamento
comando
Programmatore di
Filtro
Ventilatore
Pompa
Serranda aria
Regolatore della
pressione
Tubi flessibili
Ugello
Motore del bruciatore
Trasformatore
d'accensione
Valvola gasolio
Servomotore
Protezione
Detector de llama
Casete de conexion
seguridad
Caja de mando y
Filtro
Ventilador
Bomba
Trampilla de aire
Regulador de
pression
Manguera
Pulverizador
Motor del quemador
Transformador de
encendido
Vàlvula de gasoleo
Servomotor
Cell
Connection cartridge
unit
Control and safety
Blower
Pump
Air flap
Hose
Filter
Nozzle
Pressure regulator
Ignition
transformer
Burner motor
Fuel-oil valve
Servomotor
Protection
Flammenwächter
AnschluBkasten
Feuerungsautomat
Ventilator
Pumpe
Luftklappe
Druckregler
Schlauch
Filter
Brennermotor
ndtrafo.
Ölventil
Stellantrieb
Düse
Ansauggitter
Fotocel
Verbindingsdoos
Bedienings en
veiligheidskoffer
Filter
Ventilator
Pomp
Luchtklep
Drukregelaar
Soepele leiding
Sproier
Motor
Ontstekings-
transformator
Oliemagneetventiel
Servomotor
Proteccion Bescherming
Воздух
Прибор управления
Фотоэлемент
Жидкотопливный
клапан
Воздуходувка
Воздушна заслонка
Регулятор давления
Фильтр
Всасывающая
решетка
Двигатель горелки
Шланг
Клеммная коробка
Трансформатор
розжига
Серводвигатель
Насос
Сопло
Цвета
черный
коричневый / Marron
синий
салатный
Топливо

Related product manuals