EasyManua.ls Logo

DAB ACTIVE DRIVER PLUS M/M 1.5 / DV - Figure 4: Connection of the Multi-Inverter Communication; Table 10: Connection of the Multi-Inverter Communication

DAB ACTIVE DRIVER PLUS M/M 1.5 / DV
56 pages
Print Icon
To Next Page IconTo Next Page
To Next Page IconTo Next Page
To Previous Page IconTo Previous Page
To Previous Page IconTo Previous Page
Loading...
ENGLISH
62
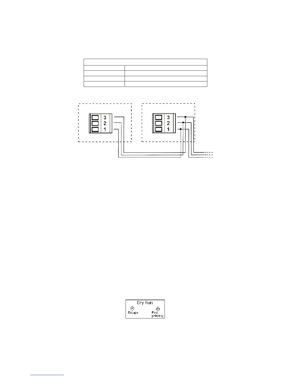
2.3.6 Connection of the multi-inverter communication
The multi-inverter communication takes place through the connectors indicated in Table 10. The connection must be
made by connecting together the corresponding pins on different inverters (e.g. pin 1 of inverter A on in 1 of inverter B,
etc.). It is recommended to use twisted and screened cable. The screen must be connected on both sides to the
central pin of the connector.
Multi-inverter communication wiring diagram
Type of inverter Name of connector
M/T J2
T/T J3
M/M J1
Table 10: Connection of the multi-inverter communication
Figure 4: Connection of the multi-inverter communication
2.4 Configuration of the Integrated Inverter
The system is configured by the manufacturer to satisfy the majority of installation cases, that is:
Operation at constant pressure;
Set-Point (desired value of constant pressure):SP = 3.0 bar
Reduction of pressure to restart: RP = 0.5 bar
Anti-cycling function: Disabled
Anti-freeze function: Enabled
However, all these parameters and many others can be set by the user. There are many other operating modes and
accessory functions. Thanks to the different possible settings and the availability of configurable input and output channels, it
is possible to adapt the inverter operation to the requirements of various systems.
For the definition of the parameters SP and RP, the pressure at which the system starts has the value:
Pstart = SP – RP For example: 3.0 – 0.5 = 2.5 bar in the default configuration
The system does not work if the utility is at a height higher than the equivalent in metres of water column of the
Pstart (consider 1 bar = 10 m water column): for the default configuration, if the utility is at a height of at least 27m
the system does not start.
2.5 Priming
At each switch-in, the system checks the presence of water in delivery for the first 10 seconds.
If a flow of water is detected in delivery, the pump is considered primed and starts its regular work.
If a regular flow in delivery is not detected, the system asks for confirmation to enter the priming procedure and shows
the pop-up in the figure:
Figure 5: first priming
Pressing “-“ confirms that you do not want to start the priming procedure and the product remains in alarm status,
deactivating the pop-up.

Table of Contents

Related product manuals