EasyManua.ls Logo

Dacor DCM24S - Schematic Diagrams (Part 2); Oven Schematics (Mix & Convection); Component Functions (Part 1); Door Interlock Switches

Dacor DCM24S
43 pages
Print Icon
To Next Page IconTo Next Page
To Next Page IconTo Next Page
To Previous Page IconTo Previous Page
To Previous Page IconTo Previous Page
Loading...
10
DCM24B
DCM24R
DCM24S
DESCRIPTION AND FUNCTION OF COMPONENTS
SCHEMATIC
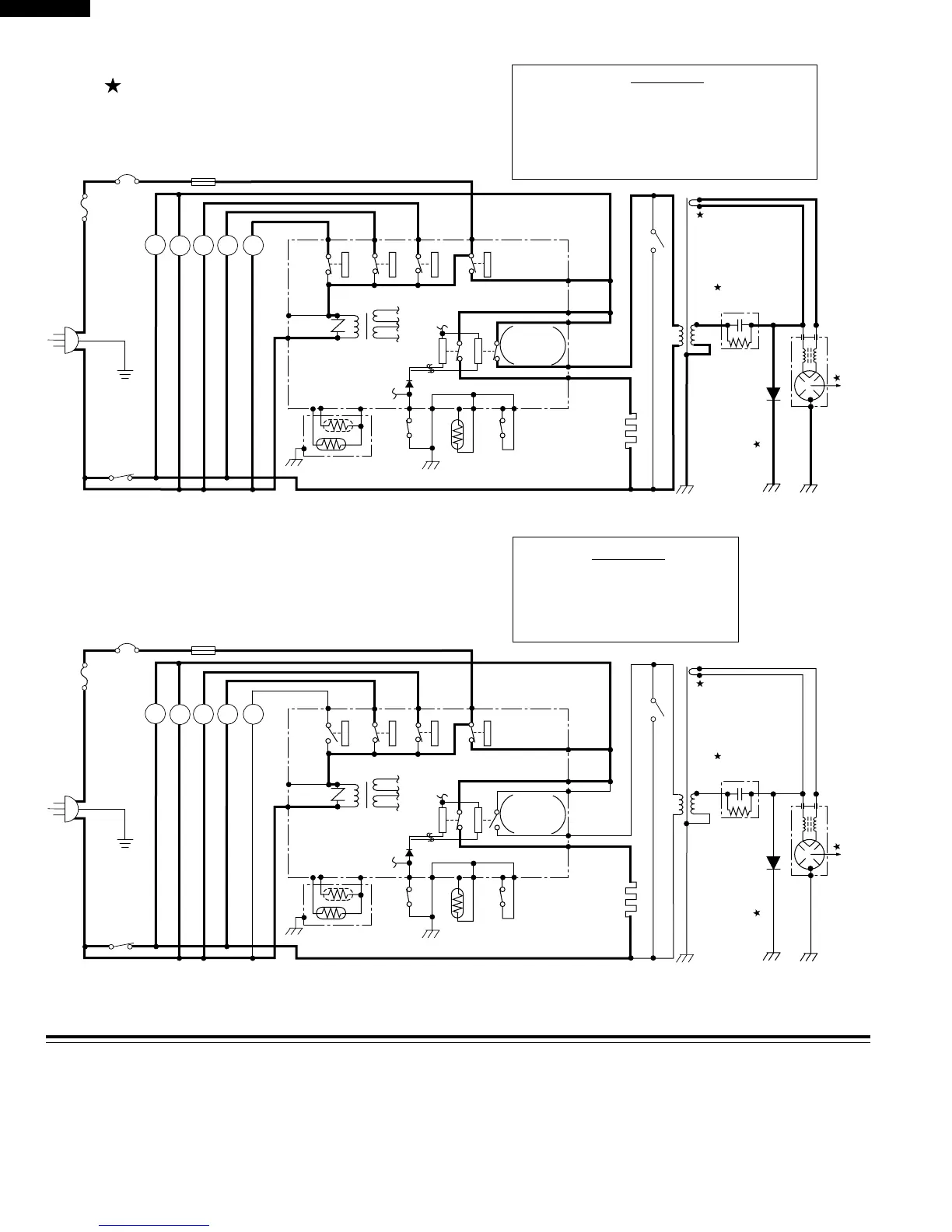
1. DOOR CLOSED.
2. CONVECTION PAD TOUCHED.
3. DESIRED TEMP. TOUCHED.
4. COOKING TIME PROGRAMMED.
5. “START” PAD TOUCHED.
SCHEMATIC
1. DOOR CLOSED.
2. MIX COOKING PAD TOUCHED.
3. COOKING TIME PROGRAMMED.
4. “START” PAD TOUCHED.
5. RY2 AND RY3 WILL ALTERNATELY CLOSE.
DURING COOK CYCLE.
Figure O-4. Oven Schematic-Convection Cooking Condition
Figure O-3. Oven Schematic-Automatic Mix Cooking Condition
DOOR SENSING AND SECONDARY INTERLOCK
SWITCHES
The door sensing switch in the primary interlock system is
mounted in the upper position on the latch hook, the second-
ary interlock switch is mounted in the lower position on the
latch hook. They are activated by the latch heads on the door.
When the door is opened, the switches interrupt the circuit to
NOTE: " " indicates components with potentials above 250V.
CONV.
THERMAL
CUT-OUT
MONITOR SWITCH
OVEN LAMP
FAN MOTOR
A-5
A-3
A-1
E-6
CONTROL UNIT
DAMPER
SWITCH
THER-
MISTOR
DOOR
SENSING
SWITCH
AH SENSOR
DAMPER MOTOR
CONVECTION MOTOR
TURNTABLE MOTOR
HEATIMG ELEMENT
MAGNETRON
POWER
TRANSFORMER
H.V. RECTIFIER
CAPACITOR
0.94µ
RY4
RY5
RY6
RY1
SECONDARY
INTERLOCK
SWITCH
120V
60Hz
TTM
FM
COM.
(RY1)
E-5E-4E-3E-2E-1F-3F-2F-1
RY3
RY2
PRIMARY
INTERLOCK
RELAY
N.O.
(RY1)
COM.
(RY3)
COM.
(RY2)
N.O.
(RY2)
N.O.
(RY3)
A-9
A-7
CM
DM
OL
MAGNETRON
TEMPERATURE
FUSE
FUSE
RY2
CONV.
THERMAL
CUT-OUT
MONITOR SWITCH
OVEN LAMP
FAN MOTOR
A-5
A-3
A-1
E-6
CONTROL UNIT
DAMPER
SWITCH
THER-
MISTOR
DOOR
SENSING
SWITCH
AH SENSOR
DAMPER MOTOR
CONVECTION MOTOR
TURNTABLE MOTOR
HEATIMG ELEMENT
MAGNETRON
POWER
TRANSFORMER
H.V. RECTIFIER
CAPACITOR
0.94µ
RY4
RY5
RY6
RY1
SECONDARY
INTERLOCK
SWITCH
120V
60Hz
TTM
FM
COM.
(RY1)
E-5E-4E-3E-2E-1F-3F-2F-1
RY3
RY2
PRIMARY
INTERLOCK
RELAY
N.O.
(RY1)
COM.
(RY3)
COM.
(RY2)
N.O.
(RY2)
N.O.
(RY3)
A-9
A-7
CM
DM
OL
MAGNETRON
TEMPERATURE
FUSE
FUSE
RY2

Other manuals for Dacor DCM24S

Related product manuals