EasyManua.ls Logo

Dacor ERV30 - Page 7

Dacor ERV30
16 pages
Print Icon
To Next Page IconTo Next Page
To Next Page IconTo Next Page
To Previous Page IconTo Previous Page
To Previous Page IconTo Previous Page
Loading...
\
, /
/
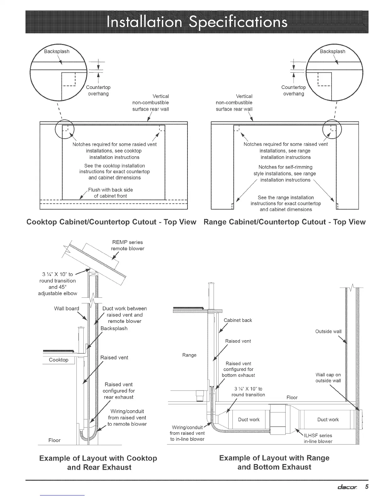
tches required for some rasied vent
installations, see cooktop
installation instructions
_ See the cooktop installation
instructions for exact countertop
and cabinet dimensions
_ . Flush with back side
....... 1 / of cabinet front
Vertical
non-combustible
surface rear wall
Cooktop Cabinet/Countertop Cutout oTop View
Vertical
non-combustible
surface rear wall
Countertop
overhang
/
I
I
L:\
Notches required for some raised vent I
installations, see range
installation instructions
Notches for self-rimming _ I
style installations, see range _
._ installation instructions _, I
_/ See the range installation "_ I I
in*"structions for exact countertop "
and cabinet dimensions
Range Cabinet/Countertop Cutout oTop View
REMP series
remote blower
3 !¼" X 10" to
round transition
and 45 °
adjustable elbow
Wall board Duct work between
raised vent and
remote blower
Backsplash
Cooktop
Raised vent
Floor
Raised vent
configured for
rear exhaust
Wiring/conduit
from raised vent
to remote blower
Exampme of Layout with Cooktop
and Rear Exhaust
Range
Wiring/conduit _
from raised vent
to in-line blower
Cabinet back
Raised vent
Raised vent
configured for
bottom exhaust
/
3 IA" X 10" to
round transition
Floor
Outside wall
\
Wall cap on
outside wall
Duct work
ILHSF series
in-line blower
Example of Layout with Range
and Bottom Exhaust
....................\

Other manuals for Dacor ERV30

Related product manuals