EasyManua.ls Logo

Daewoo CIELO 1998 - Ignition and Engine Systems Wiring

Daewoo CIELO 1998
68 pages
Print Icon
To Next Page IconTo Next Page
To Next Page IconTo Next Page
To Previous Page IconTo Previous Page
To Previous Page IconTo Previous Page
Loading...
p14.tif
14
ELECTRICALS
NEXIA. CIELC. =lACER
II
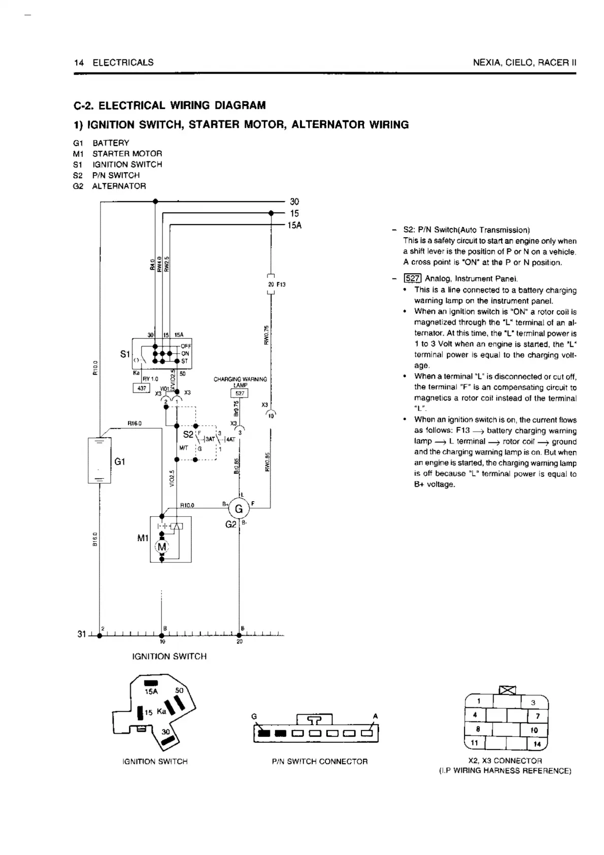
C-2. ELECTRICAL WIRING DIAGRAM
1) IGNITION SWITCH, STARTER MOTOR,
Al
TERNATOR WIRING
G1
BATTER'{
M1
STARTER
MOTOR
S1
IG'-Jl,ION S'NITC'1
S2
P!t-J
SVJITCl-i
G2
.A.L
TERNATCR
30
15
------------
1
SA
I
:;,:,!
,I\
1cA
, , ~:cc
S1
:··
· C)',
..
,,·
Kil
·--~
..
'
'•
:c:.
I
I
I
t
S2
tv11
t
M
;
1;:;r
::.>-AH(,I',(
·1;1,,.r-p~~:,
:/•}Jfc
;r•
X3
'2
,.
t-.!
,.i
:1
2D
F13
31..i..!a
2
-11...1....1.~l...1.l~l1...1.l~~.B~l...1.l~l...i,.l_l._.,J_._..._.1~~.B~1....__._.._,._
IO
20
IGNITION SWITCH
IGNmON SWITCH
PIN
SWITCH
CONNECTOR
-
S2:
P!N Sw1tch(Ali'.C T·ansmissio1,
-.-,,sis
a safety
:;1rc1A
to sta1
ar
eng,ne
orlv
wne,,
a shi't :eve:
1s
tre
;;-ositicr of P or
',
en
a vehicle
.A.
cco,;s
prnn'.
s "O'J" a: the P
O"
~, posit o
..
,
-
15271
Analog
lns'.r ~rient
Pare,
Tnis
is
a
lire
ccnrec:ec
'.o
a batter; rr,q;1,;::;
warning
l2rrp
or·
the
instr
~'Tent panel
Wt-en
a:1
gnit
or
sw1tcn
1s
'Or/
a 'O'.or coli
is
rnagnet:Led
·rrcugr
trc
"L'
:crmir,a cf
ar
al-
ternator.
At
:hs
:1mc,
t,e
"L"
te·~iral
po·t,w
1s
1 tc 3 Volt wh,:n
;1·1
e
0
·g,ne
1s
stc,ne:t
1-,.,
'L
·
torrn:na: r,owcr s
e;il,a
to
1-,0 cr,arriir'q
·,c•lt-
ago
··Nr,en
a te·m1·1c,I
'L
is
d1s,::,1-r-,ecte,j or
c"t
cit.
the
tRrrnwa
'F'
is
.)1
,:cn-,:v:ri:);.'!~I["~;
cirr;J1'
~c
n~agnet,cs
a ro~or
\-:n1!
1r:;tea,j
of
t.he
te~m
pa
'I.
Whun m1
iffi
:10•1
S\\:1tc1
is
c,r··
ttH:
<:urrent
fio·ti~,
cis
'cl'ow:;:
FU
,.
h::ltlic"/
c~c1r:ji-
0
,J
wFtrr-111r;
lamp - I
'Em:·1r:al
---c
"'.:tor
c,>1'
--,.
gr,:iunG
;ir:.(1
thFect·;4·~1w~~
'l,arninc; lar--p
1s
en
Hl1t
wher
,w
llf'!.Jif'e
i'o
st,3r'.,':d.
trc
r.h,ng1n,J ·,;am1r1q ldrnr;
1'-~
<Jft
bec,'.H,SC!
'_'
tc,..rn;
...
1;:,.
;_1.;y.ver
s cqL:1.
tc
th
voltaq,, .
4
8
11
3
7
10
14
X2,
)(3
CONNECTOR
(I.P
WIRING
HARNESS
REFERENCE)

Related product manuals