EasyManua.ls Logo

Daewoo CIELO 1998 - Rear Window Defroster Wiring

Daewoo CIELO 1998
68 pages
Print Icon
To Next Page IconTo Next Page
To Next Page IconTo Next Page
To Previous Page IconTo Previous Page
To Previous Page IconTo Previous Page
Loading...
p46.tif
46 ELECTRICALS
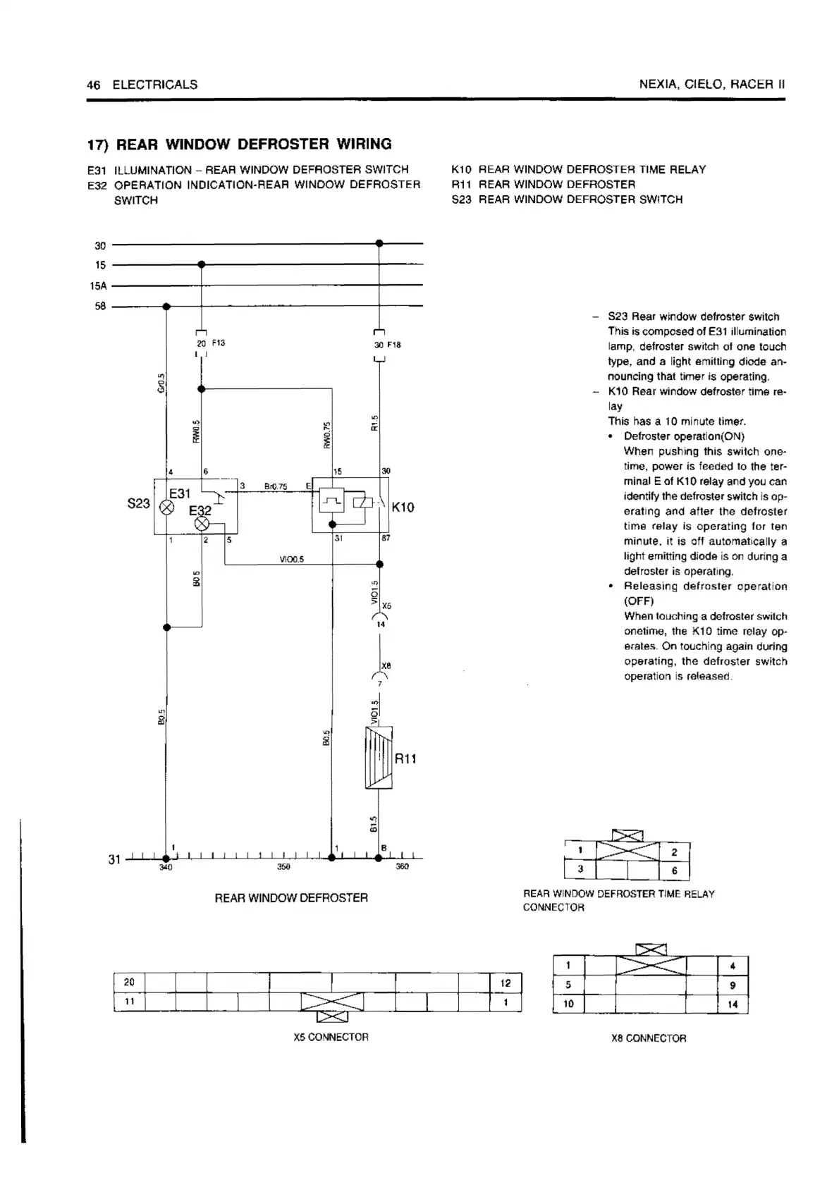
17) REAR WINDOW DEFROSTER
WIRING
E31
ILWMINATION -
REAR
WINDOW DEFROSTER SWITCH
E32
OPERATION INDICATION-REAR WINDOW DEFROSTER
SWITCH
30---------------------
15
_____
...,
__________
-+---
15A------+------------+---
58--------+------------+---
$23
It)
0
"'
20
Fl3
I J
..
fil
3
BI0.75
V100.S
i
REAR
WINDOW DEFROSTER
X5
CONNECTOR
30 F18
"l
i
Xii
14
i
7
~
>
A11
NEXIA, CIELO, RACER
II
K10
REAR
WINDOW DEFROSTER TIME
RELAY
R11
REAR
WINDOW DEFROSTER
S23
REAR
WINDOW DEFROSTER
SWITCH
I lfj
-
S23
Rear
window
defroster
switch
This
is
composed of
E31
illumination
lamp,
defroster switch of one touch
type,
and a light emitting diode
an,.
nounclng that timer is operating.
-
K10
Rear
Window
defroster time
re-
lay
Thie
has a 10 minute timer.
Defroster operatlon(ON)
When pushing this swttch one-
time, power is feeded to the ter·
mlnal E of K10 relay and
you
can
Identify the defroster
switch
Is
op.
eratlng and after the defroster
time relay
Is operating for ten
minute.
it
is off automatieally a
light emitting diode
is
on
during a
defroster
is
operating .
Releulng
defroster operation
(OFF)
When
touching a defroster switch
onetime,
the
K10 time
relay
op-
erates. On touching again during
operating, the defroster
swRch
operation
is
released.
REAR
WINDOW
DEFROSTER
TIME
RELAY
CONNECTOR
U.I
F:9
1.:1
X8
CONNECTOR

Related product manuals