EasyManua.ls Logo

Daewoo CIELO 1998 - Page 63

Daewoo CIELO 1998
68 pages
Print Icon
To Next Page IconTo Next Page
To Next Page IconTo Next Page
To Previous Page IconTo Previous Page
To Previous Page IconTo Previous Page
Loading...
p63_2.tif
TYPE)
.SISTER
TCH
'
\11015
A27
LW0.75
g
I I I I I I
720
Fl-6TYPE)
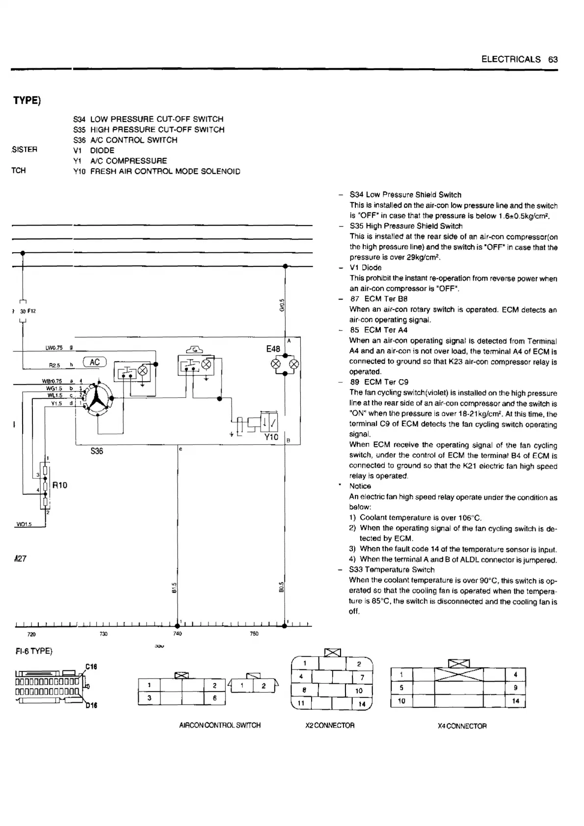
S34
LOW PRESSURE CUT-OFF SWITCH
S35
HIGH
PRESSURE
CL
T-OFF
SWITCH
S36
AJC
CONTROL
SWITCH
V1
DIODE
v1
A/C
CCMPRESSURE
Y10
FRESH AIR CONTROL MODE SOLENOID
I
J
i
_/
h
t~J
?
S36
730
740
l~1g112]
r -
Y10
8
I
"ll
ffi
Q I
'f]_f]4
/f,
~
3
__
l '
ELECTRICALS
63
- S34
Low
Pressure Shie!J Switch
This is installed on the air-con low pressure line and the switch
is
''OFF'
in
case that
the
p·essure
is Delow 1 6~0.5kg'cm2.
- S35 High Pressure Shield Switcti
This is installed at the rear side
of
an
air-con
compressor(on
the high pressure
rne)
and
:re
switch
1S
"OFF'
n case ·hat the
pressure
is over
29kg/cm
2
-
V1
Diode
This prohibit
the
instant re-operatlor from reve ·se poNr. r when
an air-con
compressor is "OFF".
- 87
ECM
Ter
B8
When
an air-con rotary S½itch is
cperated
[CM
detects
an
air-con operating signal.
85
ECM
Ter
A4
When
an .1ir,oon operating
signa:
1s
detectr.'1
from
"'.'crmina
A4
and
an
air-con
is
not
over
load,
the
terminal A4
of
ECM is
connected
to
ground
so
tr,at
K23
air-con corn:iressc·
rBlay
Is
operated.
89
ECM Ter
C9
Ttie
fan
cyc~ng
sw·tch(vblctl
Is in,t:_;lled on
'.t·c-
high
;;rc-saurn
line
at
tho
rear
side
of
an
ai"
con
ccr'1pl'8880'
arid th€ switch is
"ON"' when the pressure is over 18-21 kg/cm•. At this time, the
torminal C9
of
E"CM
detect,;
the
fan cyclin·1
:,witeh
o~;CJratin\;
,w1nal.
When
ECM
receive the
operating
signal
of
the fan cycling
switch,
under
the control
cf
ECM :tie
term111a'
B4
rif
rCM
is
connectorJ to grounfl
so
:hat
the
~;21
electnc fan high speed
relay is operated.
Notice
An electnc fan high speed relay operate under the
cond1t1on
as
below:
1)
Coolant
temperature
1s
over
1
OG
C.
2)
When
the operating signal
of
the fan cycling switch is
de·
tected
by
ECM.
])
When
the
fault ,:ode 14
al
the
frc,rnceraL
·~
sensor
10
input
4)
When
the terminal A
and
B
of
ALDL connector
is
iumpered.
- S33
Temperature
Switch
When
the coolant temperat,,"8
is
r.:,ver
90°C.
tr,1$
SW1'.cr1
18
op-
erated so that the cooling fan
is
operatoo
when
the tempera-
ture
is
as··c.
the switch
is
discrrnnected and
the
C()ollng
tan
is
off
X2CONNF(';T0A

Related product manuals