EasyManua.ls Logo

Daewoo CIELO 1998 - Page 66

Daewoo CIELO 1998
68 pages
Print Icon
To Next Page IconTo Next Page
To Next Page IconTo Next Page
To Previous Page IconTo Previous Page
To Previous Page IconTo Previous Page
Loading...
p67_2.tif
I
TYPE)
S34
LOW
PRESSURE
CUT-OFF
SWITCH
S35
HIGH
PRESSURE
CUT-OFF
SWITCH
S38
A/C
CONTAOL
SWITCH
ISTER
V1
DIODE
V1
A/C
COMPRESSURE
::H
V10
FRESH
AIR
CONTROL
MODE
SOLENOID
F
S36
R10
2
...
I
3
I T
I :
1~
·
1
·
AIRCON
CONTROL
SWITCH
~
'
8
·11
ELECTRICALS
67
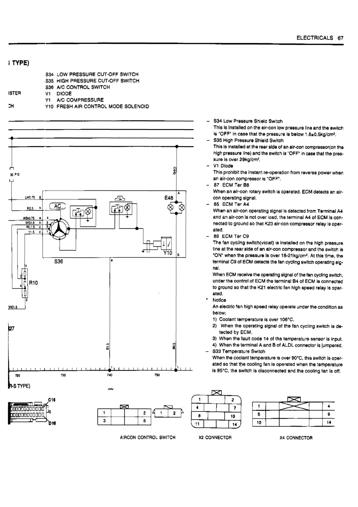
- $34
Low
PreNure
Shield
Switch
This
Is
lnatalled
on
the
air-con
low
preature
line
and
the
8'M1d1
la
'OFF"
In
case
that
th•
prqsure
la
below
1.h0.5kg/cm'.
-
S35
High
Preutn
Shield
Switch
This
Is
lnslallad at
Iha
rear
Ilda of
an
air-con
COff1Jl'HSOl'(on
the
high
prNUe
line)
and
the
8Wltch
18
'OFF"
In
aaN
that the
pres-
aura
Is
over
29kg/cm'.
-
V1
Diode
This
prohibit Iha Instant
re-operation
from
ravarae
power
when
an
alr•con
compr8880r
ts
"OFF".
-
87
ECM
Ter
BB
When
an
air-con
rotary
8Wltch
II
operated.
ECM
detect8
an
air-
con
operating
llgnal.
-
85
ECM
Ter
A4
When
an
air-con
operating
Signal
f8
detected
from
T•rmlnal M
and
an
air-con
la
not
over
load,
the
terrntnal
A4
of
ECM
11
oon•
nected
to
ground
ao
that
K23
air-con
oompJNIOI'
relay
la
oper-
ated,
-
B9
ECM Ter
C9
The
fan
cycling
IWltch(vlOlet)
18
lnatalled
on
the
high
preeeure
line
at
the
rear
aide
of
an
air-con
comprnaor
and the
8Wltch
18
"ON"
when
the
preaaure
II
over
1
s-21
kg/cm'.
At
thla
time,
the
terminal
C9
of
ECM
Cletec18
the
fan
cycllng
8Wllch
operaang
elg-
nal.
When
ECM
l'9C8lw
the operating algnal of the fwl
cy<:llng
twltdl,
under the control of
ECM
the terminal B4 of
ECM
la
connected
to
ground
so
that
the
K21
elactrlc
fan
high
IP99d
relay
ts
oper-
ated.
Notice
An
electric
fan
high
speed relay operate
under
the
condition
as
below:
1)
Coolant
temperature
Is over 106"C.
2)
When
lhe
operating
algnal
of
the
fan cycling awllch
la
de-
tected
by
ECM.
3)
When
the
fault
code
14
of
the
temperature
aeneor
II
Input
4)
When
the
terminal
A
and
B of
ALDL
connector
la
Jumpered.
-
S33
Temperature
Switch
When
the
coolant
temperatura
II
over
90"0,
1h11
8Wltch
18
oper-
ated
ao
that
tt,e
cooling
fan
le
operated
when
the
temperature
la
B6°C,
the
awltch
II
clllconnect9d
and the
COOiing
fan
18
Off.
2
~,
I
7
I
t
I
4
10
8
14
10
14
X2
CONNECTOR
X4CONNECTOFI

Related product manuals