EasyManua.ls Logo

Daewoo CIELO 1998 - Page 68

Daewoo CIELO 1998
68 pages
Print Icon
To Previous Page IconTo Previous Page
To Previous Page IconTo Previous Page
Loading...
p70.tif
70
ELECTRIC.ALS
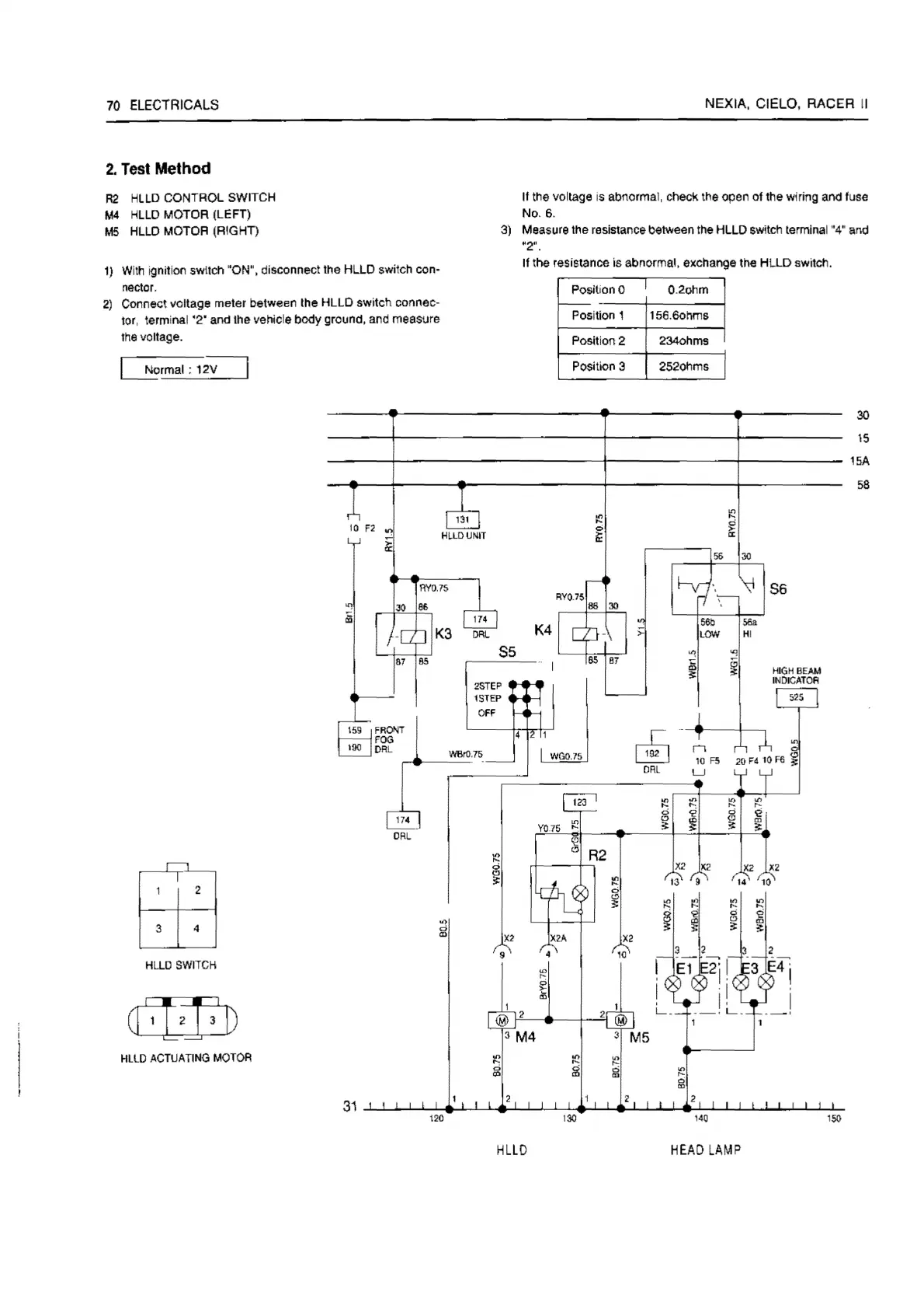
2.
Test
Method
R2
HLLD
CO'rROL
SWITCH
M4
HLLD
MOTOR
(LE:FT)
MS
HLLD MOTOR (RIGHT)
1)
With ignition switch "ON", disconnect the
HLLD
switch con-
nector
2:
Correct
voltage meter cetweer
the
HLLD switc' c:onnec-
tor,
terminal
'2'
and the vehicle body ground, and
measure
the
vcltage.
Lj;rmal
:
1~
a:I
HLLOUNIT
NEXIA, CIELO,
RACER
.I
If the voltage
is
abnormal, check the ooen of
tre
w,rin;i and fuse
No.
6.
3) Measure the resistance between the HLLD
switch
terminal
"4"
and
'2".
If the resistance is abnormal, exchange the H'--LD sw1tcr.
Posit1onc
I
02ohm
I
~
-
Position 1 156.6ohms
I
Position 2
234ohrns
l
Position 3 252ohms
I
56 3()
30
·,5
15A
~
K3
DRL
K4
S6
56b
56a
iitl
HLLC
SWITC-,
J?::?l\D
Hl
lD
ACTLATING
tiC
IOR
'!ill
·KO\T
31
fJ,3
DRL
,74
ORL
.L
I
Wllr0.75
in
"'l
I
j
11
1
120
S5
"'
,.,
,,
Cf>
HLLO
j I
I WG0,751
~
Y0.75
i\
~-
-.
fl
ii
I
.l.'@
L-A'T
HI
+
L n
L2::._j
10F5
DRL
LJ
~
=
....
_
0
'c'
C')
I
_';l
I
X2
/;,)\
9
~
~
;i
HIGH
BEAM
It
DICAT
::;
F
r
~
r1-i
0
'-"
20
F410F6,:
"'
c-
'i?·
m
~T
Xi.
14
j
;)',
;
1_
!,_,
~B
~I
3 2 3 2
,:,
'ij'
,;
I )
__
-_E.
~-~2j
!
.E
3
E4
1
IJ
I - ·
,
I,
I
-
'L
---
~
M5
i
130
HE.ti.J
LAM;:)

Related product manuals