EasyManua.ls Logo

Daewoo FRS-U20FF. - Page 83

Daewoo FRS-U20FF.
84 pages
Print Icon
To Next Page IconTo Next Page
To Next Page IconTo Next Page
To Previous Page IconTo Previous Page
To Previous Page IconTo Previous Page
Loading...
U20D(E)D.. U20F(G)D..
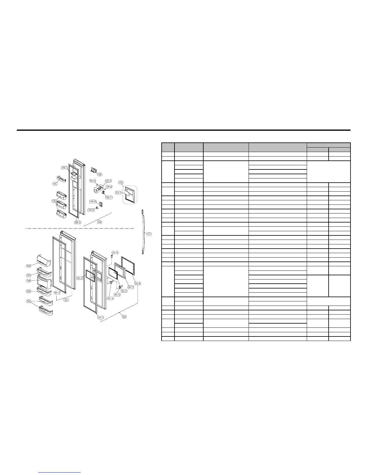
134 3019026700 POCKET F *T HIPS 1 1
135 3019027450 POCKET F AS FRU-54AD 3 3
3000079130 FRU-54AF (SUS430)
3000095310 FRU-54AF (TITANIUM PCM)
3000079700 FRU-54AF (03 SIVER)
3000079750 FRU-54AF (TITANIUM VCM)
3000079120 FRU-54AF (BLACK)
136-1 3010964601 CAP ICE PATH FRAME PP(FRS-551F) x 1
3012318810 GASKET F DR AS PVC+MAGNET 1
x
3012318820 GASKET F DR AS PVC+MAGNET(BK) x 1
136-4 3015102200 SPRING ICE D LEVR SUS 1 1
136-5 3011495300 COVER I/FLAP AS FRU-541D 1 1
136-6 3012019700 FIXTURE I/SHUT LUVR FR-S650CD 1 1
136-7 3015403000 VALVE SOL DISP 220~240V/50Hz 1 1
136-8 3016306500 BUTTON DISPNS AS FRU-54AD 1 1
136-9 3018125800 SWITCH MICRO VP333A-2D 1 1
138 3010563100 BOX DISPNS I/SHUT ABS FRU-54AF 1 1
3001413800 FRU-54AD 1 x
3001413810 FRU-54AF x 1
140-1 30143G2160 PCB FRONT AS FRU-54AD (FR-1 180X98.5-1.6T) 1 1
141 3012648701 HANDLE AS ARC HANDLE(SANDING) 2 2
156 3019027530 POCKET DAIRY AS FRU-54AD 1 1
157 3019027230 POCKET R *M AS FRU-54AD 2 1
158 3019027720 POCKET R H/BAR AS FRU-54AF x 1
159 3011187020 CASE H/BAR AS FRU-54AF x 1
160 3019027330 POCKET R *S AS FRU-54AD 2 2
3000079910 FRU-54AD/54MD (SUS 430)
3000095410 FRU-54AD (TITANIUM PCM)
3000095420 FRU-54AF (TITANIUM PCM)
3000079870 FRU-54AF/KF/MF (BLACK)
3000079860 FRU-54AF (TITANIUM VCM)
3000079880 FRU-54AF (SUS430)
3000079800 FRU-54AF (03 SIVER)
3012318910 PVC+MAGNET
3012318910 PVC+MAGNET(BK)
161-2 3012321400 GASKET H/BAR B AS PVC x 1
161-4 3015204500 STOPPER H/BAR DR *R PO T4.0 x 1
161-5 3015204400 STOPPER H/BAR DR *L PO T4.0 x 1
3012321300 PPV
3012321310 PPV (BLACK)
161-7 3011785800 DOOR H/BAR AS FRU-54AF x 1
161-8 3001411400 COVER H/BAR FRAME SAS ABS+SPRAY x 1
161-9 3018125400 SWITCH H/BAR DR AS SP101B-2D1 x 1
- Some parts can be chaged for improving their perfomance without notice.
161-1 GASKET R DR AS
83
140
136-2
ASSY R DR
A
rc Handle Type Door Part (1/2)
NO PART-CODE PART NAME SPEC.
Q'ty
U20D(E)D..: None H/Bar Models
U20F(G)D..: With H/Bar Models
1
COVER DISPNS BOX AS
161-6 GASKET R H/BAR A AS x 1
1
161
ASSY F DR136
1
x
x
1

Related product manuals