EasyManua.ls Logo

Daewoo FRS-U20IV - Refrigerator Door Parts List

Daewoo FRS-U20IV
61 pages
Print Icon
To Previous Page IconTo Previous Page
To Previous Page IconTo Previous Page
Loading...
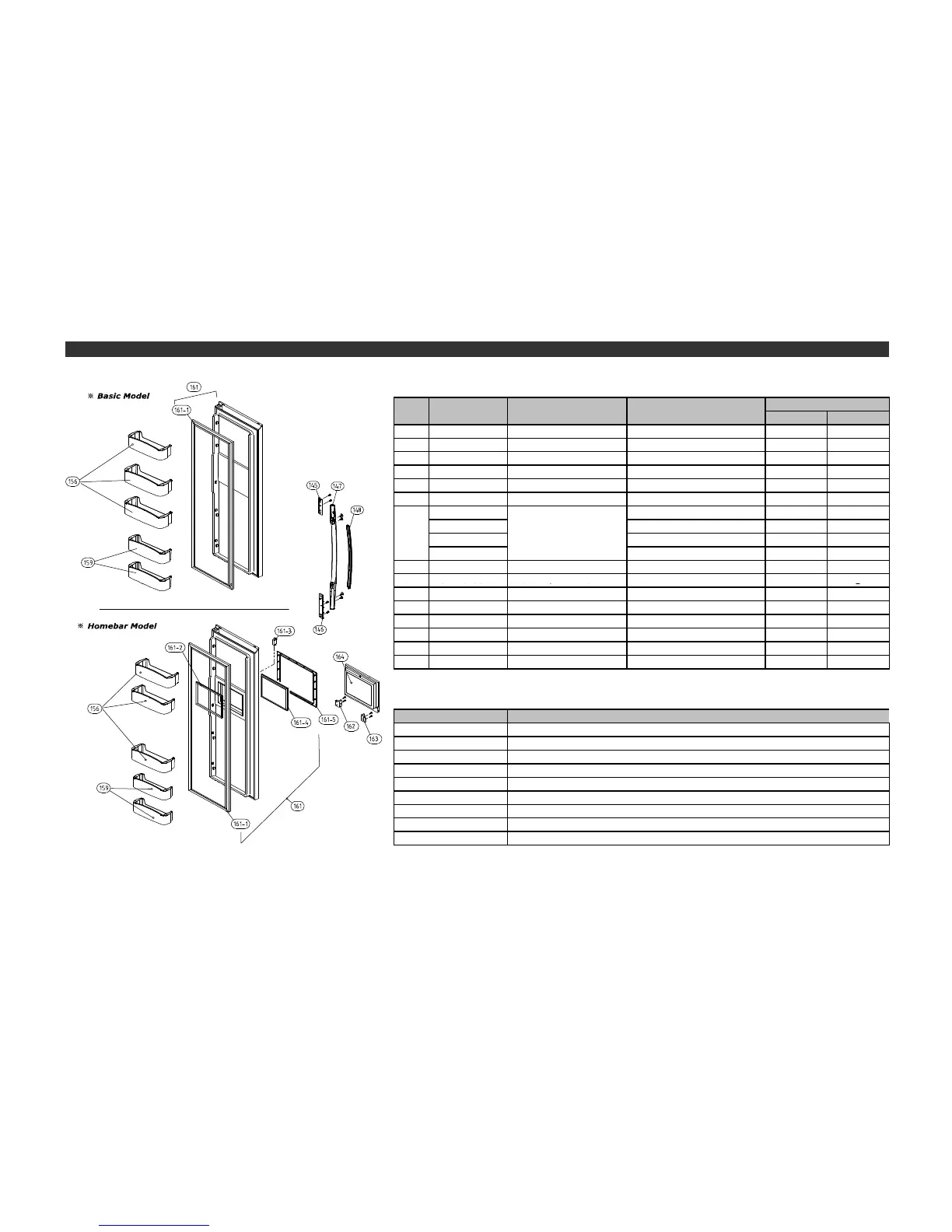
Basic H/Bar
145 3010339100 BASE HNDL *T HIPS
11
146 3010339200 BASE HNDL *U HIPS
11
147 3012640900 HANDLE F/R AS FR-S580DVB 1
1
148 3011636010 DECO HANDL F/R ABS(NO SPRAY)
11
156 3019026800 POCKET R HIPS 3
3
159 3019026900 POCKET R *S FRU-571I 2
2
30000607B0 FRU-54VF(TITANIUM) X 1
30000607C0 FRU-54VF(DE WHITE) X 1
30000607D0 FRU-57VI(TITANIUM) 1 X
30000607E0 FRU-57VI(DE WHITE) 1 X
161-1 3012318930 GASKET R DR AS PVC+MAGNET 1
1
161
-
2
3012319300
GASKET H/BAR B AS
PVC
x
1
161
NO
ASSY F DR
Q'ty
Refrigerator Door
SPEC.PART NAMEPART-CODE
161 2
3012319300
GASKET H/BAR B AS
PVC
x
1
161-3 3018125601 SWITCH H/BAR DR AS SP101B-2D1(G) GRAY x
1
161-4 3012319400 GASKET H/BAR A AS PVC x
1
161-5 3011497200 COVER H/BAR FRAME FRU-541F x
1
162 3015204500 STOPPER H/BAR DR *R PO T4.0 x
1
163 3015204400 STOPPER H/BAR DR *L PO T4.0 x
1
164 3011767902 DOOR H/BAR AS FRU-541F x
1
- Some parts can be chaged for improving their perfomance without notice.
A
mendment Note
Date
60

Related product manuals