EasyManua.ls Logo

Daikin BS8Q14AV1 - 5. BS UNIT INSTALLATION

Daikin BS8Q14AV1
23 pages
Print Icon
To Next Page IconTo Next Page
To Next Page IconTo Next Page
To Previous Page IconTo Previous Page
To Previous Page IconTo Previous Page
Loading...
6 English
4. PREPARATIONS BEFORE INSTALLATION
Install suspension bolts and hanging brackets as illustrated in the diagram below.
Use a suspension bolt size of M8 to M10.
Use mold-in inserts and embedded foundation bolts for new installations or hole-in anchor bolts or similar
hardware for existing installations, taking care to install in a manner that can withstand the unit’s weight.
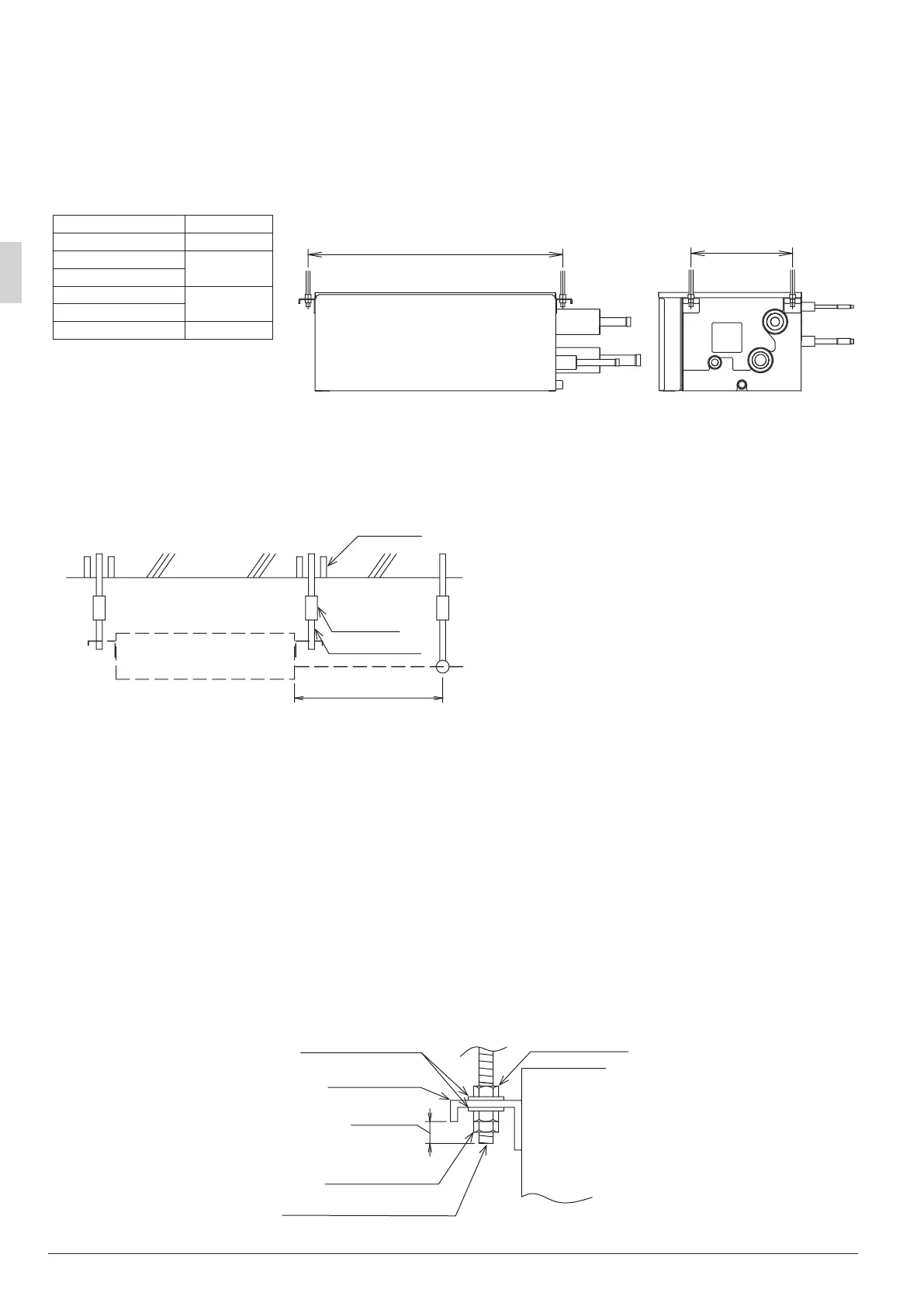
Unit: mm
BS unit A
BS4Q14AV1 415
BS6Q14AV1
625
BS8Q14AV1
BS10Q14AV1
865
BS12Q14AV1
BS16Q14AV1 1105
A 308
<Suspension bolt spacing>
Use the hanging brackets to support the connection pipes on both the front and back of the unit within
1 m of the unit’s side.
Placing an excessive amount of weight on the BS unit’s hanging brackets may cause the unit to fall,
resulting in bodily injury.
Slab
Anchor bolt
Long nut or
turnbuckle
Suspension bolt
Within 1 m
Unit
Connection
pipe
All the above parts must be supplied in the eld
<Example installation>
5. BS UNIT INSTALLATION
Use only accessories and parts that conform to the designated specications when installing the unit.
1. Position the BS unit and secure it temporarily in place.
Attach the hanging brackets to the suspension bolts as per the instructions in the gure to the right.
Be sure to afx nuts (M8 or M10, 3 pieces in 4 locations) and washers (for M8, outside diameter of 24 to
28 mm or for M10, outside diameter of 30 to 34 mm: 2 pieces in 4 locations) (to be supplied in the eld)
from both the top and bottom of the hanging brackets on both sides of the unit to secure it in place.
2. Adjust the height of the unit as desired.
3. Using a level, verify that the unit has been installed in a level orientation.
(The unit should be either level or within 1° of slope toward the drain socket.)
Nut (double nut)
(Field supply)
Suspension bolt (Field supply)
10 - 15 mm
Hanging bracket
Washer (Field supply)
Nut (Field supply)
BS unit
01_EN_3P194121-8U.indd 6 2/21/2014 3:31:06 PM

Related product manuals