EasyManua.ls Logo

Daikin DBG Series - Page 36

Daikin DBG Series
40 pages
Print Icon
To Next Page IconTo Next Page
To Next Page IconTo Next Page
To Previous Page IconTo Previous Page
To Previous Page IconTo Previous Page
Loading...
36

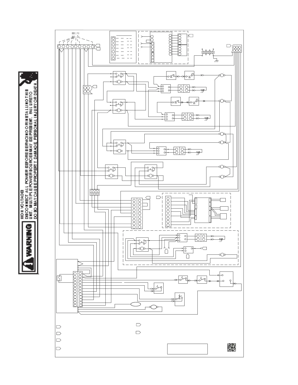
WIRING DIAGRAMS

YL
BL
BL
BL
RD
GR
RD
RD
0140L04765-B
1
3
4
2
CC1
CMC1
CC2
CMC2
1
2
3
4
1
2
1
2
3
4
1
2
AUX2-I
OCC
E-GND
EXH1
AUX1-O
Y2-I
Y2-O
Y1-I
C
R
Y1-O
1
2
MAT
MAT
1
2
OAT
OAT
1
2
S-BUS
S-BUS
1
2
3
1
2
3
4
IAQ 2-10
IAQ COM
IAQ 24V
ACT COM
ACT 24V
GRD
LUG
MAS
OD ENTH
ECON
ACT
ECON PLM
ECON MODULE
ECON
PLF
ECON SHRT
PLM
PLM 3
PLF 3
CCR1
TB3
PU
BL
BL
PU
YL
BL
TB3
BL
SUPPLY (LINE)
VOLTAGE
24 VAC
TR1
2
2
CONTROLS DIAGRAM
3
3
HPS1 LPS1
HPS2
LPS2
PU
YL
PU
YL
PU
YL
PU
5 6
1
3
4 2
CCR2
5 6
1
2
3
FM1
1
2
1
2
1
2
3
FM2
1
2
1
2
-t°
-t°
1
2
3
1
2
1
2
-t°
1
3
4 2
LAR
5
6
LAM2
T1
T2
LAT
T6
LA CMC
1
2
3
1
2
1
2
-t°
LAM1
1
3
4 2
CMR
5 6
BK
BK
BK
BK
BL
BL
OR
BK
YL
BK
RD
BL
BL
WH
WH
BL
GY
WH
WH
OR
OR
WH
WH
BL
BR
OR
OR
WH
WH
RD
RD
RD
RD
BL
BK
BL
BR
1
2 3
1
2
3
THERMOSTAT WIRING
Y1
TB1
W
G
W
PK
RD
Y1
R
OR
BL
GR
C
2 STAGE COOLING
WH
O
O
Y2
C
G
R
YL
PK
RD
OR
BR
STAT
Y2
R
C
S1
S2
YI
Y2
G
W1
W2
TB1
FIELD
CONTROL
WIRING
CLASS 2
SEN2
SEN1
7
18
8
17
6
16
B
R
Y
Y
AUX B
AUX A
10
9
B
R
Y
Y
SENSOR 1
SENSOR 2
B
R
Y
Y
B
R
Y
Y
SMOKE DETECTOR
4
BR
WH
GR
RD
PU
PU
YL
YL
BK
5
BLRD
RD
YL
BL
RD
YL
BL
BL
YL
YL
PU
PU
BL
OR
PU
BL
GY
YL
YL
PU
YL
PU
PU
GR
PU
PU
1. REPLACEMENT WIRE MUST BE SAME SIZE AND TYPE OF
INSULATION AS ORIGINAL (USE COPPER CONDUCTORS ONLY).
2. IF OPTIONAL ECONOMIZER IS INSTALLED, REMOVE ECON SHRT
PLM AND CONNECT ECON PLM TO ECON PLF.
3. TB3 LOW VOLTAGE TERMINAL BLOCK.4 TERMINALS FOR 24VAC
PWR (RD,BK,BR WIRE) AND 6 TERMINALS FOR 24VAC COM (BL WIRE).
4. CONNECTIONS SHOWN ARE FOR 1-STAGE HEAT OPERATION.
WHEN 2-STAGE OPERATION IS REQUIRED REMOVE WH JUMPER WIRE
CONNECTING W2 TO W1 ON TB1.
5. IF OPTIONAL SMOKE DETECTOR IS INSTALLED, REMOVE RD JUMPER
WIRE CONNECTING S1 TO S2 ON TB1 AND MAKE THE FOLLOWING WIRE
C
ONNECTIONS: RD WIRE TO S1,BR WIRE TO TB3 (24V/PWR),BL WIRE
TO TB3 (24V/COM).
NOTES:
BL
1
2
3
4
5
6
7
8
9
1
2
3
4
5
6
7
8
9
YL
WH
RD
1
2
3
4
5
6
7
8
9
RD
GY
BL
YL
PU
RD
6. IF LOW AMBIENT KIT IS INSTALLED, CONNECT GY WIRE FROM LAM2-3
TO CMR-4. ALSO CONNECT BL COM WIRES FROM LAT-T6 AND LAM2 -2
TO TB3 (24V COM).
RD
OR
6
BL
GY
BL
BL
ECON OPTION
LOW AMB
OPTION
BL
PU
PU
SMK DET
OPTION
BK
RD
RD
RD
GY
GY
YL
RD
RD
BL
OR
BR
GR
RD
RD
PU
YL
PU
BR
WH
GR
RD
RD RD
BC2
LOW SPEED
BC1
HIGH SPEED
BL
BL
BR2
BL
YLPU
WH
YL
GR
PU
BL
BL
1
3
4 2
5
6
BR1
1
3
4 2
5
6
BK
BK
BK
GR
BL
BR
BR
BL
BL
YL
BR
BR
BK
GR
GR
BL
YL
YL
YL
BL
GY
OR
WH
WH
WH
YL
YL
BL
YL
OR
BK
PU
BL
BL
BL
YL
BK
BL
BL
BL
BL
BL
BL
1
HEAT
24V
24V COM
GV
LIMIT
SW
PRESSURE
SW
G IN
PRESSURE
SW
3A
I
I
C
R
W IN
Y IN
COMP OUT
L2
D1
FS
PS
ALS
LS
RS
1ST STG
COM
2ND STG
GV
RD
RD
GR
WH
RD
BL
L1
L2
BL
FS
VMR
GY
BL
BL
GY
RD
RD
YL
YL
YL
YL
PU
PU
GR
GR
RD
BL
BL
YL
WH
GR
BR
BR
YL
YL
RD
PU
2
3
4
5
6
7
8
9
1
0
1
1
1
2
1
2
3
4
5
6
7
8
9
1
0
1
1
1
2
BL
BL
COOL
RD
RD
24V AC/DC
PK
GR
BL
BL
BL
BL
RD
RD
PU
BL
PU
WH
WH
WH
WH
BR
BR
WH
RD
GR
RD
GR
YL
YL
BL
GY
WH
WH
WH
WH
WH
RD
YL
PU
WH
WH
WH
BR
GR
RD PU
YL
YL
RD
RD
5
PU
6
YL
YL
BK
BK
OR
BR
GR
BR
YL
WH
YL
GR
YL
RD
BL
GR
PLF
PLM
PLF
PLM
PLF
PLM
PLF
PLM
7
7. LAT ON/OFF TIME SETTINGS :
ON - TIME (LEFT COLUMN) : 2,8 = ON
OFF - TIME (RIGHT COLUMN) : 8 = ON
ALL - OTHER DIP SWITCHES = OFF

Other manuals for Daikin DBG Series

Related product manuals