EasyManua.ls Logo

Daikin DCC180 - Page 33

Daikin DCC180
36 pages
Print Icon
To Next Page IconTo Next Page
To Next Page IconTo Next Page
To Previous Page IconTo Previous Page
To Previous Page IconTo Previous Page
Loading...
33
HIGH VOLTAGE!
DISCONNECT ALL POWER BEFORE SERVICING OR INSTALLING THIS
UNIT. MULTIPLE POWER SOURCES MAY BE PRESENT. FAILURE TO
DO SO MAY CAUSE PROPERTY DAMAGE, PERSONAL INJURY OR DEATH.
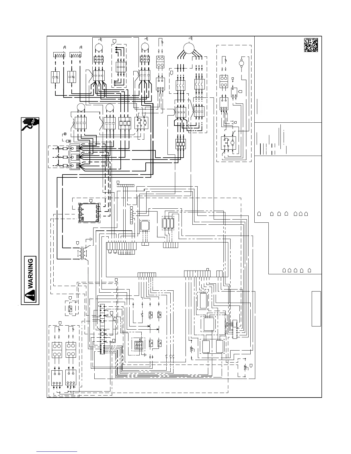
Wiring is subject to change. Always refer to the wiring diagram on the unit for the most up-to-date wiring.
WIRING DIAGRAMS
DCC300* 208-230, 460, 575 / 3 / 60 1&2 SPEED
7
8
6
5
4
3
2
1
0140L06606-A
T1
T2
LAT
T6
1
3
6
5
4
2
LAR
1
2
1
2
1
2
3
LAM2
PLM
PLF
-t
W
LA CMC
LOW AMB
OPTION
L3
L2
L1
1
2
1
2
1
2
3
LAM1
PLM
PLF
CMR
2
4
5
6
3
1
7
HIGH
SPEED
CB1
T3
T2
T1
L3
L2
L1
BC1
EM
T3
T2
T1
L3
L2
L1
T1
T2
T3
LAC MC
T3
T2
T1
L3
L2
L1
PLF
PLM
FB 2
F6
F5
F4
3
2
1
3
2
1
FB 1
CMC2
CMC1
T3
T2
T1
L3
L2
L1
CM1
F3
F2
F1
T3
T2
T1
L3
L2
L1
RD
BR
PU
BK
BR
BK
BK
BR
BK
BR
PU
GR
BK
BR
YL
BK
YL
BR
BK
PU
PU
PU
BK
BK
RD
OR
BK
RD
OR
BK
RD
OR
YL (11)
YL (13)
YL (12)
GR
BL
BL
PU
PU
PU
GY
GY
GY
BK
BK
BK
BK
PU
(CLASS2)
BK
BCS
OAT
PS
CS
TB1
CFS
RSS
LDS
CO2
S
M
K
/
E
M
G
2
BK
LPS1
HPS2
YL
HPS1
LPS2
PU
BL/PK
BL/PK
YL/PK
YL/PK
YL/PK
YL/PK
PK
BK
BK
YL
PU
YL
GND
24 VAC
OAH
VOUT (DC)
GND
24VAC (COM)
24 VAC
VOUT (DC)
VOUT (DC)
24 VAC
IAH
GND
BI8
BI5
COM3-8
RLY8
BI1
BI2
BI3
BI4
BI7
GND
24VAC
BR
RD
COM3-8
RLY7
RLY6
RLY5
RLY4
RLY3
COM1
BL
PU
PU
OAT
CFS
EMERGENCY SHUTDOWN
FAN PROV SW
HEAT/STG2
HEAT/STG1
YL
BI6
LOAD SHED
RLY1
RLY2
COM2
24V RLY
EXF (SSR)/VFD
ALRM (SSR)
ECON DMPR
OAH
SPC TMP
CO2 SENSOR
DDC (CLASS2)
ECON FEEDBACK
C
GR
(CLASS2)
TB2
DAT
COMP/STG2
COMP/STG1
24V RLY 1
24V RLY 2
YL
ECON
AO1
AO2
AO3
AO4
GND
GND
WH
AG
SPCTEMP
TEMP
GND
STPT OFFSET
GR
BR
BR
BK
BK
PU
PU
GR
GR
BR
BR
BR
GR
BR
BR
GR
RD
RD
RD
BL
BL
BL
BL
PU
PK
PK
PU
YL
BK
RD
BK
BK
BK
BL/PK
PU
PU
YL
PU
PU
YL
PU
WH
PK
WH
WH
PK
WH
BR
ALRM
-
+
EXF
-
+
GR
GR
AI3
AI8
AI7
AI6
AI5
AI4
AI1
AI2
AGND
AGND
GR
WH WH
PU
BK
PU
PLF
WH
BL
T
R
1
5
RD
BL
4
-t
3
BAC NET
T-
BAC NET
R+
SH
+
-
HGRH
BR
BL
BL
PU
PU
GR
GR
GR
BL
BL
BL
BL
RD
6
5
4
3
2
1
BR
BR
BR
BR
BR
BL
RD
RD
BL
RD
BR
BR
BL
BL
2
4
V
C
N
T
L
V
O
L
T
A
G
E
L
I
N
E
V
O
L
T
A
G
E
RD
BL
RD
BL
BL
SUPPLY AIR TMP
MOD HGRH
SPC HUM
COMP PRESS SW1
BLOWER/STG1
COMP PRESS SW2
SPC SLIDE ADJ
RMT STRT/STP
BK
-t
FSW
24VAC
RD
RD
T1
T2
T3
T4
1
2
1
2
1
2
3
FM2
PLM
PLF
-t
W
1
2
1
2
1
2
3
FM1
PLM
PLF
-t
W
YL
BLOWER/STG2/EXF
COND FAN(S)
REV VALVE/LAT
DEFROST SW (ES)
BK
YL
BL
BK
RD
RD
RD
RD
OR
OR
OR
OR
WH
WH
WH
WH
BL
PU
BK
YL
PU
PU
PU
BL
BL
BL
BK
BK
RD
RD
YL
BL
BK
BL
BK
1
1
1
2
RD
RD
PK
PK
PK
RD
RD
RD
RD
PK
BR
BR
BK
BR
BK
BR
BK
BR
YL
RD
RD
RD
BK
BK
BK
BK
BL
BL
BL
BL
9
T3
T2
T1
L3
L2
L1
LOW
SPEED
CB2
T3
T2
T1
L3
L2
L1
BC 2
BR
BK
RD
OR
YL
BL
GY
YL
BL
GY
BK (1)
BK (3)
BK (2)
PU
PU
BL
BL
BL
BL
BL
BL
BL
BL
8
13
8
L3
L2
L1
L1
L3
L2
GND
L1
CCH2
CCH1
PB
CC1
CC2
CCAS2
CCAS1
PU
T3
T2
T1
L3
L2
L1
COMP1
RD
LINE VOLTAGE
L3
L2L1
PHASE MONITOR
10
YL
BK
RD
YL
BK
RD
PU
BK
BK
GY
GY
GY
BK
BK
GR
BK
PU
BK
BK
BL
PU
BL
BK
BR
PU
BL
BL
10
1
2
1
1
PK
PK
PK
BK
BK
24V RLY
BR
BL
BL
BK
PU
PU
YL
YL
YL
RD
RD
RD
YL
BK
OR
GY
BL
WH
OR
BK
YL
RD
OR
BK
YL
RD
BL
BL
BL
BL
GY
BL
WH
WH
WH
WH
WH
-t
W
WH
WH
RD
BL
BL
GY
BK
RD
L2
L3
YL
PU
BK
RD
BL
BL
GY
BL
BR
WH
PU
YL
RD
RD
RD
YL
YL
RD
RD
RD
BK
RD
T5
XS
DA
ES
BL
BL
PK
RD
BK
BK
RD
RD
BK
BL
PU
YL
GR
L1
L3
L2
T3
T2
T1
L3
L2
L1
COMP2
PU
RD
BK
PU
PU
GY
GY
L3
L2
L1
PLF
PLM
3
2
1
3
2
1
CM2
GR
BK
BR
PU
BK
BR
PU
BR
BK
BL
GY
BK
RD
BR
BL
OR
BK
RD
OR
BK
BK
BK
RD
RD
RD
OR
PU
YL
RD
BK
BR
BK
BR
PU
BR
POWER & CONTROL WI RING DIAGRAM
DCC(300) ***(3,4,6,7) (B, V)
DDC
GR GREEN
W
IRE CODE
BL BLUE
PU PURPLE
PK PINK
WH WHITE
BK BLACK
RD RED
BR BROWN
OR ORANGE
YL YELLOW
GY GRAY
BLOWER CONTACTOR
BC
COMPRESSOR CONTACTOR
COMPRESSOR
ECONOMIZER
HIGH PRESSURE SWITCH
POWER DISTRIBUTION BLOCK
FEMALE PLUG/CONNECTOR
TERMINAL BLOCK (24V SIGNAL)
CC
COMP
ECON
HPS
PB
PLF
TB
COMPONENT LEGEND
CIRCUIT BREAKER
CB
GND
BCS
BLOWER CURRENT SWITCH
CFS
CLOGGED FILTER SWITCH
DAT
DISCHARGE AIR TEMPERATURE SENSOR
DDC
DIRECT DIGITAL CONTROL
CO2
CARBON DIOXIDE SENSOR
FC
FAN CAPACITOR
EQUIPMENT GROUND
EXF
EXHAUST FAN
IAH
INDOOR AIR HUMIDITY SENSOR
LOW PRESSURE SWITCH
LPS
RSS
REMOTE START/STOP
OAT
OUTDOOR AIR TEMPERATURE SENSOR
OAH
OUTDOOR AIR HUMIDITY SENSOR
LDS
LOAD SHEDDING
SPC
TEMP
SPACE TEMPERATURE SENSOR
YL/PK YELLOW WITH
PINK STRIPE
BL/PK BLUE WITH
PINK STRIPE
ALRM
ALARM
HGRH
HOT GAS REHEAT
SMK
SMOKE DETECTOR
HIGH VOLTAGE
FIELD
W
IRING
LOW VOLTAGE
FACTORY
W
IRING
OPTIONAL ACC
ES
SORI
E
S
OR FIELD SUP
PLIED COMPON
ENTS
OPTIONAL LOW VOLTAGE
NOTES:
2
3
4
5
PS
PRESSURE SWITCH
FM
FREEZE STAT MODULE
HIGH VOLTAGE
LOW VOLTAGE
PLM
MALE PLUG/CONNECTOR
6
7
8
9
1
0
1
1
1
2
FSW
FLOAT SWITCH
PM
PHASE MONITOR
CONDENSER MOTOR
CM
CRANK CASE HEATER
CCH
CONDENSER MOTOR CONTACTOR
CMC
CC AUX SWITCH
CCAS
FUSE BLOCK
FB
CONDENSER MOTOR RELAY
CMR
LACMC
LOW AMBIENT CONDENSER MOTOR
CONTACTOR
LAM
LOW AMBIENT MODULE
LAR
LOW AMBIENT RELAY
LOW AMBIENT TIMER
LAT
EVAPORATOR MOTOR
EM
IF LOW AMBIENT KIT IS INSTALLED, DISCONNECT CONDENSER
MOTOR WIRES FROM CMC1 (T1, T2, T3) AND CONNECT TO
CORRESPONDING (BK, BR, YL) WIRES WI TH QUICK CONNECT
TERMINALS FROM LAC MC (T1, T2, T3). CONNECT (BK, BR, YL)
FROM LAC MC (L1, L2, L3) TO CMC1 (T1, T2, T3).
IF LOW AMBIENT KIT IS INSTALLED, CONNECT GY WIRE FROM
LAM2 - 3 TO CMR -4. ALSO CONNECT BL COM WI RES FROM LAT-
T6 AND LAM2 -2 TO TB 2 (24V COM).
OPTIONAL; CB1, CB2, BC2 AND ASSOCIATED WIRING IS PRESENT
ONLY WITH 2-SPEED EVAPORATOR MOTOR. WHEN PRESENT, BK
WIRE FROM DDC CONTROLLER INSTALLED ON BC2 AND BR WIRE
FROM DDC INSTALLED ON BC1.
IF 3 PHASE LINE VOLTAGE MONITOR IS INSTALLED,CONNECT
PHASE MONITOR L1, L2, L3 TO THE UNIT POWER BLOCK
RESPECTIVELY. ALSO, REMOVE JUMPER WIRE CONNECTIONS
TB1 - ES TO TB1- PM .
IF FLOAT SWITCH IS INSTALLED, REMOVE JUMPER WIRE
CONNECTIONS TB1- PM TO TB1 - FSW.
IF FREEZE PROTECTION MODULE IS INSTALLED, REMOVE JUMPER
CONNECTIONS TB1- PS TO TB1 - FM1 AND TB1 - FM1 TO TB1 - FM2.
LAT ON/OFF TIME SETTINGS:
ON - TIME (LEFT COLUMN) : 2,8 = ON
OFF - TIME ( RIGHT COLUMN) : 8 = ON
ALL OTHER DIP SWITCHES OFF
1. REPLACEMENT WIRE MUST BE SAME SIZE AND TYPE OF
INSULATION AS ORIGINAL (AT LEAST 105 C). USE COPPER
CONDUCTORS ONLY.
USE N.E.C. CLASS 2 WIRE FOR ALL LOW VOLTAGE FIELD
CONNECTIONS.
IF OPTIONAL SMOKE DETECTOR IS INSTALLED, REMOVE RED
JUMPER WIRE CONNECTIONS TB1-XS TO TB1-ES.
DISCHARGE AIR TEMPERATURE SENSOR SHIPPED WITH UNIT IN
CONTROL BOX.INSTALL AND CONNECT PER THE ATTACHED
INSTRUCTIONS/W IRING DIAGRAM.
IF OPTIONAL ECONOMIZER IS INSTALLED, CONNECT ECON PLF TO
ECONOMIZER. ECONOMIZER PLUG LOCATED IN THE RETURN AIR
COMPARTMENT.
(208/230)V UNITS: IF UNIT UTILIZES 208V SUPPLY POWER, MOVE
TR1/2 HIGH VOLTAGE RED WIRE FROM THE 240V TERMINAL TO THE
208V TERMINAL 460V, 575V UNITS: RED WIRE CONNECTED TO
APPROPRIATE HIGH VOLTAGE INPUT TERMINAL ON TR1/2
IF OPTIONAL ELECTRIC HEAT IS INSTALLED, CONNECT HTR PLF2 TO
ACCESSORY HEAT PLUG IN HEAT COMPARTMENT.
1
3
TR
TRANSFORMER
TB1-T1 FM1 (FREEZE MONITOR 1)
TB1-T2 FM2 (FREEZE MONITOR 2)
TB1-T3 PM (PHASE MONITOR)
TB1-T4 FSW (FLOAT SWITCH)
TB1-T5 UNUSED
RD
1
9
BL
BL
BL
BL
BL
BL
BL
BL
6
HTR PLF2
PK
PU
YL
PU
BL/PK
YL

Related product manuals