EasyManua.ls Logo

Daikin DCC180 - Circulating Air and Filters; Condensate Drain Connection

Daikin DCC180
36 pages
Print Icon
To Next Page IconTo Next Page
To Next Page IconTo Next Page
To Previous Page IconTo Previous Page
To Previous Page IconTo Previous Page
Loading...
9
F
AILURE
OF
UNIT
DUE
TO
OPERATION
ON
IMPROPER
LINE
VOLTAGE
OR
WITH
EXCESSIVE
PHASE
UNBALANCE
CONSTITUTES
PRODUCT
ABUSE
AND
MAY
CAUSE
SEVERE
DAMAGE
TO
THE
UNIT
ELECTRICAL
COMPONENTS
.
WARNING
Areas Without Convenience Outlet
It is recommended that an independent 115V power source be
brought to the vicinity of the roof top unit for portable lights and
tools used by the service mechanic.
NOTE: Refer to local codes for requirements. These outlets can
also be factory installed.
UNITS INSTALLED ON ROOF TOPS
Main power and low voltage wiring may enter the unit through
the side or through the roof curb. Install conduit connectors at the
desired entrance locations. External connectors must be weath-
erproof. All holes in the unit base must be sealed (including those
around conduit nuts) to prevent water leakage into building. All
required conduit and fittings are to be field supplied.
Supply voltage to roof top unit must not vary by more than 10% of
the value indicated on the units data plate. Phase voltage unbal-
ance must not exceed 2%. Contact your local power company for
correction of improper voltage or phase unbalance.
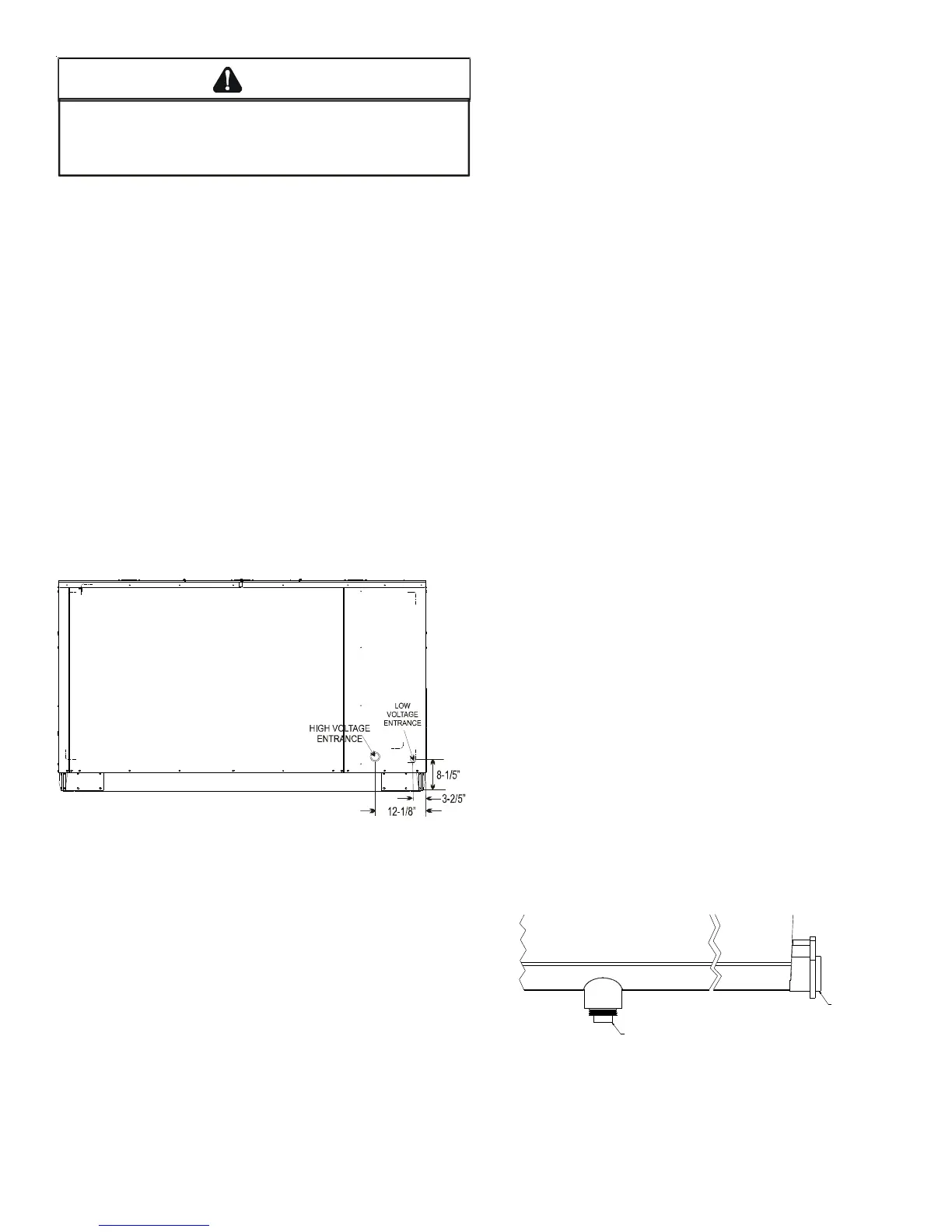
ELECTRICAL ENTRANCE LOCATIONS
Unit is equipped with Single Point Power Block and Low Voltage
Block.
LOW VOLTAGE CONTROL WIRING
1. A 24V thermostat must be installed for unit operation. It
may be purchased with the unit or field -supplied.
Thermostats may be programmable or electromechanical
as required.
2. Locate thermostat or remote sensor in the conditioned
space where it will sense average temperature. Do not
locate the device where it may be directly exposed to
supply air, sunlight or other sources of heat. Follow
installation instructions packaged with the thermostat.
3. Use #18 AWG wire for 24V control wiring runs not
exceeding 75 feet. Use #16 AWG wire for 24V control wiring
runs not exceeding 125 feet. Use #14 AWG wire for 24V
control wiring runs not exceeding 200 feet. Low voltage
wiring may be National Electrical Code (NEC) Class 2 where
permitted by local codes.
4. Route thermostat wires from sub-base terminals to the
unit. Control wiring should enter through the duct panel
(dimple marks entrance location). Connect thermostat and
any accessory wiring to low voltage terminal block TB1 in
the main control box.
NOTE: Field-supplied conduit may need to be installed depending
on unit/curb configuration. Use #18 AWG solid conductor wire
whenever connecting thermostat wires to terminals on sub-base.
DO NOT use larger than #18 AWG wire. A transition to #18 AWG
wire may be required before entering thermostat sub-base.
NOTE: Refer to unit wiring diagrams for thermostat hookups.
CIRCULATING AIR AND FILTERS
DUCTWORK
The supply duct from the unit through a wall may be installed with-
out clearance. However, minimum unit clearances must be main-
tained (see “Clearances” section). The supply duct should be pro-
vided with an access panel large enough to inspect the air cham-
ber downstream of the heat exchanger. A cover should be tightly
attached to prevent air leaks.
Ductwork dimensions are shown in the roof curb installation
manual.
If desired, supply and return duct connections to the unit may be
made with flexible connections to reduce possible unit operating
sound transmission.
CONDENSATE DRAIN CONNECTION
CONDENSATE DRAIN CONNECTION
A 3/4” female NPT drain connection is supplied on the end of the
condensate pan, with an alternative connection on the bottom of
the pan. An external trap must be installed for proper condensate
drainage
STANDARD
SIDE DRAIN
DRAIN PLUG
(FACTORY-INSTALLED)
Drain Pan (Side View)

Related product manuals