EasyManua.ls Logo

Daikin DCG090 - DCG 7½-12½ Tons (460 V;575 V, Three-Phase Belt Drive) Wiring Diagram

Daikin DCG090
44 pages
Print Icon
To Next Page IconTo Next Page
To Next Page IconTo Next Page
To Previous Page IconTo Previous Page
To Previous Page IconTo Previous Page
Loading...
  27

     
      
     
Warning
High Voltage:           

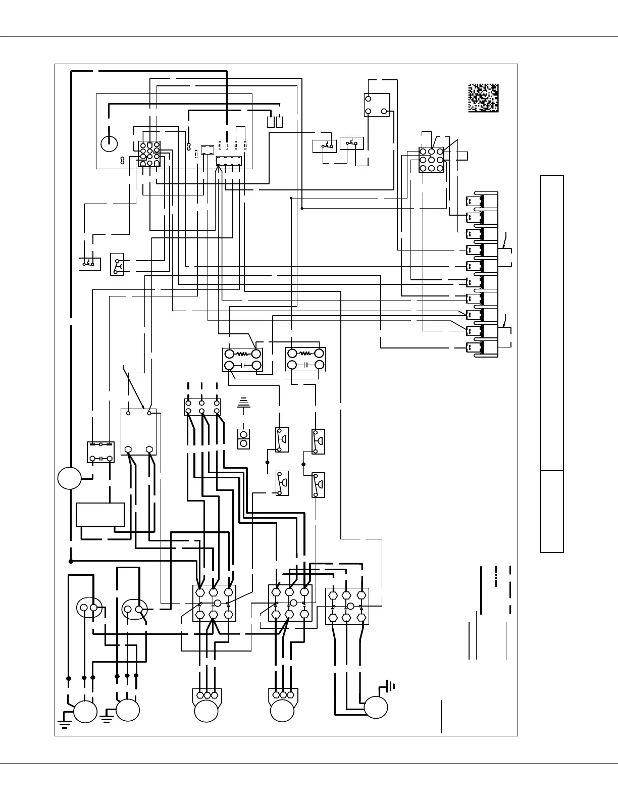
0140L03029-A
BK
CM1
FC1
F
C
CM2
PU
FC2
F
C
COMP1
T2
T3
T1
L3
T3
C
L2
L1
T2
T1
CC1
YL
RD
BK
C
TR
24V
COMP 2
T2
T3
T1
L3
T3
C
L2
L1
T2
T1
CC2
YL
RD
BK
BL
BL
OR
RD
BK
BK
EM
L3
T3
C
L2
L1
T2
T1
BC
RD
OR
RD
BK
BK
COLO
R
C
O
DE
BK --------------- BLACK
BL --------------- BLUE
BR --------------- BROWN
OR --------------- ORANGE
PU --------------- PURPLE
RD --------------- RED
WH -------------- WHITE
YL --------------- YELLOW
PK --------------- PINK
GR---------------- GREEN
GY---------------- GREY
WIRING CODE
FACT
OR
Y W
IR
ING
HIGH VOLTAGE
LOW VOLTAGE
OPTIONAL HIGH VOLTAGE
F
I
ELD W
IR
ING
HIGH VOLTAGE
S1
S2
R
C
G
W1
W2
Y1
Y2
O
3
2
1
96
8
7
4
5
PU
PK
PK
WH
GR
BL
BL
BL
WH
YL
BR
WH
WH
BL
BL
RD
BK
BK
PU
BR
BK
BR
BL
BL
GR
YL
OR
VM
PU
RD
RD
BK
OR
VMR
3
1
BL
WH
PLF
PK
PK
GV
RS
ALS
BR
PU
IIC
WH
RD
GR
O
R
SE
E
NOTE 3
L
2
U
N
U
S
E
D
C
O
O
L
H
E
A
T
D
I
F
S
L
1
4
5
6
2
3
1
ECON
1
1
8
1
2
9
7
1
0
GR
BL
PU
PU
BR
YL
YL
PU
RD
WH
BK
BK
BK
YL
YL
YL
GR
GR
LS
PS
RD
R
D
RD
FS
YL
PU
BR
IGN
RD
OR
WH
WH
BL
BL
BL
BL
BL
BL
BL
BL
WH
GR
GR
RD
RD
RD
RD
RD
YL
PK
YL
YL
YL
BR
RD
RD
WH
RD
RD
RD
GR
REPLACE JUMPER WITH
SMOKE/FIRE DETECTOR
SEE NOTE 5
SEE NOTE 2
460
OR APPROPRIATE
INPUT VOLTAGE
240
RD
SEE NOTE 6
BK
BK
BK
OR
OR
46O OR
APPROPRIATE
INPUT
VOLTAGE
RD
RD
BK
LPS1
3
22
22222
4
1
2
CCR1
3
22
22222
4
1
2
CCR 2
LPS 2
HPS 2
YL
HPS1
YL
BL
BL
PB
BK
BK
RD
OR
YL
YL
GND
OR
RD
BK
RD
OR
BL
YL
RD
BL
POWER SUPPLY
460-575/3/60
SEE NOTE 4
BL
OR
BK
RD
RD
GR
PU
YL
PU

Related product manuals