EasyManua.ls Logo

Daikin DM96SE - Page 36

Daikin DM96SE
40 pages
Print Icon
To Next Page IconTo Next Page
To Next Page IconTo Next Page
To Previous Page IconTo Previous Page
To Previous Page IconTo Previous Page
Loading...
36
W
IRING
D
IAGRAM
HIGH VOLTAGE!
Disconnect ALL power before servicing or installing this unit. Multiple
power sources may be present. Failure to do so may cause property
damage, personal injury or death.
Wiring is subject to change. Always refer to the wiring diagram on the unit for the most up-to-date wiring.
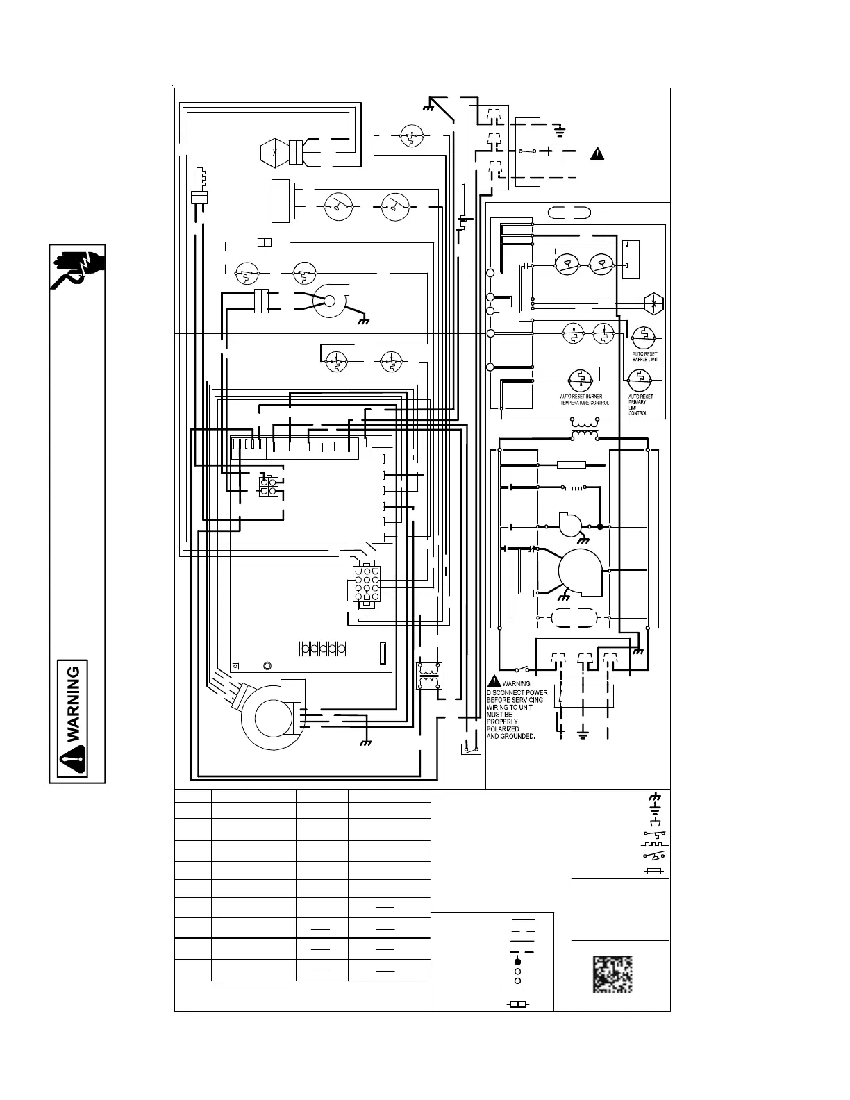
DM96SE*
PRESSURE SWITCH
GN
GRD
O
R
W
A
RNI
N
G
:
DI
S
C
O
N
N
E
C
T
N
TO
U
N
I
T
M
US
T
B
E
A
N
D
G
R
O
U
NDE
D
.
JUNCTION BOX
R
D
L
S
E
R
V
I
CI
N
G
.W
I
R
I
N
G
Ø
/
6
0
H
Z
D
I
S
C
O
N
N
E
C
T
O
V
E
R
C
U
RR
E
NT
G
N
D
W
H
1
1
5
V
A
C
/
1
B
K
P
O
W
E
R
B
E
F
O
R
E
T
O
P
O
W
E
R
SU
P
P
L
Y
WI
T
H
P
R
O
T
E
CT
I
O
N
D
E
V
I
C
E
P
R
O
P
E
R
L
Y
P
O
L
A
R
I
Z
E
D
OU
T
PU
T
NO
2
4
V
A
C
PO
W
E
R
TO
C
O
N
TR
O
L
ST
A
N
D
B
Y
N
O
R
M
A
L
O
PER
A
T
I
O
N
N
O
T
H
E
R
M
O
S
T
A
T
R
E
Q
U
ES
T
S
O
E
M
T
E
S
T
M
O
D
E
C
O
N
T
R
O
L
F
A
U
L
T
D
E
T
E
C
T
E
D
HAR
D
L
O
C
K
OU
T
ST
E
A
DY O
N
C
O
N
T
I
N
U
O
U
S
FA
N
O
P
E
R
A
T
I
O
N
C
AL
L
F
O
R
C
O
OL
I
N
G
C
A
L
L
F
OR
H
E
A
T
I
NG
C
O
N
T
R
O
L
F
U
S
E
O
PEN
I
D
P
L
U
G
F
A
I
L
U
R
E
L
O
W
F
L
A
M
E
S
ENSE
G
A
S
V
A
L
V
E
C
I
R
C
U
I
T
S
H
O
R
T
E
D
FLAM
E
P
R
E
S
E
N
T
W
I
T
H
G
A
S
V
A
L
VE
O
F
F
H
I
G
H
L
I
M
I
T
S
W
I
T
C
H
O
PEN
P
S
NU
L
L
E
R
R
O
R:
I
N
CON
S
I
S
T
E
N
T
R
E
A
D
I
N
G
W
I
T
H
I
N
DUC
E
R
O
F
F
PS
N
U
L
L
E
RR
O
R
:
I
N
C
O
N
SISTE
N
T
R
E
A
D
IN
G
W
I
T
H
I
N
D
U
C
E
R
ON
S
Y
ST
E
M
L
O
C
K
O
U
T
-
R
E
T
R
I
E
S
E
X
C
EED
E
D
7
F
L
ASH
E
S
5
F
L
A
S
H
E
S
4
F
L
A
S
H
E
S
3
F
L
A
S
H
E
S
2
F
L
A
SH
E
S
1
F
L
A
SH
C
L
E
A
R
E
R
R
O
R
H
I
S
T
ORY
F
I
E
L
D
T
E
S
T
M
O
D
E
R
E
V
E
R
S
E
D
L
I
N
E
V
O
L
T
A
G
E
P
O
L
A
R
I
T
Y
R
A
P
I
D
F
L
A
S
H
O
F
F
NO
L
E
D
A
C
T
I
V
I
T
Y
L
E
D
A
C
TI
V
I
T
Y
A
M
B
E
R
G
R
E
EN
R
E
D
°
C.
U
SE C
O
P
P
E
R
C
O
N
D
U
C
T
O
R
SO
N
L
Y
.
S
W
I
T
C
H
(
TE
M
P
.
)
F
I
ELD
S
P
L
I
C
E
P
L
U
G
C
O
N
N
E
C
T
I
O
N
P
K
P
I
N
K
5
.
U
N
I
T
M
U
S
T
B
E
P
E
R
M
A
N
E
N
T
LY
G
R
O
U
NDED
A
N
D
C
O
N
F
O
R
M
T
O
N
.
E
.
C
.
A
N
D
L
O
C
A
L
C
O
D
E
S
.
S
W
I
T
C
H(
P
R
E
S
S
.
)
T
E
R
MI
N
A
L
H
A
V
I
N
G
A
TE
M
P
E
R
A
T
U
R
ER
A
T
I
N
G
O
F
A
TLE
A
S
T
1
0
5
3
.
I
F
A
N
Y
O
F
T
H
E
O
R
I
G
I
N
A
L
W
I
R
E
A
SSU
P
P
L
I
E
D
W
I
T
H
T
H
E
F
U
R
N
C
E
M
U
S
T
B
E
R
E
P
L
A
C
E
D
,
I
T
M
U
S
T
B
E
R
EP
L
A
C
E
D
W
I
T
H
W
I
R
I
N
GM
A
T
E
R
I
A
L
4
.
B
L
O
W
E
RS
P
E
E
D
S
S
H
O
U
L
D
B
E
A
D
J
U
S
T
E
D
B
Y
I
N
S
T
A
L
L
E
R
T
O
M
A
T
C
H
T
H
E
I
N
S
T
A
L
L
A
T
I
O
N
RE
Q
U
I
R
E
M
E
N
T
S
S
O
A
S
T
O
P
R
O
V
I
D
E
T
H
E
C
ORRECT
H
E
A
T
I
NG
T
E
M
P
R
A
T
U
R
E
R
I
S
E
A
N
D
T
H
E
C
O
R
RE
C
T
C
O
O
L
I
N
G
C
F
M
.
I
G
N
I
T
E
R
P
R
O
T
.
D
E
V
I
C
E
O
V
E
R
C
U
R
R
E
N
T
F
I
EL
D
G
N
D
E
Q
U
I
P
M
EN
T
G
N
D
J
U
N
C
T
I
O
N
I
N
T
E
G
R
A
T
ED C
O
N
T
R
O
L
I
N
TER
N
A
L
T
O
0
1
4
0
F
0
2
0
6
9
-
C
2
.
M
A
N
U
F
A
C
T
U
R
'
S
SP
E
C
I
F
I
E
D
R
E
P
L
A
C
E
M
E
N
T
P
A
R
T
S
M
U
S
T
B
E
U
S
ED
W
H
E
N
S
E
R
V
I
C
I
N
G
.
1
.
S
E
T
H
E
A
T
A
N
T
I
C
I
P
A
T
O
R
O
NR
O
O
M
TH
E
R
M
O
ST
A
T
A
T
0
.
7
A
M
P
S
.
N
O
T
E
S
:
H
I
V
OL
T
A
G
E
F
I
E
L
D
H
I
V
O
L
T
A
G
E
(
115V
)
LO
W
V
O
L
T
A
G
E
F
I
E
LD
L
O
W
VOLT
A
GE
(
2
4
V
)
C
O
L
O
R
C
O
D
E
S:
R
D
R
E
D
G
Y
G
R
A
Y
BL B
L
U
E
W
H
W
H
I
T
E
B
R
B
R
O
W
N
B
K
B
L
A
C
K
G
N
G
R
EE
N
PU
P
U
R
P
L
E
O
R
O
R
A
N
G
E
Y
L
Y
E
L
L
O
W
W
H
SENSOR
YL
FLAME
GN
R
D
Y
W
R
GC
N
.
E
.C
.
C
LA
S
S
2WI
R
E
B
K
DI
A
G
N
O
S
T
I
C
L
E
D
'
S
BR
GN
BK
PK
W
H
B
K
W
H
WH
L
IM
I
T
C
O
N
T
R
O
L
A
U
X
I
L
IARY
AU
T
O
R
E
S
E
T
G
Y
3
1
P
R
E
S
S
U
R
E
S
W
I
TC
H
I
DB
L
O
WE
R
B
L
RD
W
H
B
R
WH
L
I
MIT
C
O
N
T
R
O
L
A
U
T
O
R
E
S
E
TP
R
I
MAR
Y
W
H
1
W
H
P
U
B
K
P
RE
S
S
U
R
E
TR
A
NS
D
U
CE
R
P
K
P
U
2
4
B
K
G
N
D
1
B
LO
W
E
R
CI
R
C
U
L
A
T
O
R
B
K
G
A
S
V
A
L
V
E
C
O
N
NEC
T
O
R
2
C
I
R
C
U
I
T
Y
L
I
G
N
I
T
E
R
S
U
R
F
A
C
E
H
O
T
2
R
D
2
B
L
O
WE
R
D
R
A
F
T
I
N
D
U
C
E
D
M
1
B
L
O
W
E
R
C
O
M
P
A
R
T
M
E
N
T
HA
R
N
E
S
S
E
C
M
M
T
R
C
2
R
D
B
UR
N
E
R
C
O
M
P
A
R
T
M
E
N
T
G
N
D
FUSE
3 A24 V
PA R K
PAR K
COM
COOL
HEAT
GND
RD
9
8
12
1
11
7
4
10
K
BL
R
G
Y
GY
LINE MOTOR XFMR HUM EAC FLAME
T22
T2
T1
T11
NEUTRAL
T9
T19
WH
40 VA
115
VAC
24
VAC
OR
TR
A
NSFORMER
B
L
O
W
E
R
RD
C
O
M
P
A
R
T
M
E
N
T
D
O
O
R
SW
I
T
C
H
(
OPE
N
WH
E
N
D
O
O
R
O
P
E
N
)
B
K
B
K
6 FLASHES
AUXILIARY LIMIT OPEN
G
N
6
3
5
2
2
3
4
1
BK
A
UTO REST BU RNER
TEMPERATURE CONTROL
OR
G
N
B
L
R
D
3
1
2
RD
GN
BK
B
K
4
O
R
T10
T12
T4
T21
T3
BK
OR
RD
BL
BK
YL
RD
BK
WH
T20
T13
T8
T5
T7
T14
FA N
T23
G
ND
IDB(2)
HSI(1)
EAC-H
CLEANER
AIR
ELECTRONIC
FRONT COVER
PRESSURE
SWITCH
LINE NEUTRALS
Ø
/
6
0H
Z
P
O
WER
S
U
PP
L
Y
W
I
TH
T
O
11
5
V
A
C
/1
C2
GAS
VAL VE
M1
MV(12)
HUMIDIFIER
R
Y
G
C
TO
MICRO
TR (11)
GND (8)
MVC (9)
RO2 (6)
RO1 (5)
GND
24 VAC
40 VA
TRANSFORMER
115 VAC
FLAME SENSOR
ID
BLWR
CIRCULATOR
BLWR
HOT SURFACE
IGNITER
C
O
O
L
H
E
A
T
-
H
FS
SWITCH
DOOR
O
V
E
R
C
U
R
R
E
N
T
P
R
O
T
E
C
T
I
O
N
D
E
V
I
C
E
N
L
D
ISCONNECT
G
N
D
INTEGRATED CONTROL MODULE
FMR-H
LINE-H
JUNCTION BOX
INTEGRATED
CONTRO
L
MODULE
TH (10 )
G
N
5
B
R
BR
C
N
O
P
K
C
N
O
C
N
O
ID BLOWER
PRESSURE
SWITCH
PRESSURE
TRANSDUCER
PT (3)
PT (1)
PT (2)
+
-
O
A
UTO RESET
A
UXILIARY LIMIT
CONTROLS
HLI (7)
HLO (4)
W
P
K
P
U
AUTO RESET
BAFFLE LIMIT
2
1
2
1
3
C
N
O
G
Y

Table of Contents

Related product manuals