EasyManua.ls Logo

Daikin DM96VC - Ropane as Anks and Iping

Daikin DM96VC
56 pages
Print Icon
To Next Page IconTo Next Page
To Next Page IconTo Next Page
To Previous Page IconTo Previous Page
To Previous Page IconTo Previous Page
Loading...
29
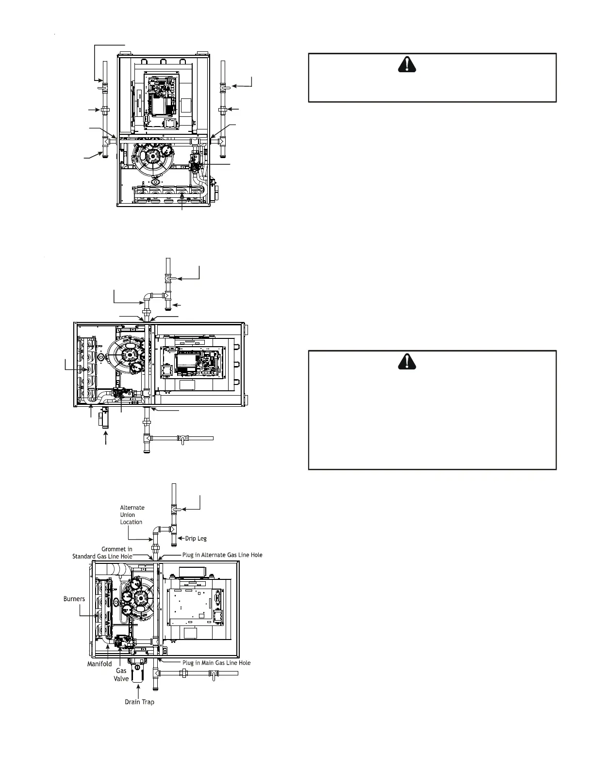
Alternate
Gas Line
Location
Plug in
Alternate
Gas Line
Hole
Gas Valve
Burners
Manual Shut Off Valve
(upstream from ground joint pipe union)
Drip Leg
Grommet
in Standard
Gas Line
Hole
*Ground
Joint
Pipe Union
*Ground
Joint
Pipe Union
*NOTE: Union may be inside furnace cabinet where allowed by local codes.
COUNTERFLOW - Figure 38
Drip Leg
Plug in Main Gas Line Hole
Alternate
Union
Location
Manual Shut Off Valve
(upstream from
ground joint pipe union)
Gas
Valve
Burners
Drain Trap
Manifold
Plug in Alternate Gas Line Hole
Grommet in
Standard Gas Line Hole
UPFLOW - HORIZONTAL LEFT - Figure 39
Manual Shut Off Valve
(upstream from
ground joint
pipe union)
COUNTERFLOW - HORIZONTAL RIGHT - Figure 40
GAS PIPING CHECKS
T
O
AVOID
THE
POSSIBILITY
OF
EXPLOSION
OR
FIRE
,
NEVER
USE
A
MATCH
OR
OPEN
FLAME
TO
TEST
FOR
LEAKS
.
WARNING
Before placing unit in operation, leak test the unit and gas
connections.
Check for leaks using an approved chloride-free soap and
water solution, an electronic combustible gas detector, or
other approved testing methods.
NOTE: Never exceed specified pressures for testing.
Higher pressure may damage the gas valve and cause
subsequent overfiring, resulting in heat exchanger
failure.
Disconnect this unit and shutoff valve from the gas supply
piping system before pressure testing the supply piping
system with pressures in excess of 1/2 psig (3.48 kPa).
Isolate this unit from the gas supply piping system by closing
its external manual gas shutoff valve before pressure testing
supply piping system with test pressures equal to or less
than 1/2 psig (3.48 kPA).
PROPANE GAS TANKS AND PIPING
I
F
THE
GAS
FURNACE
IS
INSTALLED
IN
A
BASEMENT
,
AN
EXCAVATED
AREA
OR
CONFINED
SPACE
,
IT
IS
STRONGLY
RECOMMENDED
TO
CONTACT
A
PROPANE
SUPPLIER
TO
INSTALL
A
GAS
DETECTING
WARNING
DEVICE
IN
CASE
OF
A
GAS
LEAK
.
S
INCE
PROPANE
GAS
IS
HEAVIER
THAN
AIR
,
ANY
LEAKING
GAS
CAN
SETTLE
IN
ANY
LOW
AREAS
OR
CONFINED
SPACES
.
P
ROPANE
GAS
ODORANT
MAY
FADE
,
MAKING
THE
GAS
UNDETECTABLE
EXCEPT
WITH
A
WARNING
DEVICE
.
WARNING
A gas detecting warning system is the only reliable way to
detect a propane gas leak. Rust can reduce the level of
odorant in propane gas. Do not rely on your sense of smell.
Contact a local propane gas supplier about installing a gas
detecting warning system. If the presence of gas is
suspected, follow the instructions listed in the Safety
Considerations section of this manual.
All propane gas equipment must conform to the safety
standards of the National Board of Fire Underwriters, NBFU
Manual 58.
CANADA: National Standard of Canada, Natural Gas and
Propane Installation Code (NSCNGPIC) CAN/CSA B149.1-15
For satisfactory operation, propane gas pressure must be
10” WC at the furnace manifold with all gas appliances in
operation. Maintaining proper gas pressure depends on three
main factors:
1. Vaporization rate, depending on temperature of the
liquid, and “wetted surface” area of the container or
containers.

Table of Contents

Related product manuals