EasyManua.ls Logo

Daikin DPS020 - Convenience Receptacle (Field Powered); Convenience Receptacle (Unit Powered)

Daikin DPS020
122 pages
Print Icon
To Next Page IconTo Next Page
To Next Page IconTo Next Page
To Previous Page IconTo Previous Page
To Previous Page IconTo Previous Page
Loading...
Convenience Receptacle (Field Powered)
A Ground Fault Circuit Interrupter (GFCI) convenience
receptacle is provided in the main control box on all units. To
use this receptacle, connect a separate eld-supplied 115 V
power wiring circuit to the outlet.
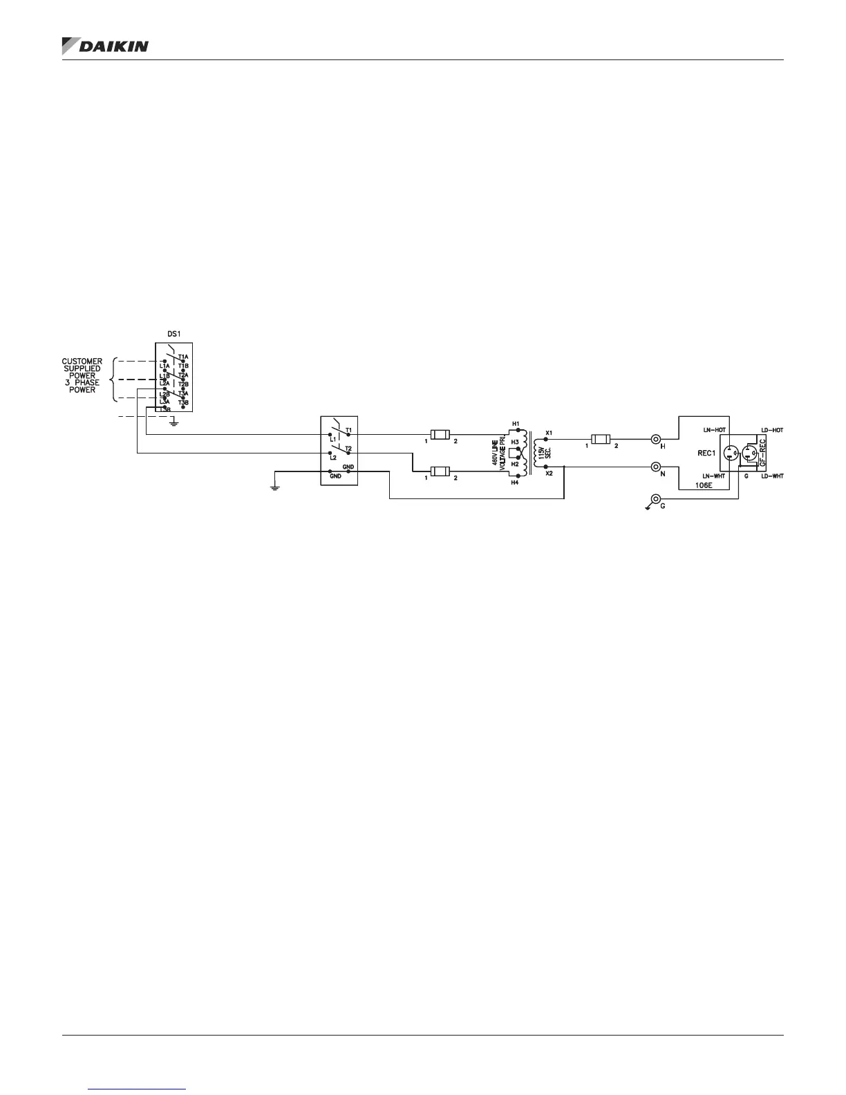
Figure 71: Unit Powered GFCI Receptacle Schematic
Convenience Receptacle (Unit Powered)
A Ground Fault Circuit Interrupter (GFCI) convenience
receptacle is provided in the main control box on all units. The
receptacle shall be powered by a factory installed and wired
120V, 20 amp power supply. The power supply shall be wired
to the line side of the unit’s main disconnect, so the receptacle
is powered when the main unit disconnect is off. This option
shall include a GFI receptacle, transformer, and a branch
circuit disconnect. The electrical circuit shall be complete with
primary and secondary overload protection. See Figure 71 for
a branch circuit diagram.
460V LINE
VOLTAGE PRI.
unIT opTIons
www.DaikinApplied.com 77 IM 1125-7 • REBEL ROOFTOPS

Table of Contents

Related product manuals