EasyManua.ls Logo

Daikin DZ17VSA361AA - Diagramme de Câblage

Daikin DZ17VSA361AA
188 pages
Print Icon
To Next Page IconTo Next Page
To Next Page IconTo Next Page
To Previous Page IconTo Previous Page
To Previous Page IconTo Previous Page
Loading...
2020
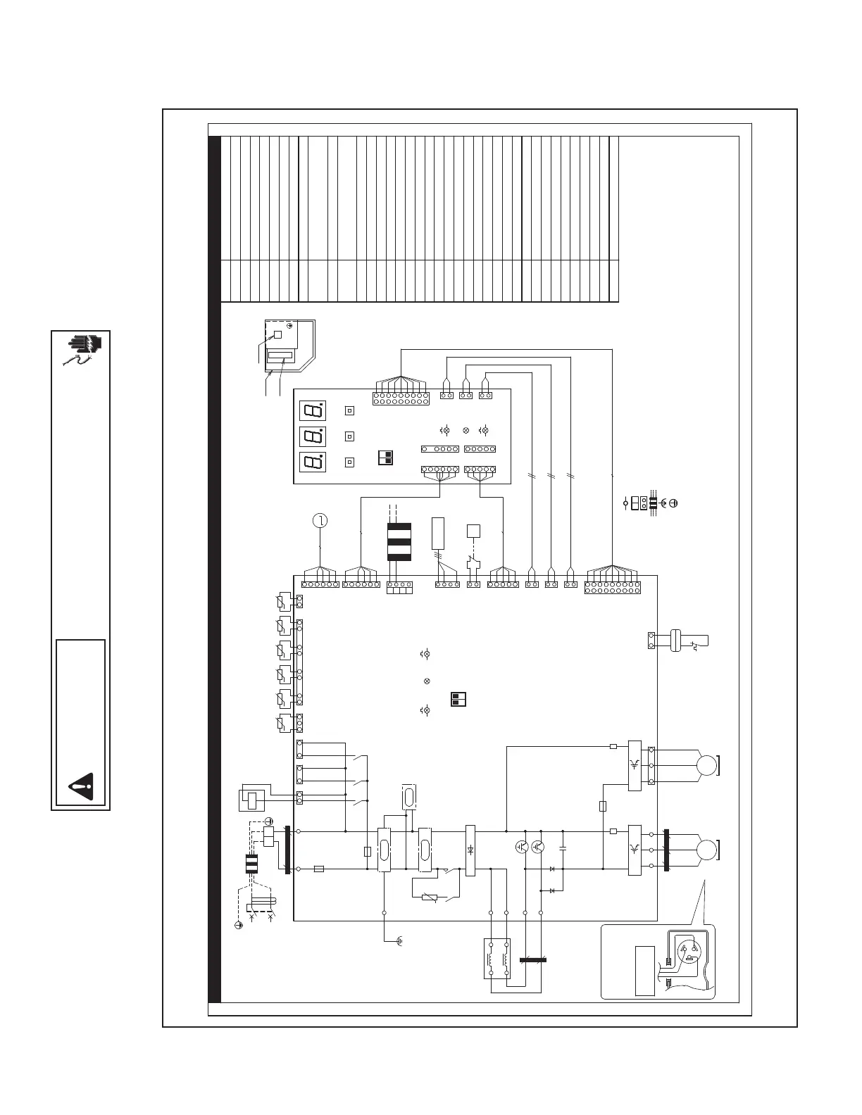
dIagramme de câBlage
DZ17VSA181・241・301・361AA
3D122352-1A
R3T
R5T
R6T
SEG1~SEG3
S1NPH/L
V1D,V2D
V1T,V2T
V1R,V3R
V2R
X1M
X52A
Z1C~Z3C
Z1F,Z2F
R4T
Y1E
A1P
BS1~BS3
C1
DS1,DS2
F1U
F2U
F6U
K11M
K2R,K4R
K5R,K10R
L1R
M1C
M1F
PS
R2,R3
R1T
R2T
A2P
H1P,H1P-M
HAP,HAP-M
H2P,H2P-M
Q1E
Y1S
X41A
R7T
S1PH
CARTE DE CIRCUIT IMPRIMÉ
INTERRUPTEUR À BOUTON POUSSOIR (A2P)
CONDENSATEUR
INTERRUPTEUR DIP
FUSIBLE
FUSIBLE
FUSIBLE
LAMPE PILOTE (MONITEUR DE SERVICE-ROUGE)
CARTE DE CIRCUIT IMPRIMÉ (SERVICE)
CONTACTEUR MAGNÉTIQUE
RELAIS MAGNÉTIQUE
CONDITIONNEUR DE PUISSANCE
MOTEUR (COMPRESSEUR)
MOTEUR (VENTILATEUR)
ALIMENTATION DE COMMUTATION
RÉSISTANCE
THERMISTANCE (AMBIANTE)
AFFICHAGE À 7 SEGMENTS (A2P)
THERMISTANCE PTC
CAPTEUR DE PRESSION (ÉLEVÉE/BASSE)
COMMUTATEUR DE PRESSION (ÉLEVÉE)
DIODE
IGBT
MODULE DE PUISSANCE IGBT
PONT DE DIODE
BORNIER
MONITEUR RAM
CONNECTEUR (DONNÉES PARTAGÉES)
NOYAU DE FERRITE
BOBINE DE VANNE D’INVERSION
FILTRE À BRUIT
LAMPE CLIGNOTANTE
(MONITEUR DE SERVICE-VERT)
THERMISTANCE (DÉCHARGE)
THERMISTANCE (LIQUIDE)
THERMISTANCE (CIRCUIT BOBINE)
THERMISTANCE (SUCCION)
PROTECTEUR CONTRE SURCHARGE
THERMISTANCE (DÉGIVRAGE)
BOBINE DE VANNE D’EXPANSION ÉLECTRONIQUE
POSITION D’ASSEMBLAGE DU COMPOSANT
ÉLECTRONIQUE DES ÉLÉMENTS.
3.
LES SYMBOLES MONTRENT CE QUI SUIT BLK: NOIR RED: ROUGE
WHT: BLANC YLW: JAUNE GRN: VERT BRN: BRUN PPL: VIOLET
4. UTILISEZ DES CONDUCTEURS DE CUIVRE SEULEMENT.
5. FIL DE CLASSE 2.
6. CE CONNECTEUR EST POUR CONNECTER
AU CHAUFFAGE DU CARTER DU COMPRESSEUR
(ACCESSOIRES OPTIONNELS).
7. CE CONNECTEUR EST POUR CONNECTER
AU CHAUFFAGE À PLATEAU DE DÉGIVRAGE
(ACCESSOIRES OPTIONNELS).
8. LORS DU FONCTIONNEMENT, NE PAS COURT-CIRCUITER
POUR L’APPAREIL DE PROTECTION (S1PH ET Q1E).
REMARQUE
1. :BORNE
:BORNIER
:CONNECTEUR
:CÂBLAGE SUR SITE
:
MISE À LA TERRE SANS BRUIT
:
MISE À LA TERRE DE PROTECTION
2.
LES POSITIONS DES COMMUTATEURS
DE SÉLECTION (DS1, DS2)
INDIQUENT LES RÉGLAGES PAR DÉFAUT.
RÉFÉREZ-VOUS AU MANUEL
D’ENTRETIEN POUR LES DÉTAILS.
DIAGRAMME DE CÂBLAGE
ALIMENTATION
REMARQUE 6.
REMARQUE 7.
LA POSITION DU
TERMINAL DU
COMPRESSEUR
L’ENTRÉE DU
FIL
UNITÉ INTÉRIEURE OU
THERMOSTAT
REMARQUE 5.
REMARQUE 2.
REMARQUE 8.
MARCHE
ARRÊT
REMARQUE 2.
ARRÊT
MARCHE
REMARQUE 8.
1
208/230V
60Hz
L2
L1
Z2C
A1P
BLK
X1M
L2L1
RED
N=4
L1 L2
F1U
GRN
E1
Z1F
Z2F
PS
K10R K11M
M1C
VU W
BLK RED YLW
Z1C
N=5
V1R
VU W
MS
3~
C1
R2
L1R
WHT
BRN
PPL
RED
HR1
HR3
HR4
HR2
V2D
V1D
V1T
V2T
Z3C
N=6
S1PH
P>
M1F
V3R
MS
3~
R3
F6U
V2R
R1T
X11A
HAP-M
H1P-M
H2P-M
X17A
X32A
X108A
X52A-M
X851A
R6T
X13A
C
R
1
2
X12A
R2T R3T R5T
X73A-M
X71A-M
X72A-M
X41A-S
X41A
X72A
X71A
X73A
H2P
H1P
HAP
DS2
1 2
X5A-A
X52A-S
X52A
A2P
SEG3SEG2SEG1
BS3BS2BS1
X5A
X41A-M
DS1
1 2
R7T
+t°
F2U
5
5
18
A2P
A1P
X1M
U
W
V
S1NPH/L
BLK
GRY
Q1E
X33A
R4T
5
Y1E
X21A
X25A
K5RK4R
X28A
K2R
X29A
Y1S
AVERTISSEMENT
HAUTE TENSION!
DÉCONNECTEZ TOUTE ALIMENTATION AVANT D’ENTRETENIR OU
D’INSTALLER CETTE UNITÉ. DE MULTIPLES SOURCES D’ALIMENTATION
PEUVENT ÊTRE PRÉSENTES. NE PAS LE FAIRE PEUT PROVOQUER
DES DOMMAGES AUX BIENS, DES BLESSURES PERSONNELLES OU
LE DÉCÈS.
Le câblage est sujet à changement. Toujours vous référer au diagramme de câblage sur l’unité pour le lage le plus à jour.
1,5 - 3,0 tonnes: 3D122352-1A

Table of Contents

Related product manuals