EasyManua.ls Logo

Daikin EBLA14DA3V3 - Page 322

Daikin EBLA14DA3V3
360 pages
Print Icon
To Next Page IconTo Next Page
To Next Page IconTo Next Page
To Previous Page IconTo Previous Page
To Previous Page IconTo Previous Page
Loading...
6 | Technical data
Service manual
322
EBLA09~16DA + EDLA09~16DA
Daikin Altherma 3 M
ESIE20-06A – 2021.03
Single phase outdoor unit – compressor module
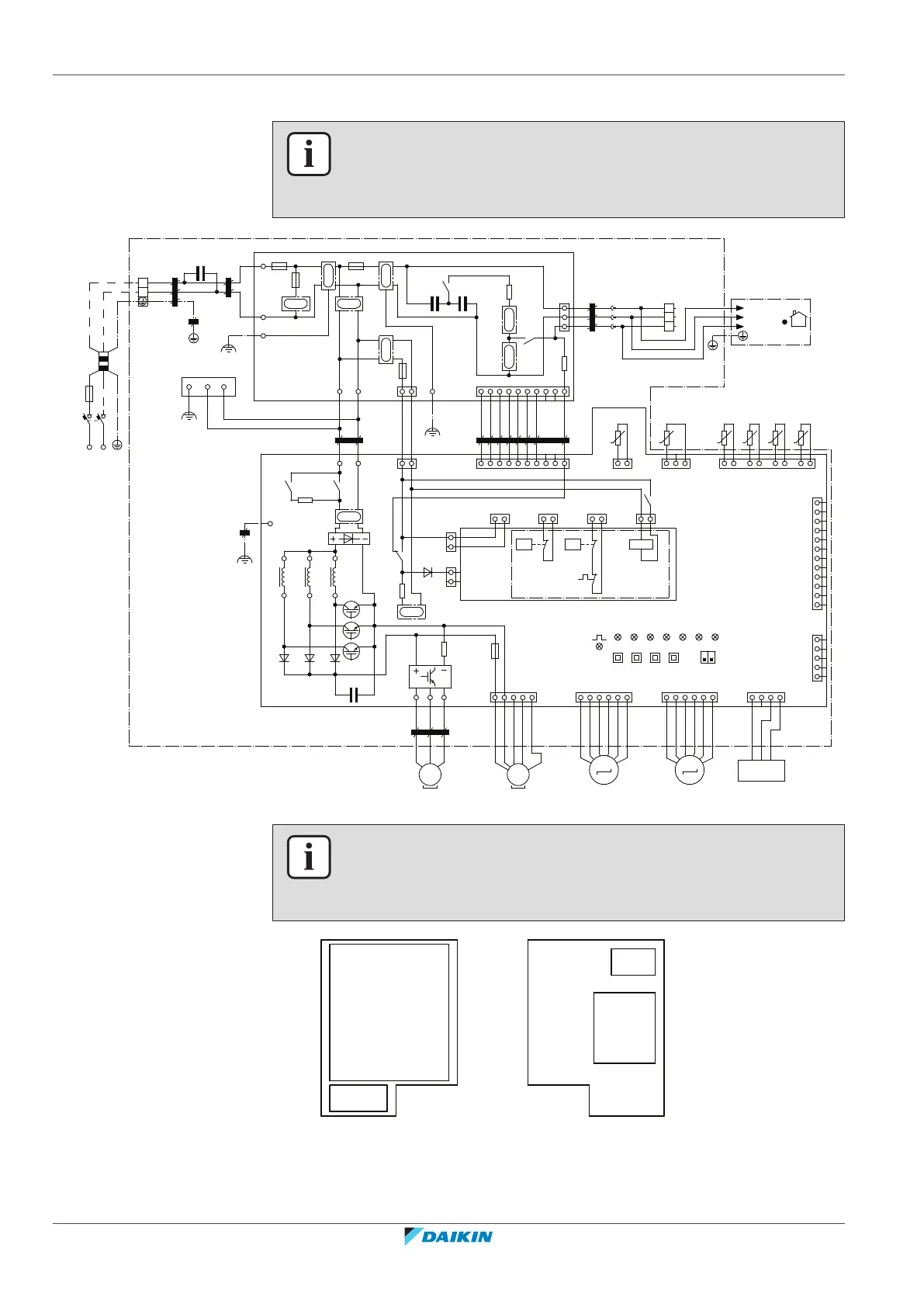
INFORMATION
The diagrams shown in this manual may be incorrect due to changes/updates to the
unit. Correct diagrams are supplied with the unit and can also be found in the
technical data book.
4D124072A
Z2C
N=2
GRN
GRN
RED
BLU
Z3C
N=2
Z5C
N=1
BLK
WHT
RED
U V W
Z4C
N=5
RED
WHT
BLK
HAP
S1NPH
SEE NOTE 3
H1P H2P H3P H4P H5P H6P H7P
SEE NOTE 2 SEE NOTE 2
SEE NOTE 3
GRN
1N~, 50 Hz
220 - 240 V AC
Z1C
N=2
Z7C
N=1
GRN/YLW
RED
BLU
Hydro
GRN
Z10C
N=4
A1P
Z6C
N=3
RED
WHT
BLK
SEE NOTE 2
1
X1M
2
3
L1R
A2P
LB NB
F4U
Z3F
F3U
Z4F
E2
3
X98A
1
E3
C2
+
C3
+
K15R
X803A
1
3
5
TCRC
10
3 4 5
X802A
1 7 8 96
LC NC
V2R
WVU
M1C
MS
3~
V1R
M1F
MS
3~
1
X106A
2
3 4 5
X111A
1
2
X11A
1
2 2
X12A
1
3 4 5 6 7 8
1
X22A
2 3 4 5 6
Y1S
S1PL
P<
1
X31A
2
1
X25A
2
K1R
Y3E
Injection
M
1
X21A
2 3 4 5 6
Y1E
Main
M
1
X17A
2 3 4
DS1
1
OFF
ON
2
BS1 BS2 BS3 BS4
F6U
R11T
- t°
R1T
- t°
R2T
- t°
R3T
- t°
R4T
- t°
R5T
- t°
S1PH
P>
1
X32A
2
X6A
1
2
3
4
5
6
7
8
9
10
11
12
X41A
1
2
3
4
5
K11M
K10R
R1
Z6F
L2R L3R
V1D V2D V3D
V3T
V2T
V1T
C1
+
E11
A3P
L1 N
1
X99A
3
PS
R5
V4D
K13R
2
1
X801A
2 3 4 5 6 7 8 9
10
X804A
1
2
1
X806A
2
R2
R4
K14R
Z2F
R3
LA
NA
PE
Q1DI
X1M
L
N
C4
+
Z1F
F2U
F1U
Z5F
1
X7YA
X7Y
2
3
X805A
1
2
Q1
E1
OUTDOOR
3
A1P/X19A.1
A1P/X19A.3
A1P/X19A.5
L N
INFORMATION
The diagrams shown in this manual may be incorrect due to changes/updates to the
unit. Correct diagrams are supplied with the unit and can also be found in the
technical data book.
4D124072B
Rear
X1M
Front
A1P
A3P
A2P

Table of Contents