EasyManua.ls Logo

Daikin ERGA06EAV3A - Page 100

Daikin ERGA06EAV3A
300 pages
Print Icon
To Next Page IconTo Next Page
To Next Page IconTo Next Page
To Previous Page IconTo Previous Page
To Previous Page IconTo Previous Page
Loading...
8 | Piping installation
Installer reference guide
100
ERGA04~08EA + EHVH04+08SU18+23EA
Daikin Altherma 3 R F
4P629090-1A – 2021.11
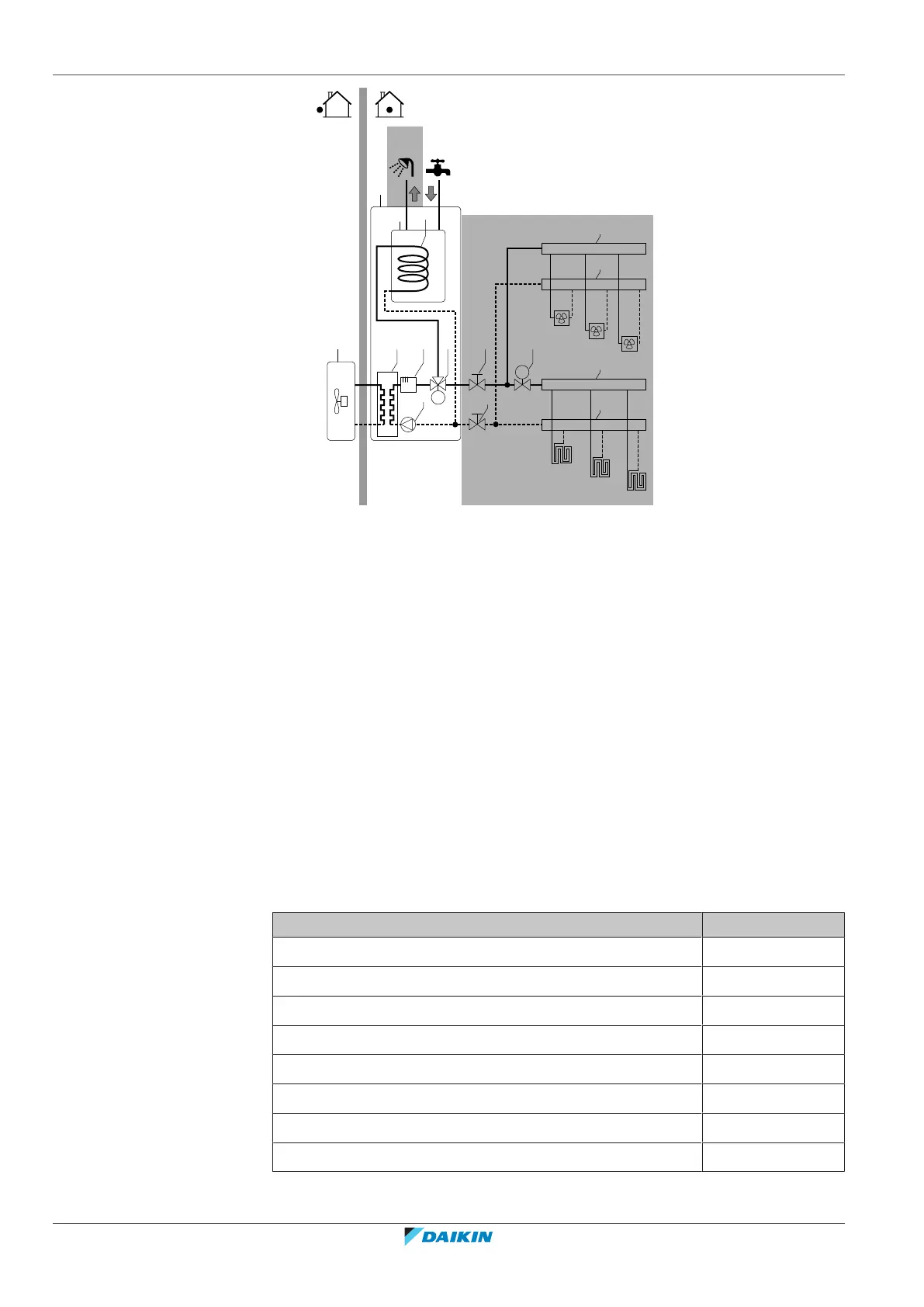
M
M
FCU1
FCU2
FCU3
FHL1
FHL2
FHL3
a
b
c d
e f
g f h
i
i
i
i
j k
89°C
75°C
a Outdoor unit
b Indoor unit
c Heat exchanger
d Backup heater
e Pump
f Stop valve
g Motorised 3-way valve
h Motorised 2-way valve (field supply)
i Collector
j Domestic hot water tank
k Heat exchanger coil
FCU1...3 Fan coil unit (optional) (field supply)
FHL1...3 Floor heating loop (field supply)
T Room thermostat (optional) (field supply)
Drainage – Low points. Provide drain taps at all low points of the system in order
to allow complete drainage of the water circuit.
Drainage DHW pressure relief valves. Provide a proper drain for the pressure
relief valves (of both the domestic hot water tank and the domestic hot water
tank kit) to avoid water spillage around the unit. For the discharge piping
connected to these valves, respect the requirements from the table below. For
more information, see "8.6.4 To connect the water piping for domestic hot
water"[4108].
Item Requirement
Pressure relief valve diameter 15mm
Discharge pipe diameter (to pressure relief valve) 15mm
Discharge piping diameter (from tundish) 22mm
Discharge piping material (from tundish) Metal
Vertical length below tundish, before first elbow or bend ≥300mm
Continuous fall after first elbow or bend ≥1:200
Maximum resistance
(a)
≤9m
Resistance created by each elbow or bend 0.8m

Table of Contents