EasyManua.ls Logo

Daikin FCAG35BVEB - Page 31

Daikin FCAG35BVEB
84 pages
Print Icon
To Next Page IconTo Next Page
To Next Page IconTo Next Page
To Previous Page IconTo Previous Page
To Previous Page IconTo Previous Page
Loading...
6 | Installation
Installer and user reference guide
31
FCAG35~140BVEB
Split system air conditioners
4P561448-1B – 2021.07
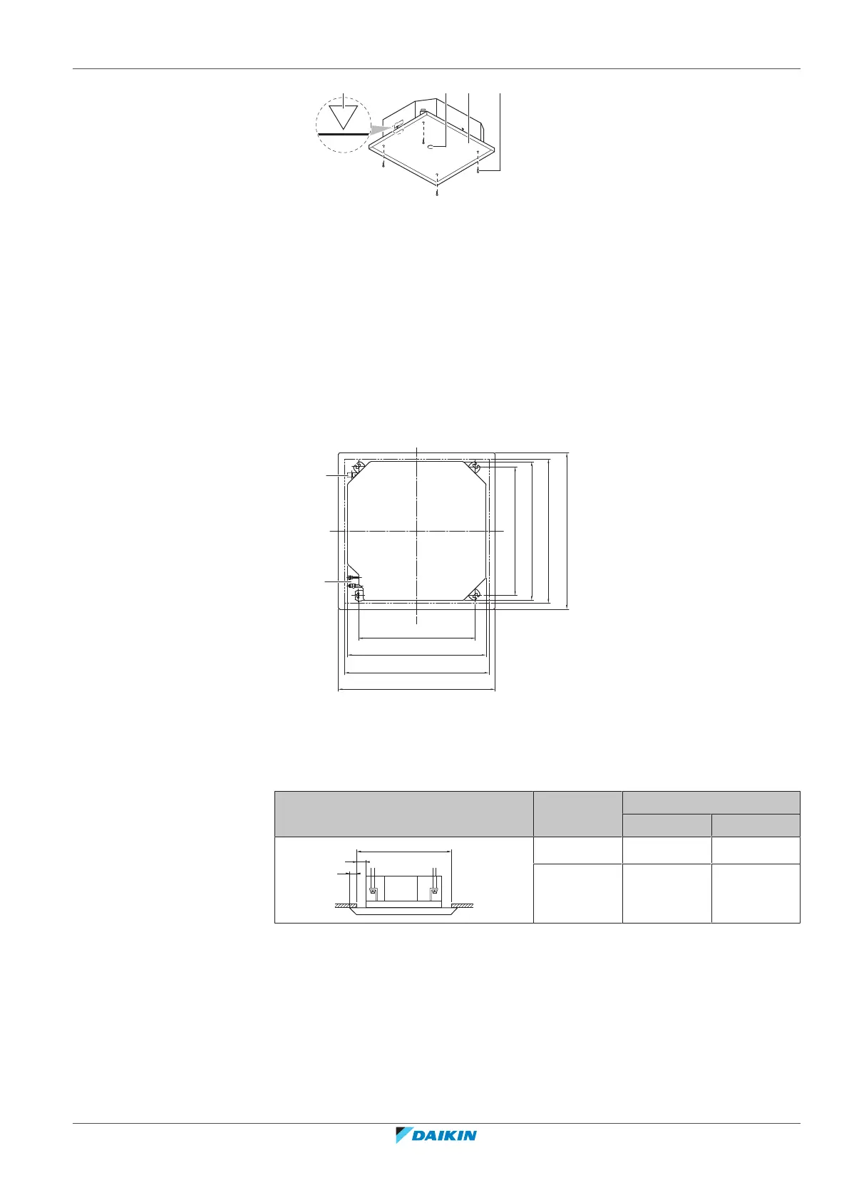
a cb d
a Centre of the unit
b Centre of the ceiling opening
c Paper pattern for installation (upper part of the packing)
d Screws (accessories)
Ceiling opening and unit:
- Make sure the ceiling opening is within the following limits:
Minimum: 860mm to be able to fit the unit.
Maximum: 910mm to ensure enough overlap between the decoration panel
and the suspended ceiling. If the ceiling opening is larger, add extra ceiling
material.
- Make sure the unit and its hanger brackets (suspension) are centered within
the ceiling opening.
(mm)
710
840
860~910
950
c
d
e
f
780
840
860~910
950
c
d
e
f
a
b
a Drain piping
b Refrigerant piping
c Hanger bracket pitch (suspension)
d Unit
e Ceiling opening
f Decoration panel
Example If A
(a)
Then
B
(a)
C
(a)
A
C
B
860mm 10mm 45mm
910mm 35mm 20mm
(a)
A: Ceiling opening
B: Distance between the unit and the ceiling opening
C: Overlap between the decoration panel and the suspended ceiling
Installation guide. Use the installation guide to determine the correct vertical
position.

Table of Contents

Other manuals for Daikin FCAG35BVEB

Related product manuals