EasyManua.ls Logo

Daikin FCRN60EXV1 - Page 15

Daikin FCRN60EXV1
73 pages
Print Icon
To Next Page IconTo Next Page
To Next Page IconTo Next Page
To Previous Page IconTo Previous Page
To Previous Page IconTo Previous Page
Loading...
12
Application Information
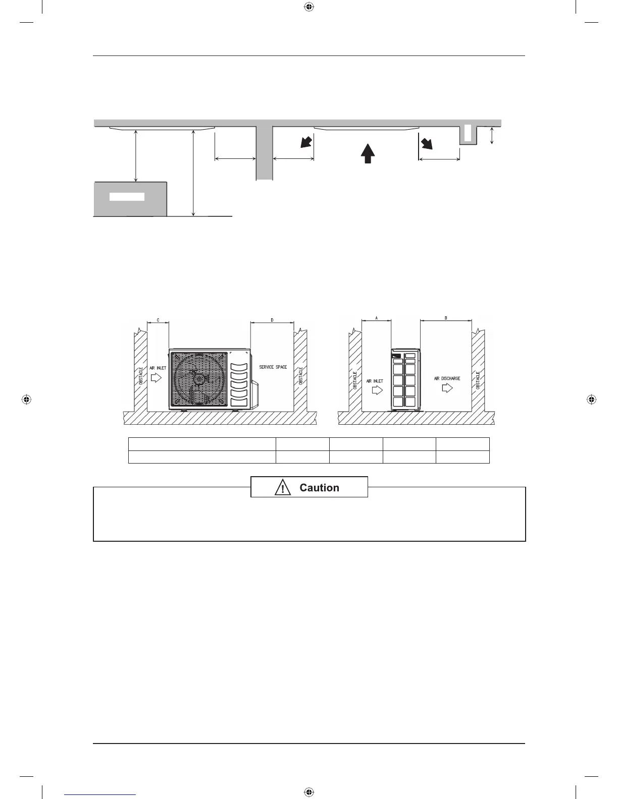
1) Indoor Installation Clearance
Clearance must be provided for the indoor unit from wall and obstacles as shown in gure below.
Beam
Max. 0.3 m
Min 0.5 m
Min 0.5 m
Max. 3.0 m
Min 0.5 m
Floor
Obstacles
The installation place (handling ceiling surface) must be level and the height in the ceiling is 350mm or more.
2) Outdoor Installation Clearance
Outdoor unit must be installed such that there is no short circuit of the hot discharge air or obstruction to smooth
air ow. Select the coolest possible place where intake air should not hotter than the outside temperature
(Max. 45°C).
ALL MODELS A B C D
Minimum Distance 300 mm 1000 mm 300 mm 500 mm
If the condensing unit is operated in an atmosphere containing oils (including machine
oils), salt (coastal area), sulphide gas (near hot spring, oil re nery plant), such substances
may lead to failure the unit.
DAIKIN_FFRN.indb 12DAIKIN_FFRN.indb 12 12/27/2012 9:28:09 AM12/27/2012 9:28:09 AM

Other manuals for Daikin FCRN60EXV1

Related product manuals