EasyManua.ls Logo

Daikin FTKD50JVE - Page 327

Daikin FTKD50JVE
410 pages
Print Icon
To Next Page IconTo Next Page
To Next Page IconTo Next Page
To Previous Page IconTo Previous Page
To Previous Page IconTo Previous Page
Loading...
For BPMK928B42 · 43 Si18-201
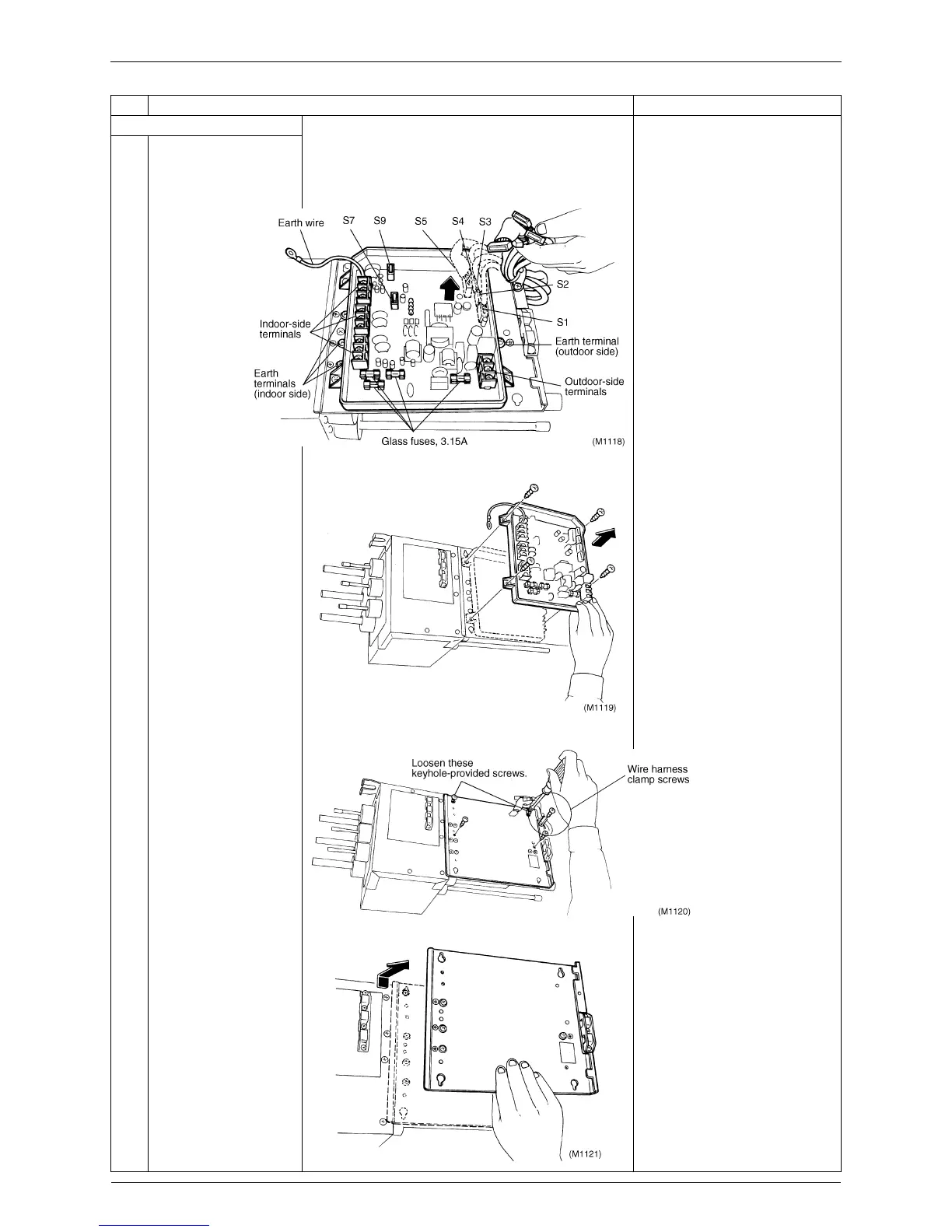
314 Removal Procedure
2. Removing the PCB
"
The PCB is treated for
moisture resistance.
Replace the PCB and its
mount together, if required.
"
The LED (green) lights up
while the microcomputer
functions.
"
Self-diagnostic LEDs
LED-A (green)
LED-1 (red)
LED-2 (red)
LED-3 (red)
LED-4 (red)
S4: Motorized valve coil (yellow)
S3: Motorized valve coil (blue)
S2: Motorized valve coil (red)
S1: Motorized valve coil (white)
1
The codes of the
connectors on the PCB
are as shown at right.
2
Remove the four
screws from the PCB.
3
Loosen the two
keyhole-provided
screws and remove the
two other screws from
the PCB mount.
Step Procedure Points

Table of Contents

Related product manuals