EasyManua.ls Logo

Daikin FTXS35DVMW9 - Wiring Diagrams; Indoor Units; Outdoor Units

Daikin FTXS35DVMW9
228 pages
Print Icon
To Next Page IconTo Next Page
To Next Page IconTo Next Page
To Previous Page IconTo Previous Page
To Previous Page IconTo Previous Page
Loading...
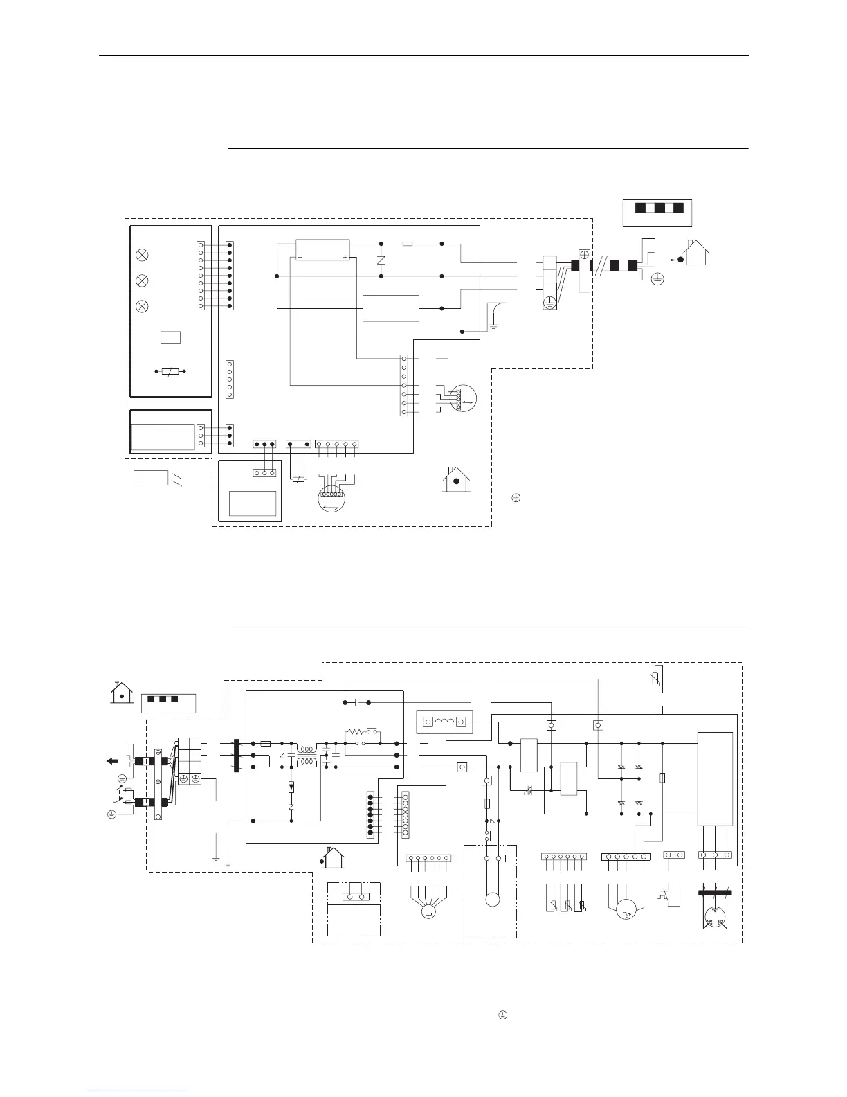
SiENBE04-507A Wiring Diagrams
Appendix 211
2. Wiring Diagrams
2.1 Indoor Units
FTK(X)S20/25/35DVMBW(L), FTK(X)S20/25/35DVMW9, FTK(X)S20/25/35D2VMW(L), FTK(X)S20/25/35DAVMW(L),
FTK(X)S20/25/35D3VMW(L)
2.2 Outdoor Units
RK(X)S20/25/35DVMB, RK(X)S20/25/35D2VMB, RK(X)S20/25/35D3VMB
PCB3
PCB4
LED2
LED3
H2P
H3P
LED1
H1P
S1W
R1T
t°
S27
S36
S26
PCB2
S35
S21
HA
PCB1
S29
S28
R2T
S32
t°
1
RED
M1S
M
S6
ORG
YLW
PNK
5
BLU
V1
7
1
3.15A
S1
F1U
WHT
BRN
RED
BLU
ORG
H2
H3
H1
M1F
FG
M
GRN
WHT
RED
/
BLK
YLW
X1M
3
2
1
2
3
1
: FRAME GROUND
: FUSE
: PILOT LAMP
: FAN MOTOR
: SWING MOTOR
: PRINTED CIRCUIT BOARD
: THERMISTOR
: CONNECTOR
: OPERATION SWITCH
: TERMINAL STRIP
: PROTECTIVE EARTH
FG
F1U
H1P~H3P
M1F
M1S
PCB1~PCB4
R1T, R2T
S1~S38
S1W
X1M
CAUTION
NOTE THAT OPERATION WILL
RESTART AUTOMATICALLY IF
THE MAIN POWER SUPPLY IS
CAUTION TURNED OFF AND
THEN BACK ON AGAIN.
TRANSMISSION
CIRCUIT
INTELLIGENT EYE
SENSOR
RECTIFIER
INFRARED
REMOTE
CONTROL
SIGNAL
SIGNAL
RECEIVER
RECEIVER
INDOOR
FIELD WIRING.
OUTDOOR
3D051268A
N
L
indoor
2
3
1
FIELD WIRING.
L
N
X1M
2
3
1
RED
BLK
WHT
GRN/YLW
Z2C
GRN/YLW
HN1
HL1
E
S
FU3
20A
V2
PCB1
V3
SA1
L1
outdoor
S80
HC2
1
C100
MRM10
MRM20
7
1
HC1
3
S11
WHT
BLK
BLK
BLK
BLK
BLK
BLK
HR1
HN2
HL2
ORG
GRY
BLU
1
7
1
WHT
S10
YLW
S20
M
ORG
BLU
L1R
Y1E
BRN
6
RED
3.15A
MRCW
S80
HL3
FU1
HN3
YLW
BRN
ORG
1
Y1R
V1
HR2
3
(
OUTDOOR
)
~
~
DB1
IC11
+
-
PCB2
R1T
1
(
CONDENSER
)
BLK
t
°
BLK
S90
HC3
R2T
~
~
BLK
DB2
t
°
+
-
BLK
(
DISCHARGE
)
R3T
BLK
6
t
°
BLK
S70
C74
C75
1
HC4
WHT
2
ORG
1
-
-
+
+
3
M
~
BRN
4
M1F
BLU
-
-
+
+
C94
3.15A
7
FU2
RED
C95
BLK
2
BLK
Q1L
R12T
S40
BLK
GRY
1
S30
W
+
W
-
5
BLU
M1C
IPM1
V
V
3
YLW
U
1
U
N=2
Z1C
RED
t
°
3D046707C
IN CASE OF
HEAT PUMP
TYPE
C74
,
C75
C94
,
C95
,
C100
DB1
,
DB2
FU1
,
FU2
,
FU3
IC11
IPM1
L
L1
L1R
M1C
M1F
MRCW
,
MRM10
,
MRM20
: CAPACITOR
: DIODE BRIDGE
: FUSE
: TRIAC
: INTELLIGENT POWER MODULE
: LIVE
: COIL
: REACTOR
: COMPRESSOR MOTOR
: FAN MOTOR
: MAGNETIC RELAY
N
PCB1
,
PCB2
Q1L
R1T
,
R2T
,
R3T
,
R12T
S10
,
S11
,
S20
S30
,
S40
,
S70
S80
,
S90
,
S91
HC3
,
HC4
,
HL3
,
HN3
: NEUTRAL
: PRINTED CIRCUIT BOARD
: OVERLOAD PROTECTOR
: THERMISTOR
: CONNECTOR
SA1
V1
,
V2
,
V3
X1M
Y1E
Y1R
Z1C
,
Z2C
: SURGE ARRESTER
: VARISTOR
: TERMINAL STRIP
: ELECTRONIC EXPANSION VALVE COIL
: REVERSING SOLENOIDE VALVE COIL
: FERRITE CORE
: PROTECTIVE EARTH
NOTE
1. REFER TO THE NAMEPLATE FOR THE POWER REQUIREMENTS.
IN CASE OF
COOLING ONLY
TYPE

Table of Contents

Related product manuals