EasyManua.ls Logo

Daikin RPS - Page 110

Daikin RPS
152 pages
Print Icon
To Next Page IconTo Next Page
To Next Page IconTo Next Page
To Previous Page IconTo Previous Page
To Previous Page IconTo Previous Page
Loading...
IM 893-10 • ROOFPAK SINGLEZONE UNITS 110 www.DaikinApplied.com
CheCk, TesT, and sTarT
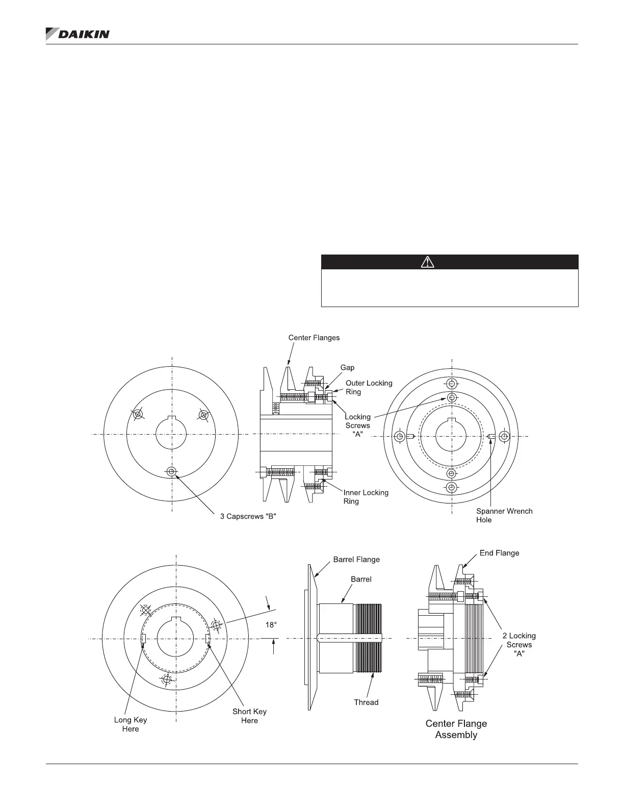
MVP Variable Pitch Sheaves
Adjusting:
1. Slack off belt tension by moving the motor toward the
driven shaft until the belts are free from the grooves. For
easiest adjustment, remove the belts.
2. Loosen both locking screws A in outer locking ring, but
do not remove them from the sheave. There is a gap
of approximately 1/2ʺ (1 mm) between the inner and
outer locking rings. This gap must be maintained for
satisfactory locking of the sheave.
If locking screws A are removed by accident and the gap
is lost, screw the outer locking ring down until it touches
the inner locking ring. Then back off the outer ring 1/2 to
3/4 turn until the inner and outer ring screw holes line up.
Reinsert locking screws A, but do not tighten them until
after adjustment is made.
3. Adjust the sheave to the desired pitch diameter by
turning the outer locking ring with a spanner wrench. Any
pitch diameter can be obtained within the sheave range.
One complete turn of the outer locking ring will result in
a 0.233ʺ (6 mm) change in pitch diameter.] Do not open
A–B sheaves more than four 3/4 turns for A belts or 6
turns for B belts. Do not open C sheaves more than nine
1/2 turns.
4. Tighten both locking screws A in the outer locking ring.
5. Put on the belts and adjust the belt tension. Do not force
belts over grooves. Loosen the belts by adjusting the
motor base closer to the fan shaft.
CAUTION
Do not loosen any screws other than the two locking screws
(A) in the outer locking ring. Before operating the drive,
securely tighten these screws.
Figure 113: MVP Variable Pitch Sheaves (Type A-B)
Figure 114: MVP Variable Pitch Sheaves (Type A–B)

Table of Contents

Other manuals for Daikin RPS

Related product manuals