EasyManua.ls Logo

Daikin RPS - Mechanical Installation Procedures

Daikin RPS
152 pages
Print Icon
To Next Page IconTo Next Page
To Next Page IconTo Next Page
To Previous Page IconTo Previous Page
To Previous Page IconTo Previous Page
Loading...
MeChanICal InsTallaTIon
www.DaikinApplied.com 19 IM 893-10 • ROOFPAK SINGLEZONE UNITS
MeChanICal InsTallaTIon
The installation of this equipment shall be in accordance
with the regulations of authorities having jurisdiction and all
applicable codes. It is the responsibility of the installer to
determine and follow the applicable codes.
NOTE: Low head pressure may lead to poor, erratic refrigerant
feed control at the thermostatic expansion valve. The
units have automatic control of the condenser fans
which should provide adequate head pressure control
down to 50°F (10°C) provided the unit is not exposed to
windy conditions. The system designer is responsible
for assuring the condensing section is not exposed to
excessive wind or air recirculation.
CAUTION
Sharp edges on sheet metal and fasteners can cause
personal injury.
This equipment must be installed, operated, and serviced
only by an experienced installation company and fully trained
personnel.
Receiving Inspection
When the equipment is received, all items should be carefully
checked against the bill of lading to be sure all crates and
cartons have been received. If the unit has become dirty
during shipment (winter road chemicals are of particular
concern), clean it when received.
All units should be carefully inspected for damage when
received. Report all shipping damage to the carrier and le a
claim. In most cases, equipment is shipped F.O.B. factory and
claims for freight damage should be led by the consignee.
Before unloading the unit, check the unit nameplate to make
sure the voltage complies with the power supply available.
Unit Clearances
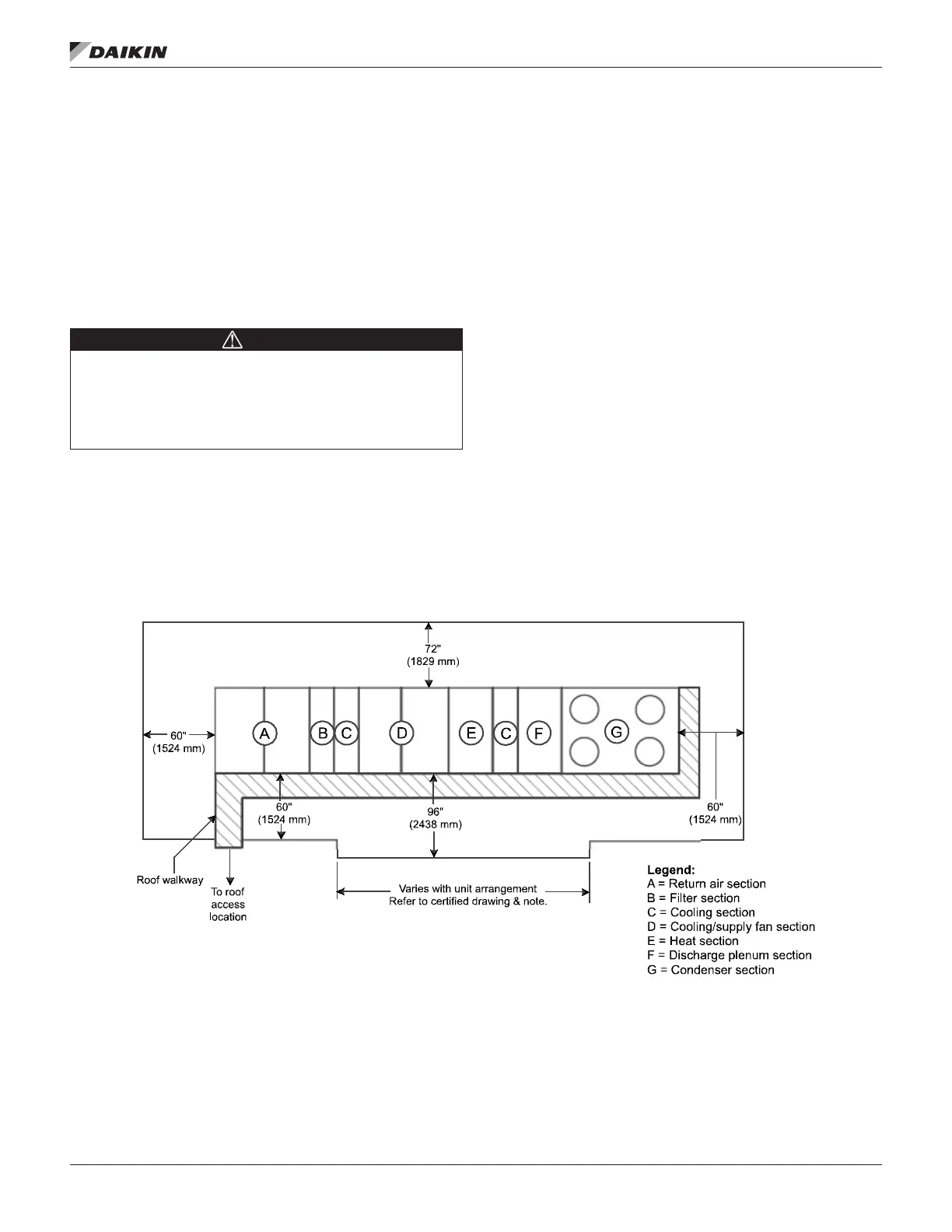
Service Clearance
Allow service clearance approximately as indicated in Figure
21. Also, Daikin recommends providing a roof walkway to
the rooftop unit as well as along at least the two sides of the
unit that provide access to most controls and serviceable
components.
Figure 21: Service Clearances
*Condenser coil replacement is simplified
if the following temporary access clearance
can be arranged:
015D - 025D 61"
030D - 062D 83"
070D - 100D 106"
110D - 140D 38"
*

Table of Contents

Other manuals for Daikin RPS

Related product manuals