EasyManua.ls Logo

Daikin RPS - Page 43

Daikin RPS
152 pages
Print Icon
To Next Page IconTo Next Page
To Next Page IconTo Next Page
To Previous Page IconTo Previous Page
To Previous Page IconTo Previous Page
Loading...
eleCTrICal InsTallaTIon
www.DaikinApplied.com 43 IM 893-10 • ROOFPAK SINGLEZONE UNITS
RCS Units
Field power wiring is connected from the main control panel
in the RFS unit to powerblock (PB4) or an optional disconnect
switch (DS4) located in the condenser control panel of the RCS
unit. Power leads enter the bottom left corner of the condenser
control panel through the conduit hubs shipped with the unit.
Refer to Figure 50.
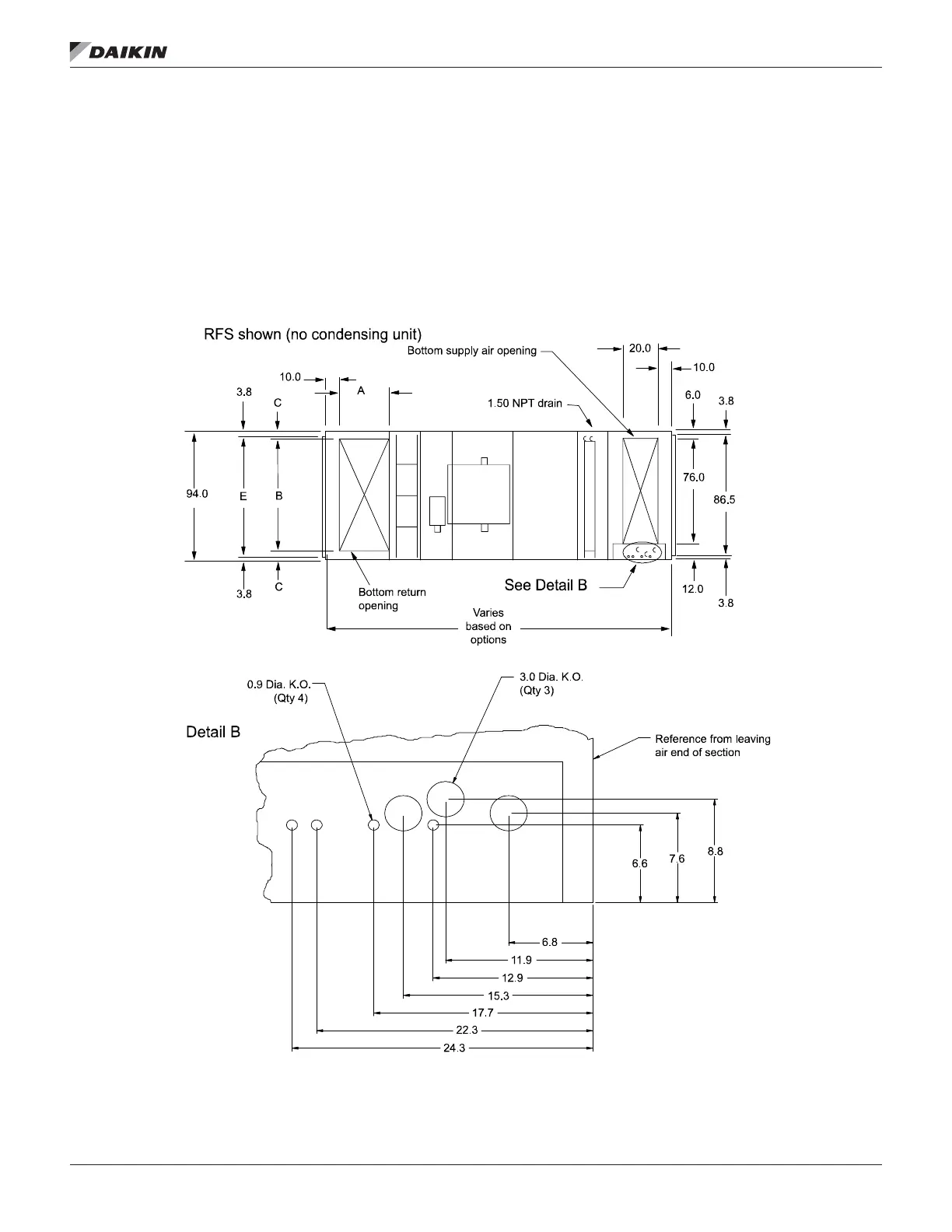
Figure 49: Typical Power Wire Entrance, Unit View—RPS 045D to 140D Shown (Actual Opening Shown on Submittal
Documents)

Table of Contents

Other manuals for Daikin RPS

Related product manuals