EasyManua.ls Logo

Daikin RYS50BVMB - Wiring Diagrams; Indoor Units

Daikin RYS50BVMB
210 pages
Print Icon
To Next Page IconTo Next Page
To Next Page IconTo Next Page
To Previous Page IconTo Previous Page
To Previous Page IconTo Previous Page
Loading...
Wiring Diagrams Si04-306
190 Appendix
2. Wiring Diagrams
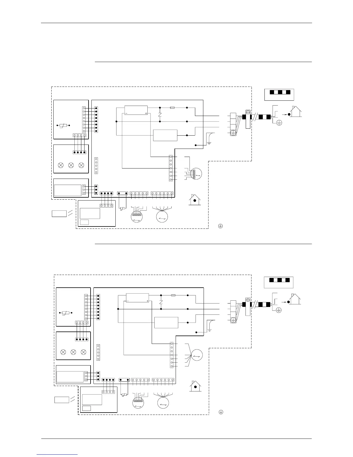
2.1 Indoor Units
FTK(X)S50BVMA, FTK(X)S50BVMB
FTK(X)S 60/71 BVMA, FTK(X)S 60/71 BVMB
FTKD 50/60/71 BVM, FTK(X)D 50/60/71 BVMA, FTK(X)D 50/60/71 BVMT
CONTROLLER
WIRELESS
REMOTE
PCB4
PCB3
PCB5
INTELLIGENT EYE
LED1
H1P
R1T
SENSOR
S37
t˚
S38
LED2
H2P
LED3
H3P
PCB2
S27
S36
S1W
RECEIVER
SIGNAL
S26
S35
S21
S29
S28
PCB1
R2T
S32
t˚
~
RECTIFIER
1
RED
M1S
M
S6
ORG
YLW
~
PNK
5
BLU
1
TRANSMISSION
BRN
RED
CIRCUIT
M2S
S8
M
ORG
YLW
7
1
3.15A
S1
PNK
6
Fu
BLU
WHT
BRN
RED
BLU
ORG
H2
H3
H1
INDOOR
M1F
FG
M
GRN
R1T
,
R2T : THERMISTOR
M1S
,
M2S : SWING MOTOR
Fu : FUSE
H1~ H3 : HARNESS
WHT
RED
/
BLK
M1F : FAN MOTOR
H1P~ H3P : PILOT LAMP
S1~ S38 : CONNECTOR
FG : FRAME GROUND
YLW
X1M : TERMINAL STRIP
S1W : OPERATION SWITCH
PCB1~ PCB5: PRINTED CIRCUIT BOARD
: PROTECTIVE EARTH
X1M
3
2
1
THE MAIN POWER SUPPLY IS
ON AGAIN.
TURNED OFF AND THEN BACK
NOTE THAT OPERATION WILL
RESTART AUTOMATICALLY IF
FIELD WIRING.
CAUTION
3
2
1
3D038065C
OUTDOOR
CONTROLLER
WIRELESS
REMOTE
PCB4
PCB3
PCB5
INTELLIGENT EYE
LED1
H1P
R1T
SENSOR
t
S37
˚
S38
LED2
H2P
LED3
H3P
PCB2
S27
S36
S1W
RECEIVER
SIGNAL
S26
S35
S21
S29
S28
PCB1
R2T
S32
t
˚
~
RECTIFIER
1
RED
M1S
M
S6
ORG
YLW
~
PNK
5
BLU
1
TRANSMISSION
BRN
RED
CIRCUIT
M2S
S8
M
ORG
YLW
7
1
3.15A
S1
PNK
6
Fu
BLU
WHT
BRN
RED
BLU
ORG
H2
H3
H1
INDOOR
FG
M1F
M
GRN
R1T
,
R2T : THERMISTOR
M1S
,
M2S : SWING MOTOR
Fu : FUSE
H1~H3 : HARNESS
WHT
RED
/
BLK
M1F : FAN MOTOR
H1P~H3P : PILOT LAMP
S1~S38 : CONNECTOR
FG : FRAME GROUND
YLW
X1M : TERMINAL STRIP
S1W : OPERATION SWITCH
PCB1~PCB5 : PRINTED CIRCUIT BOARD
: PROTECTIVE EARTH
X1M
3
2
1
THE MAIN POWER SUPPLY IS
ON AGAIN.
TURNED OFF AND THEN BACK
NOTE THAT OPERATION WILL
RESTART AUTOMATICALLY IF
FIELD WIRING.
CAUTION
3
2
1
OUTDOOR
3D038530C

Table of Contents

Other manuals for Daikin RYS50BVMB

Related product manuals