EasyManua.ls Logo

Daikin WGZ030DW - Page 27

Daikin WGZ030DW
112 pages
Print Icon
To Next Page IconTo Next Page
To Next Page IconTo Next Page
To Previous Page IconTo Previous Page
To Previous Page IconTo Previous Page
Loading...
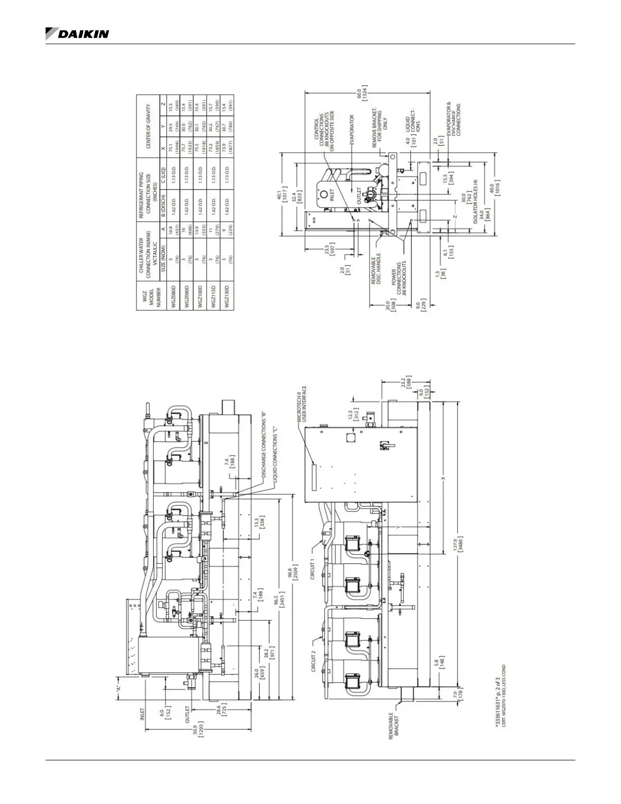
www.DaikinApplied.com 27 IOM 1322 • WATER-COOLED SCROLL COMPRESSOR
Figure 19: WGZ080DA - 130DA (Condenserless)


Other manuals for Daikin WGZ030DW

Related product manuals