EasyManua.ls Logo

Danfoss ECL Comfort 210

Danfoss ECL Comfort 210
28 pages
To Next Page IconTo Next Page
To Next Page IconTo Next Page
To Previous Page IconTo Previous Page
To Previous Page IconTo Previous Page
Loading...
19
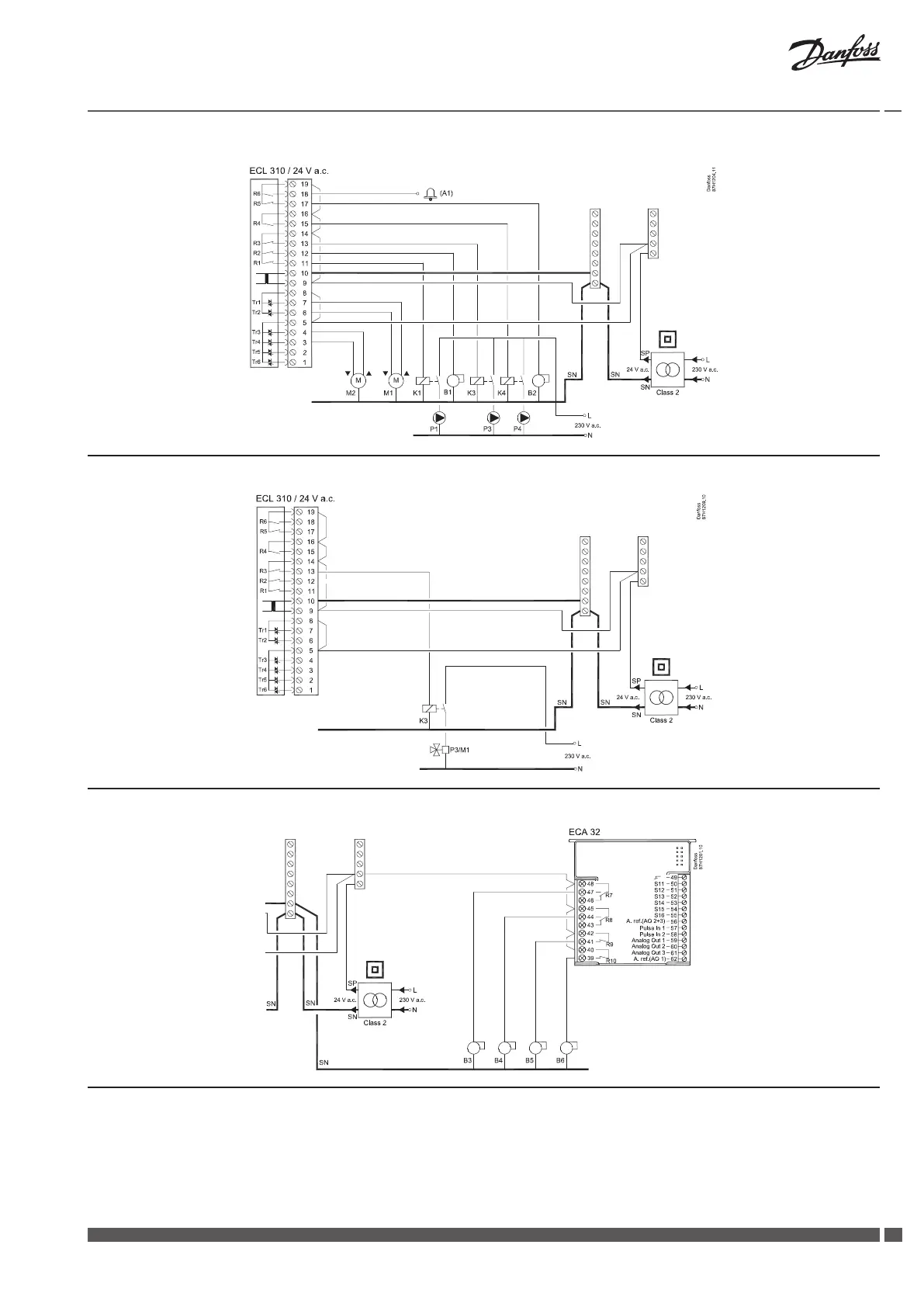
A375.2 / A375.3 (B1 ... B2)
P3 / M1:
A375.2 / A375.3 (B3 ... B6)
Mounting Guide ECL Comfort 210/310, A275/A375
Danfoss District Energy VI.GU.N3.00 DEN-SMT/DK

Other manuals for Danfoss ECL Comfort 210

Related product manuals